※このサイトに記載がある賃貸条件は、敷金・保証金などの預かり金を除き、別途消費税がかかります。
物件情報
設備詳細
| 空調 | - |
|---|---|
| トイレ | - |
| 床仕様 | - |
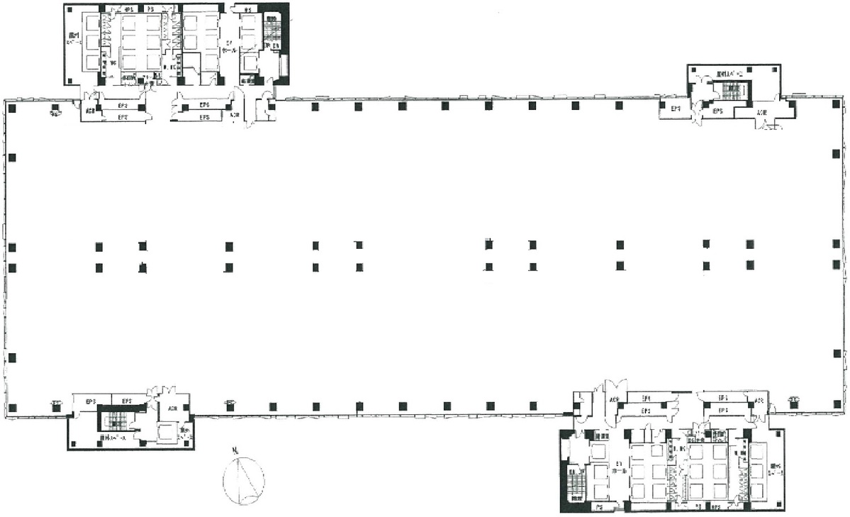
| エレベータ | 30 基 |
| 駐車場設備 | 空有 |
| その他 | 大型ビル / 高層ビル / フラッパーゲート / 雨に濡れない / 駅直結 / 新耐震基準 / 居抜き |
新宿イーストサイドスクエアビルの賃貸オフィス・事務所に関するお問い合わせ
新宿イーストサイドスクエアビルについて
新宿イーストサイドスクエアは、2012年竣工のモダンでデザイン性に優れたオフィスビルです。新宿区新宿に位置し、地上20階建てのこのビルは、その存在感で周囲を圧倒します。オフィスの基準階面積は約1800坪という広大さで、様々なビジネスニーズに応える豊富な分割区画を提供しています。 立地においては、東新宿駅直結で徒歩1分、新宿三丁目駅からも徒歩6分という、非常にアクセスしやすい場所にあります。この好立地は、従業員や来客の通勤便利さを高め、ビジネスの機会を広げます。また、このビルは3駅以上利用可能で、東京メトロ副都心線、都営大江戸線、さらに他の線へもアクセスしやすい点が魅力です。 設備面では、エレベーターが30基もあり(18台が低層階、12台が高層階用)、待ち時間の少なさとスムーズな移動が可能です。さらに、敷地内には334台の駐車場と223台の駐輪場があり、車や自転車での通勤も快適です。セキュリティも万全で、非接触型ICカードキーやセキュリティドアなどが導入されており、安心してビジネスに専念できます。 ビルの内部は、天井高2,850mmと開放的で、自然光がたっぷりと入る設計になっています。また、OAフロアや周囲には大自然やガーデンが配され、働く環境に癒しとリフレッシュの機会を提供します。地下1階と地下2階には商業施設が入っており、飲食店やコンビニ、フィットネスクラブなど、従業員の利便性を高める施設が充実しています。 新宿イーストサイドスクエアは、その立地、設備、環境すべてがビジネスの成功を後押しする素晴らしいオフィスビルです。デザイン性と機能性を兼ね備え、都会の喧騒の中でありながら自然を感じられるこのビルは、あなたのビジネスライフをより豊かなものにしてくれるでしょう。新宿区でオフィスをお探しの方は、ぜひ新宿イーストサイドスクエアをご検討ください。
自分で探すより問い合わせる方が早いことがあります
WEB非公開物件があるから
オーナー様のご希望により「WEBでは非公開」にしている物件があります。 それらはWEBでいくら検索しても見つかりません。 先ずは条件などお知らせ頂けましたら非公開物件含め ピッタリのオフィスをご提案させて頂きます。 無理なお勧めはしておりませんので、お気軽にお問い合わせください。
対面でのご相談も受け付けております
ご来店も歓迎です
オフィス移転は社内・社外ともに非公開に行われることが殆どです。そのためアットオフィスでは、基本的に訪問によるコンサルティングを行っておりますが、ご来店の相談も歓迎です。お一人おひとりに親身にご対応させて頂きたい為、要予約とさせて頂いております。ご来店の際は先ずは下記よりご予約下さい。
周辺環境
募集終了のテナント区画
読込中...
新宿/西新宿エリアで新宿イーストサイドスクエアビルに似た条件の物件
読込中...
| 取扱様態 | 仲介 |
|---|---|
| 取扱会社 | 株式会社 アットオフィス |