清水ビル6階の賃貸情報
23.11 坪 (76.4m²)
300,364円 (坪:12,997 円)
※このサイトに記載がある賃貸条件は、敷金・保証金などの預かり金を除き、別途消費税がかかります。
清水ビルの建物概要
設備詳細
| 空調 | 個別空調 |
|---|---|
| トイレ | 男女共用トイレ・室内 |
| 床仕様 | - |
| エレベータ | 1 基 |
| 駐車場設備 | - |
| その他 | 新耐震基準 |
清水ビル6階の賃貸オフィス・事務所に関するお問い合わせ
清水ビルについて
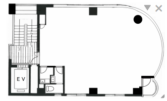
清水ビルは、1988年に竣工された、台東区浅草橋1丁目に位置する8階建ての賃貸オフィスビルです。浅草橋駅から徒歩わずか1分という極めて優れた交通アクセスを誇り、江戸通り沿いにその姿を構えています。ここでは、その特徴・立地・設備等を詳細に解説し、清水ビルの独自の魅力やビジネスシーンにおける利点を強調していきます。 まず、清水ビルの最大の特徴はその立地の優秀さにあります。東京メトロ・JR線など多くの路線が交わる浅草橋駅から徒歩1分というアクセスの良さは、ビジネスにおける大きな利点となります。さらに、馬喰町駅や東日本橋駅、馬喰横山駅も徒歩圏内にあり、複数路線の利用が可能です。このため、従業員やビジネスパートナーの通勤・訪問が大変便利です。 次に、設備面に注目してみましょう。清水ビルは、耐震性に優れた構造で1988年に竣工されました。ビル内にはエレベーターが1機設置されており、8階建てのビル全体のアクセスをスムーズにしています。また、ビルの設計においても特筆すべき点があります。角地に位置することで、採光性が高く、開放的な雰囲気を持っています。カーブ状の外観デザインは視認性に優れ、ビル自体がランドマークとなり得るポテンシャルを秘めています。 周辺環境も、清水ビルの魅力の一つです。オフィス街に位置しながらも、近隣にはコンビニや飲食店が豊富にあり、日々の業務で必要となる様々なサービスを手軽に利用することができます。また、大通り沿いに面しているため、室内からの視界も良好です。 清水ビルは、その立地の良さ、設備の充実、そしてビジネスシーンにおける多様なニーズに応え得る環境を整えています。このような特性を持つ清水ビルは、様々な業種の企業にとって、非常に魅力的なオフィススペースと言えるでしょう。ビジネスの拠点としての利用はもちろん、アクセスの良さを生かした顧客接点の場としても最適な環境を提供します。清水ビルは、企業の成長をサポートするための最良の選択肢の一つです。
清水ビルのこだわり
自分で探すより問い合わせる方が早いことがあります
WEB非公開物件があるから
オーナー様のご希望により「WEBでは非公開」にしている物件があります。 それらはWEBでいくら検索しても見つかりません。 先ずは条件などお知らせ頂けましたら非公開物件含め ピッタリのオフィスをご提案させて頂きます。 無理なお勧めはしておりませんので、お気軽にお問い合わせください。
対面でのご相談も受け付けております
ご来店も歓迎です
オフィス移転は社内・社外ともに非公開に行われることが殆どです。そのためアットオフィスでは、基本的に訪問によるコンサルティングを行っておりますが、ご来店の相談も歓迎です。お一人おひとりに親身にご対応させて頂きたい為、要予約とさせて頂いております。ご来店の際は先ずは下記よりご予約下さい。
浅草橋/蔵前/浅草エリアで清水ビルに似た条件の物件
読込中...
清水ビルと同じ最寄駅の物件
読込中...
| 取扱様態 | 仲介 |
|---|---|
| 取扱会社 | 株式会社 アットオフィス |