ひろきやビル2階の賃貸情報
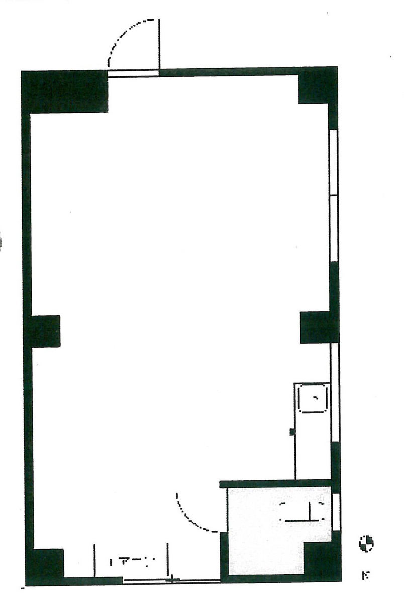
19.96 坪 (65.98m²)
160,000円 (坪:8,016 円)
※このサイトに記載がある賃貸条件は、敷金・保証金などの預かり金を除き、別途消費税がかかります。
ひろきやビルの建物概要
設備詳細
| 空調 | - |
|---|---|
| トイレ | 男女共用トイレ・室内 |
| 床仕様 | - |
| エレベータ | - |
| 駐車場設備 | - |
| その他 | エレベーター無 / 東京賃料が坪11000円以下 |
ひろきやビル2階の賃貸オフィス・事務所に関するお問い合わせ
ひろきやビルについて
ひろきやビルは、中野区野方5丁目に位置する地上4階地下1階建ての建物です。最寄りの西武新宿線「野方駅」から徒歩2分と、駅から徒歩でアクセスできる距離に立地しています。また、「都立家政駅」へは徒歩8分、「鷺ノ宮駅」へは徒歩14分となっており、複数の駅が利用可能です。周辺には、住宅や商店が混在した地域にあり、地元で働く方々や近隣住民の通行も見られます。 地上4階建てに加えて地下1階も備えているため、事業用途に応じた多層的な空間利用が想定できます。用途ごとのフロア分けや、来客対応・バックヤードなど、階数を活かしたさまざまな配置計画が可能です。駅近隣のエリアにありながら、地下階の存在を活かしたスペースの確保も検討できます。 建物の現地環境や詳しい利用方法については、詳細はお問い合わせください。
ひろきやビルのこだわり
自分で探すより問い合わせる方が早いことがあります
WEB非公開物件があるから
オーナー様のご希望により「WEBでは非公開」にしている物件があります。 それらはWEBでいくら検索しても見つかりません。 先ずは条件などお知らせ頂けましたら非公開物件含め ピッタリのオフィスをご提案させて頂きます。 無理なお勧めはしておりませんので、お気軽にお問い合わせください。
対面でのご相談も受け付けております
ご来店も歓迎です
オフィス移転は社内・社外ともに非公開に行われることが殆どです。そのためアットオフィスでは、基本的に訪問によるコンサルティングを行っておりますが、ご来店の相談も歓迎です。お一人おひとりに親身にご対応させて頂きたい為、要予約とさせて頂いております。ご来店の際は先ずは下記よりご予約下さい。
中野区エリアでひろきやビルに似た条件の物件
読込中...
ひろきやビルと同じ最寄駅の物件
読込中...
| 取扱様態 | 仲介 |
|---|---|
| 取扱会社 | 株式会社 アットオフィス |