虎ノ門35森ビルの賃料条件
| 階数 | 坪数 | 賃料 + 共益費 | 敷金/礼金敷金 礼金 | 検討 |
|---|---|---|---|---|
| 3階 | 145坪 (479.49m²) | お問合せ下さい (坪:-) | 相談 無相談/無 | |
| 4階 | 264.6坪 (874.71m²) | お問合せ下さい (坪:-) | 相談 無相談/無 | |
| 8階 | 133.7坪 (442.05m²) | お問合せ下さい (坪:-) | 相談 無相談/無 |
※このサイトに記載がある賃貸条件は、敷金・保証金などの預かり金を除き、別途消費税がかかります。
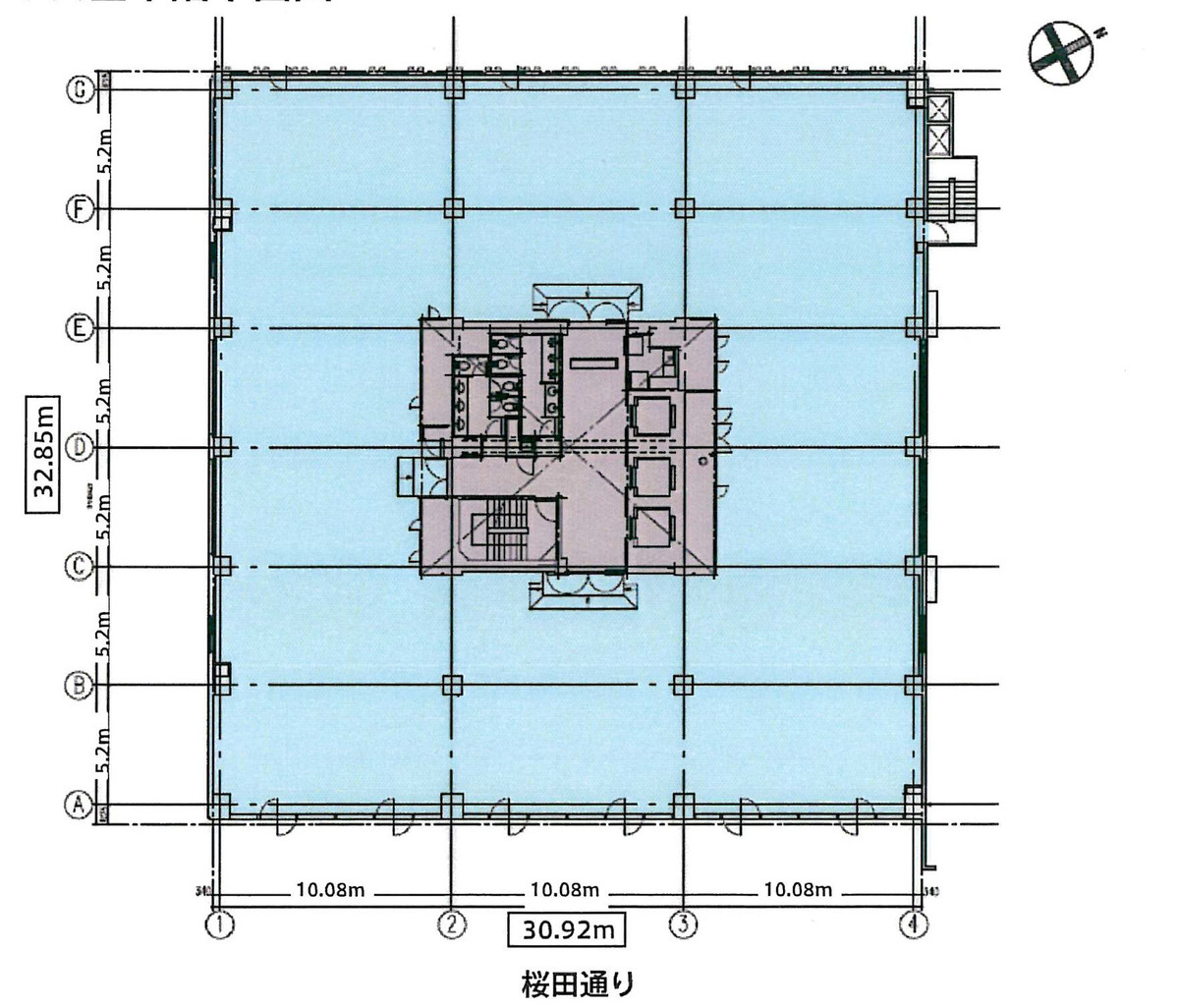
物件情報
設備詳細
| 空調 | 個別空調 |
|---|---|
| トイレ | - |
| 床仕様 | OA対応床(フリーアクセス) |
| エレベータ | 3 基 |
| 駐車場設備 | 空有 |
| その他 | 大型ビル |
虎ノ門35森ビルの賃貸オフィス・事務所に関するお問い合わせ
虎ノ門35森ビルについて
虎ノ門35森ビルは、東京都港区虎ノ門に位置する、ビジネスと文化の交差点に建つ賃貸オフィスビルです。この物件は、1981年に竣工し、2001年と2011年の2回にわたり、最新のオフィスニーズに合わせてリニューアル工事が実施されています。基準階面積は250坪を超える広さを誇り、各テナントの多様なビジネス要求に対応できる設計がなされています。 ビルの立地については、東京メトロ日比谷線の神谷町駅から徒歩4分というアクセスの良さが特徴です。さらに、銀座線の虎ノ門駅からも徒歩6分と、複数の路線が使える点がビジネスの利便性を高めています。この地域は、近年、虎ノ門ヒルズの開業や新虎通りの開通により、さらなる発展を遂げており、今後も新駅の誕生や大型複合施設の建設計画が進行中であるため、物件への投資価値は高まる一方です。 設備面では、全室に個別空調システムを完備し、テナントのニーズに応じた温度管理が可能です。天井高は2450mmとなっており、開放感のあるオフィス空間を提供します。床は高さ50mmのOAフロアを採用しており、LANやOA機器の配線が床下で行えるため、オフィス内のレイアウト変更も容易です。さらに、床荷重は300kg/㎡となっており、重量物の設置も問題ありません。 虎ノ門35森ビルは、ビル内の設備だけでなく、周辺環境の充実も魅力の一つです。ビルの近くには飲食店が豊富にあり、ビジネスランチやアフター5の利用に便利です。また、文具店や郵便局なども徒歩圏内にあるため、日々の業務で必要となるさまざまなサービスが手軽に利用できます。 このように、虎ノ門35森ビルは、優れた立地、先進的な設備、そして活気ある周辺環境が融合した、ビジネスの成功をサポートする理想的なオフィス空間を提供しています。テナント各社が求める機能性と快適性を高いレベルで実現し、あらゆるビジネスシーンにおいて最適な環境を提供する、虎ノ門エリアを代表する賃貸オフィスビルの一つです。
虎ノ門35森ビルのこだわり
自分で探すより問い合わせる方が早いことがあります
WEB非公開物件があるから
オーナー様のご希望により「WEBでは非公開」にしている物件があります。 それらはWEBでいくら検索しても見つかりません。 先ずは条件などお知らせ頂けましたら非公開物件含め ピッタリのオフィスをご提案させて頂きます。 無理なお勧めはしておりませんので、お気軽にお問い合わせください。
対面でのご相談も受け付けております
ご来店も歓迎です
オフィス移転は社内・社外ともに非公開に行われることが殆どです。そのためアットオフィスでは、基本的に訪問によるコンサルティングを行っておりますが、ご来店の相談も歓迎です。お一人おひとりに親身にご対応させて頂きたい為、要予約とさせて頂いております。ご来店の際は先ずは下記よりご予約下さい。
募集終了のテナント区画
| 階数 | 坪数 | 賃料 + 共益費 | 敷金/礼金敷金 礼金 | 検討 |
|---|---|---|---|---|
| 1階 | 164坪 (541m²) | 募集終了 | - | - |
| 1階 | 146.4坪 (483.96m²) | 募集終了 | - | - |
| 2階 | 263.6坪 (871.4m²) | 募集終了 | - | - |
| 3階 | 265坪 (876.03m²) | 募集終了 | - | - |
| 3階 | 15.2坪 (50.24m²) | 募集終了 | - | - |
| 3階 | 19.9坪 (65.78m²) | 募集終了 | - | - |
| 3階 | 20坪 (66.11m²) | 募集終了 | - | - |
| 3階 | 23.3坪 (77.02m²) | 募集終了 | - | - |
| 3階 | 25坪 (82.64m²) | 募集終了 | - | - |
| 5階 | 264.8坪 (875.37m²) | 募集終了 | - | - |
| 5階 | 127.5坪 (421.76m²) | 募集終了 | - | - |
| 6階 | 264.8坪 (875.37m²) | 募集終了 | - | - |
| 7階 | 266坪 (879.34m²) | 募集終了 | - | - |
| 7階 | 73.1坪 (241.71m²) | 募集終了 | - | - |
| 7階 | 36.3坪 (120m²) | 募集終了 | - | - |
| 7階 | 82.9坪 (274.04m²) | 募集終了 | - | - |
| 7階 | 43.5坪 (143.8m²) | 募集終了 | - | - |
| 7階 | 29.6坪 (97.85m²) | 募集終了 | - | - |
| 8階 | 264.8坪 (875.54m²) | 募集終了 | - | - |
| 8階 | 264.8坪 (875.37m²) | 募集終了 | - | - |
| 9階 | 266坪 (879.34m²) | 募集終了 | - | - |
読込中...
近くのエリアで探してみる
新橋/虎ノ門/神谷町エリアで虎ノ門35森ビルに似た条件の物件
読込中...
| 取扱様態 | 仲介 |
|---|---|
| 取扱会社 | 株式会社 アットオフィス |