JA共済ビル3階の賃貸情報
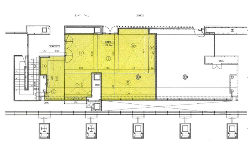
38.79 坪 (128.24m²)
※このサイトに記載がある賃貸条件は、敷金・保証金などの預かり金を除き、別途消費税がかかります。
JA共済ビルの建物概要
設備詳細
| 空調 | 個別空調 |
|---|---|
| トイレ | 男女別トイレ |
| 床仕様 | - |
| エレベータ | 2 基 / エレベーター有 |
| 駐車場設備 | 機械式駐車場 / 平置き駐車場 |
| その他 | 24時間利用可 / 大型ビル / 高層ビル / 機械警備 / 管理人常駐 / 新耐震基準 / クリニック / スケルトン / 天井高3m以上 / 店舗可(飲食不可) |
JA共済ビルについて
東京都心、永田町に位置する「JA共済ビル」は、ビジネスの中心地にふさわしい、アクセスと機能性を兼ね備えたオフィスビルです。永田町駅からわずか2分、赤坂見附駅から徒歩7分、半蔵門駅からは徒歩8分という、3つの駅が利用可能な立地は、都内各地へのアクセスの良さを誇ります。この便利な立地は、ビジネスの機会を広げ、顧客との面談や社員の通勤においても大きな利点となります。 基準階面積546坪という広々としたスペースは、天井高2.8mの開放感あるオフィス環境を提供し、働く人々の創造性と生産性の向上を促します。ビル内には、コンビニ、薬局、食堂、クリニックといった多様な施設が揃っており、日々の業務に必要なものが全て手の届く範囲内にあります。これにより、ビジネスパーソンは効率的に時間を使うことができ、仕事とプライベートのバランスを保ちやすくなります。 また、各基準階に設けられたリフレッシュスペースは、社員が気分転換を図り、リラックスした状態で仕事に戻ることができるよう配慮されています。これは、長時間の業務によるストレスを軽減し、健康的な職場環境を維持するための優れた設備です。また、テナント用の非常用発電機スペースも完備されており、万が一の事態にも安心して業務を続けることが可能です。 主要な入居テナントには、全国共済農業協同組合連合会、ナブテスコ株式会社、日本CA株式会社、日本自動車ターミナル株式会社、農林中金全共連アセットマネジメント株式会社など、多種多様な業界の企業が名を連ねています。これらの企業が選んだJA共済ビルは、確かな信頼と実績を持つビルとして、新たなテナント企業にも最適なビジネスの場を提供します。 JA共済ビルは、その立地、設備、入居企業の質において、ビジネスに最適な環境を誇るオフィスビルです。あなたのビジネスも、ここから新たな一歩を踏み出しませんか?
自分で探すより問い合わせる方が早いことがあります
WEB非公開物件があるから
オーナー様のご希望により「WEBでは非公開」にしている物件があります。 それらはWEBでいくら検索しても見つかりません。 先ずは条件などお知らせ頂けましたら非公開物件含め ピッタリのオフィスをご提案させて頂きます。 無理なお勧めはしておりませんので、お気軽にお問い合わせください。
対面でのご相談も受け付けております
ご来店も歓迎です
オフィス移転は社内・社外ともに非公開に行われることが殆どです。そのためアットオフィスでは、基本的に訪問によるコンサルティングを行っておりますが、ご来店の相談も歓迎です。お一人おひとりに親身にご対応させて頂きたい為、要予約とさせて頂いております。ご来店の際は先ずは下記よりご予約下さい。
番町/麹町/平河町エリアでJA共済ビルに似た条件の物件
読込中...
JA共済ビルと同じ最寄駅の物件
読込中...
| 取扱様態 | 仲介 |
|---|---|
| 取扱会社 | 株式会社 アットオフィス |