※このサイトに記載がある賃貸条件は、敷金・保証金などの預かり金を除き、別途消費税がかかります。
物件情報
設備詳細
| 空調 | 個別空調 |
|---|---|
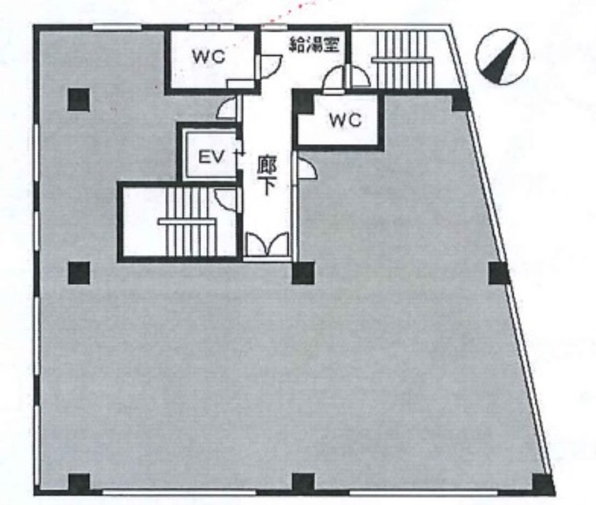
| トイレ | 男女別トイレ室外 |
| 床仕様 | - |
| エレベータ | 1 基 |
| 駐車場設備 | - |
| その他 | 機械警備 / 光ファイバー / 新耐震基準 |
浦野ビルの賃貸オフィス・事務所に関するお問い合わせ
浦野ビルについて
浦野ビルのご紹介 今日は千代田区神田神保町に位置する魅力的なオフィス賃貸物件「浦野ビル」をご紹介します。この立地と設備を備えたビルは、ビジネスの拠点として理想的な環境を提供します。 【立地の魅力】 浦野ビルは、最寄り駅である神保町駅から徒歩5分、水道橋駅からは徒歩8分というアクセスの良さが自慢です。白山通りにも近く、周辺には飲食店が豊富で、日々のランチやアフター5のひとときも楽しめる立地です。さらに、明治大学や日本大学などの学術機関が近くにあるため、学生街の活気を感じながらも、大通りから一歩入った場所にあるため、落ち着いた環境で仕事に集中できます。 【ビルの特徴】 1983年に竣工した浦野ビルは、地上8階建てで、外観はベージュ系のタイル張りが清潔感を感じさせます。ワンフロア約70坪の広々としたオフィススペースは、自社の個性に合わせたレイアウトが可能です。各階には個別空調とOAフロアを完備しており、快適なオフィス環境を実現。トイレと給湯スペースは共用部に設置されています。 【快適なオフィス環境】 エレベーターは1基設置されており、スムーズな移動をサポートします。セキュリティ面では、エントランスにはインターホンが備えられており、安心してご利用いただけます。 【周辺環境】 近隣には東京商科・法科学院専門学校、カトリック神田教会、西神田郵便局などがあり、ビジネスだけでなく日々の生活に必要な施設が揃っています。 浦野ビルは、その立地の利便性、快適なオフィス環境、周辺の豊かな生活インフラを兼ね備えたビジネスのための最適な空間です。ビジネスの成功を目指す皆様にとって、この浦野ビルが最良のパートナーになることを願っています。ご興味をお持ちの方は、ぜひ一度、現地をご覧になってみてください。
浦野ビルのこだわり
自分で探すより問い合わせる方が早いことがあります
WEB非公開物件があるから
オーナー様のご希望により「WEBでは非公開」にしている物件があります。 それらはWEBでいくら検索しても見つかりません。 先ずは条件などお知らせ頂けましたら非公開物件含め ピッタリのオフィスをご提案させて頂きます。 無理なお勧めはしておりませんので、お気軽にお問い合わせください。
対面でのご相談も受け付けております
ご来店も歓迎です
オフィス移転は社内・社外ともに非公開に行われることが殆どです。そのためアットオフィスでは、基本的に訪問によるコンサルティングを行っておりますが、ご来店の相談も歓迎です。お一人おひとりに親身にご対応させて頂きたい為、要予約とさせて頂いております。ご来店の際は先ずは下記よりご予約下さい。
募集終了のテナント区画
| 階数 | 坪数 | 賃料 + 共益費 | 敷金/礼金敷金 礼金 | 検討 |
|---|---|---|---|---|
| 1階 | 40坪 (132.23m²) | 募集終了 | - | - |
| 2階 | 54.58坪 (180.43m²) | 募集終了 | - | - |
| 3階 | 64.59坪 (213.52m²) | 募集終了 | - | - |
| 6階 | 71.19坪 (235.34m²) | 募集終了 | - | - |
| 7階 | 71.19坪 (235.34m²) | 募集終了 | - | - |
| 8階 | 64.58坪 (211.8m²) | 募集終了 | - | - |
| 8階 | 45.45坪 (150.25m²) | 募集終了 | - | - |
| 9階 | 67坪 (221.49m²) | 募集終了 | - | - |
読込中...
近くのエリアで探してみる
飯田橋/神保町/水道橋エリアで浦野ビルに似た条件の物件
読込中...
| 取扱様態 | 仲介 |
|---|---|
| 取扱会社 | 株式会社 アットオフィス |