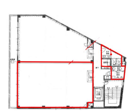
MFビル3階の賃貸情報
38.33 坪 (126.71m²)
※このサイトに記載がある賃貸条件は、敷金・保証金などの預かり金を除き、別途消費税がかかります。
設備詳細
| 空調 | 個別空調 |
|---|---|
| トイレ | - |
| 床仕様 | OA対応床(フリーアクセス) |
| エレベータ | 1 基 |
| 駐車場設備 | 空有 |
| その他 | 機械警備 / 24時間利用可 |
MFビル3階の賃貸オフィス・事務所に関するお問い合わせ
MFビルについて
町田市中町1丁目に位置するMFビルは、小田急電鉄小田原線「町田駅」から徒歩4分、横浜線「町田駅」から徒歩9分の場所にあります。駅からの距離を活かし、周辺には商業施設や各種サービスが点在しています。建物は地上4階建てで、エレベーターを1基備えています。ビル内には機械警備が導入されており、セキュリティ面にも配慮がなされています。また、24時間利用が可能なため、時間に縛られない働き方や運用が可能です。オフィスとしてはもちろん、各階の独立性を活かした分割利用や、事業規模に応じたフロア選択も検討いただけます。多様な業種の法人利用を想定した建物構成となっており、駅から複数路線の利用が可能な点も特徴です。建物について詳細をご希望の際は、お問い合わせください。
MFビルのこだわり
自分で探すより問い合わせる方が早いことがあります
WEB非公開物件があるから
オーナー様のご希望により「WEBでは非公開」にしている物件があります。 それらはWEBでいくら検索しても見つかりません。 先ずは条件などお知らせ頂けましたら非公開物件含め ピッタリのオフィスをご提案させて頂きます。 無理なお勧めはしておりませんので、お気軽にお問い合わせください。
対面でのご相談も受け付けております
ご来店も歓迎です
オフィス移転は社内・社外ともに非公開に行われることが殆どです。そのためアットオフィスでは、基本的に訪問によるコンサルティングを行っておりますが、ご来店の相談も歓迎です。お一人おひとりに親身にご対応させて頂きたい為、要予約とさせて頂いております。ご来店の際は先ずは下記よりご予約下さい。
町田市エリアでMFビルに似た条件の物件
読込中...
MFビルと同じ最寄駅の物件
読込中...
| 取扱様態 | 仲介 |
|---|---|
| 取扱会社 | 株式会社 アットオフィス |