※このサイトに記載がある賃貸条件は、敷金・保証金などの預かり金を除き、別途消費税がかかります。
物件情報
設備詳細
| 空調 | 個別空調 |
|---|---|
| トイレ | 男女共用トイレ・室内 |
| 床仕様 | - |
| エレベータ | 1 基 |
| 駐車場設備 | - |
| その他 | オートロック / 機械警備 / デザイナーズ / SOHO/マンション / 新耐震基準 / SOHO可 |
西麻布3243ビルの賃貸オフィス・事務所に関するお問い合わせ
西麻布3243ビルについて
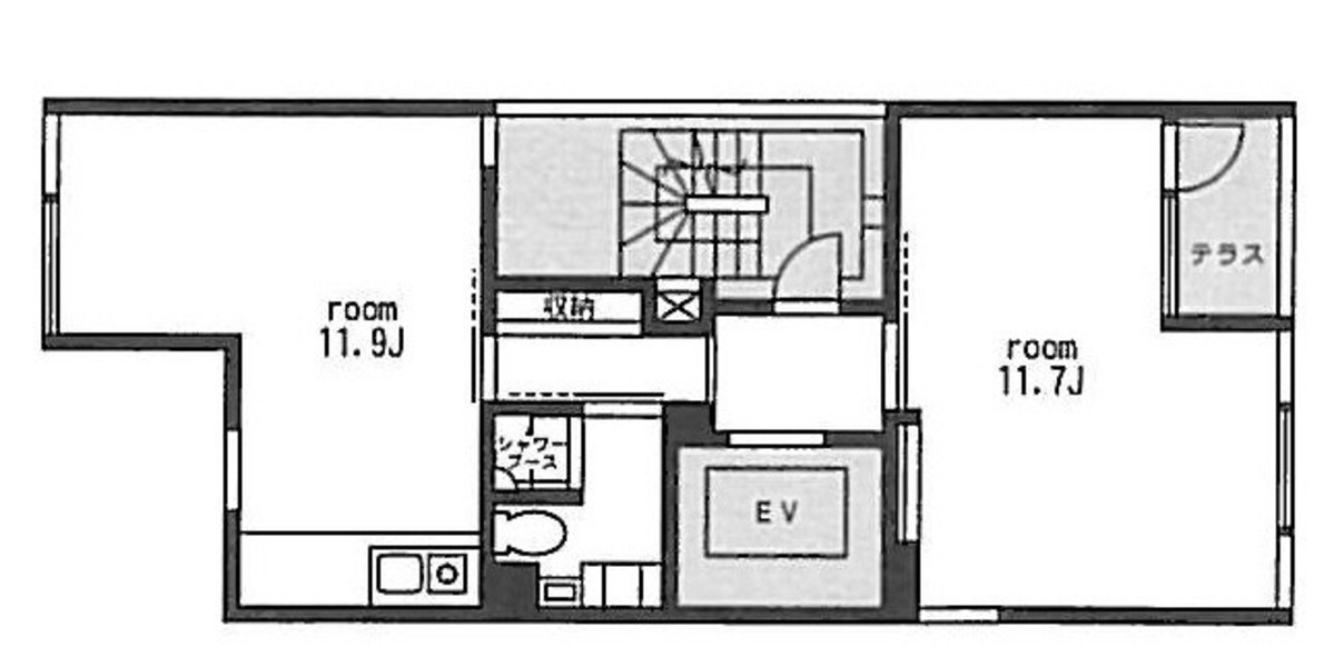
西麻布3243ビルは、ビジネスの拠点として最適な、デザイン性と機能性を兼ね備えた賃貸物件です。このビルは、東京メトロ日比谷線「六本木」駅からわずか徒歩5分、都営地下鉄大江戸線「六本木」駅からも徒歩8分という、アクセス至便な立地に位置しています。ビジネスの中心地である六本木エリアにありながら、快適なオフィス環境を提供することで、日々の業務効率を大幅に向上させることが可能です。 デザインにおいては、川辺直哉氏によるクリエイティブな設計が施されており、SOHOにも最適な空間が展開されています。外観から内装に至るまで、細部にわたるこだわりが感じられるデザインは、訪れる人々に強い印象を与えることでしょう。お部屋は南向きと北向きの2つに分かれており、それぞれ眺望良好な日当たりのいい部屋と、コンパクトで集中作業に適した部屋として使用することができます。このレイアウトにより、打ち合わせスペースと作業スペースを分けて利用することができ、効率的なオフィス運営を実現します。 設備面においても、西麻布3243ビルは充実した機能を誇ります。セキュリティシステムにはカードキーとオートロックが完備されており、入居者の安全とプライバシーをしっかりと守ります。また、長時間の仕事にも対応できるようシャワールームも設置されており、ビジネスシーンにおける利便性を高めています。 立地、デザイン、設備と、ビジネスにおける全ての要素を高いレベルで満たす西麻布3243ビルは、新しいオフィスの拠点として、また創造性を刺激する作業空間として、あなたのビジネスを大きくサポートします。ここには、働く人々の可能性を広げるための環境が整っています。西麻布3243ビルで、ビジネスの新たなステージを迎えましょう。
西麻布3243ビルのこだわり
自分で探すより問い合わせる方が早いことがあります
WEB非公開物件があるから
オーナー様のご希望により「WEBでは非公開」にしている物件があります。 それらはWEBでいくら検索しても見つかりません。 先ずは条件などお知らせ頂けましたら非公開物件含め ピッタリのオフィスをご提案させて頂きます。 無理なお勧めはしておりませんので、お気軽にお問い合わせください。
対面でのご相談も受け付けております
ご来店も歓迎です
オフィス移転は社内・社外ともに非公開に行われることが殆どです。そのためアットオフィスでは、基本的に訪問によるコンサルティングを行っておりますが、ご来店の相談も歓迎です。お一人おひとりに親身にご対応させて頂きたい為、要予約とさせて頂いております。ご来店の際は先ずは下記よりご予約下さい。
募集終了のテナント区画
| 階数 | 坪数 | 賃料 + 共益費 | 敷金/礼金敷金 礼金 | 検討 |
|---|---|---|---|---|
| 2階 | 12.79坪 (42.29m²) | 募集終了 | - | - |
| 3階 | 14.25坪 (47.12m²) | 募集終了 | - | - |
| 4階 | 14.25坪 (47.12m²) | 募集終了 | - | - |
| 5階 | 12.32坪 (40.75m²) | 募集終了 | - | - |
| 6階 | 12.32坪 (40.75m²) | 募集終了 | - | - |
| 7階 | 10.86坪 (35.92m²) | 募集終了 | - | - |
読込中...
赤坂/六本木/麻布エリアで西麻布3243ビルに似た条件の物件
読込中...
| 取扱様態 | 仲介 |
|---|---|
| 取扱会社 | 株式会社 アットオフィス |