※このサイトに記載がある賃貸条件は、敷金・保証金などの預かり金を除き、別途消費税がかかります。
物件情報
設備詳細
| 空調 | セントラル空調 |
|---|---|
| トイレ | - |
| 床仕様 | OA対応床(フリーアクセス) |
| エレベータ | 2 基 |
| 駐車場設備 | 空有 |
| その他 | 大型ビル / 新耐震基準 |
住友生命三田ビルの賃貸オフィス・事務所に関するお問い合わせ
住友生命三田ビルについて
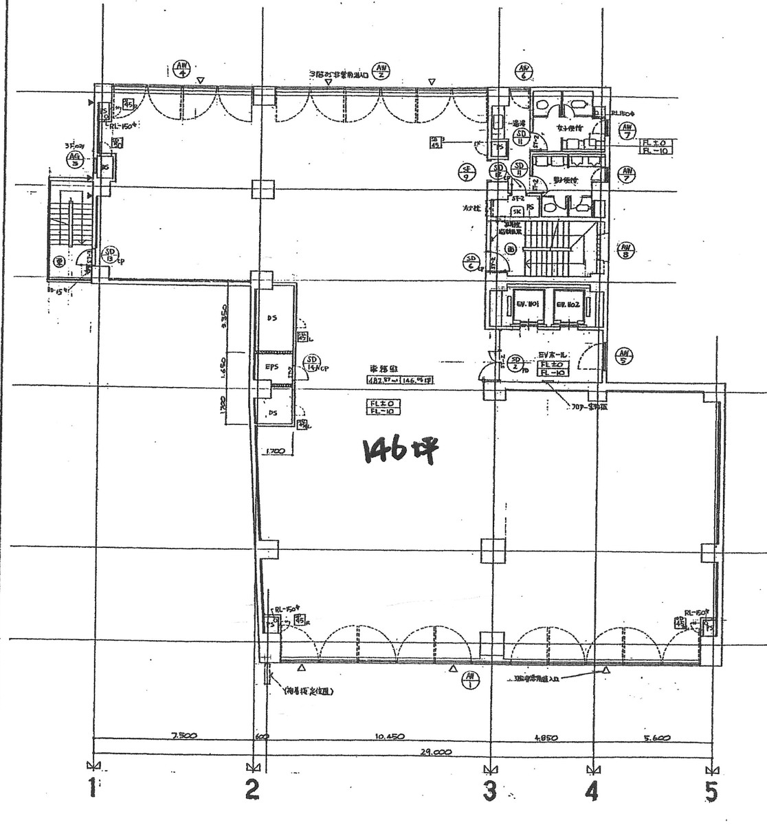
住友生命三田ビルは、東京都港区芝4丁目に位置する1986年竣工の賃貸オフィスビルです。9階建てで、基準階面積は約146坪となっており、効率的なオフィスレイアウトが可能な長方形の貸室形状を採用しています。ビル内には、2基のエレベーターが設置され、来訪者の動線をスムーズにしています。また、セキュリティ体制として、機械警備と有人警備を併用し、テナントの安全を確保しています。 室内の特徴として、窓面が大きく、自然光が豊富に入るため、明るく開放的なオフィス環境を提供します。天井高は2500mmで、床はOAフロア仕様になっており、オフィス機器の配線などのレイアウト変更も容易です。トイレと給湯室は室外に設置されており、2011年にリニューアル工事が行われたため、清潔感のある使用環境が維持されています。 立地に関しては、第一京浜沿いというアクセスの良い位置にあり、最寄り駅である三田駅からは徒歩4分、田町駅からもアクセス可能で、ビジネスにおける利便性が高い点が魅力です。周辺にはオフィス街が広がり、コンビニエンスストアや飲食店が複数あり、日々の業務に必要なランチスポットや買い物に困らない環境が整っています。 1階には「まいばすけっと芝4丁目店」が入居しており、ビル利用者の日常の買い物に便利です。また、ビルのエントランスは明るく清潔感があるため、訪れる人にとって好印象を与えるでしょう。 住友生命三田ビルは、その立地の良さ、機能的なオフィス環境、周辺の利便施設の充実度など、ビジネスに必要な要素を兼ね備えた賃貸オフィス物件です。新耐震基準にも適合しているため、安心してビジネスを展開することができます。ビル内の設備やサービス、そして周辺環境の魅力を活かしたオフィス運営を考えている企業にとって、最適な選択肢の一つと言えるでしょう。
自分で探すより問い合わせる方が早いことがあります
WEB非公開物件があるから
オーナー様のご希望により「WEBでは非公開」にしている物件があります。 それらはWEBでいくら検索しても見つかりません。 先ずは条件などお知らせ頂けましたら非公開物件含め ピッタリのオフィスをご提案させて頂きます。 無理なお勧めはしておりませんので、お気軽にお問い合わせください。
対面でのご相談も受け付けております
ご来店も歓迎です
オフィス移転は社内・社外ともに非公開に行われることが殆どです。そのためアットオフィスでは、基本的に訪問によるコンサルティングを行っておりますが、ご来店の相談も歓迎です。お一人おひとりに親身にご対応させて頂きたい為、要予約とさせて頂いております。ご来店の際は先ずは下記よりご予約下さい。
募集終了のテナント区画
| 階数 | 坪数 | 賃料 + 共益費 | 敷金/礼金敷金 礼金 | 検討 |
|---|---|---|---|---|
| 1階 | 77.76坪 (257.05m²) | 募集終了 | - | - |
| 3階 | 146.06坪 (482.84m²) | 募集終了 | - | - |
| 7階 | 120.3坪 (397.69m²) | 募集終了 | - | - |
| 8階 | 120.3坪 (397.69m²) | 募集終了 | - | - |
| 9階 | 82.98坪 (274.32m²) | 募集終了 | - | - |
読込中...
近くのエリアで探してみる
浜松町/田町/芝公園エリアで住友生命三田ビルに似た条件の物件
読込中...
| 取扱様態 | 仲介 |
|---|---|
| 取扱会社 | 株式会社 アットオフィス |