YK-15ビルの賃料条件
| 階数 | 坪数 | 賃料 + 共益費 | 敷金/礼金敷金 礼金 | 検討 |
|---|---|---|---|---|
| B1階 | 83.9坪 (277.37m²) | 1,510,200円 (坪:18,000 円) | 12ヶ月 無12ヶ月/無 |
※このサイトに記載がある賃貸条件は、敷金・保証金などの預かり金を除き、別途消費税がかかります。
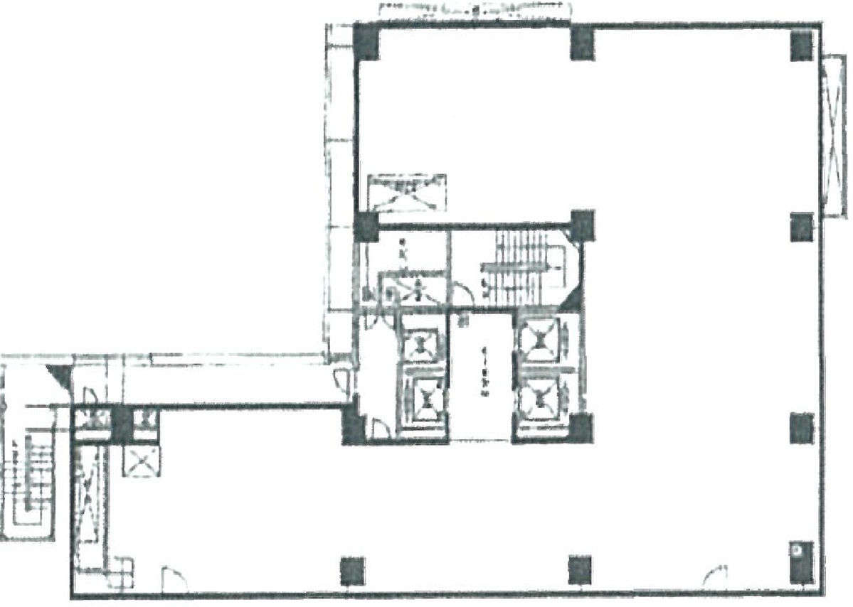
物件情報
設備詳細
| 空調 | - |
|---|---|
| トイレ | - |
| 床仕様 | - |
| エレベータ | 1 基 |
| 駐車場設備 | - |
| その他 | 24時間利用可 / 新耐震基準 / スケルトン / フリーレント / 店舗可(飲食可) |
YK-15ビルの賃貸オフィス・事務所に関するお問い合わせ
YK-15ビルについて
・スケルトン渡しで店舗相談可能。前テナントがしゃぶしゃぶの店舗が入っていました。他の階には大手居酒屋やカラオケ店も入っております。
YK-15ビルのこだわり
自分で探すより問い合わせる方が早いことがあります
WEB非公開物件があるから
オーナー様のご希望により「WEBでは非公開」にしている物件があります。 それらはWEBでいくら検索しても見つかりません。 先ずは条件などお知らせ頂けましたら非公開物件含め ピッタリのオフィスをご提案させて頂きます。 無理なお勧めはしておりませんので、お気軽にお問い合わせください。
WEBから条件問い合わせをする(無料)
対面でのご相談も受け付けております
ご来店も歓迎です
オフィス移転は社内・社外ともに非公開に行われることが殆どです。そのためアットオフィスでは、基本的に訪問によるコンサルティングを行っておりますが、ご来店の相談も歓迎です。お一人おひとりに親身にご対応させて頂きたい為、要予約とさせて頂いております。ご来店の際は先ずは下記よりご予約下さい。
来店予約をする
募集終了のテナント区画
| 階数 | 坪数 | 賃料 + 共益費 | 敷金/礼金敷金 礼金 | 検討 |
|---|---|---|---|---|
| 2階 | 109.24坪 (361.02m²) | 募集終了 | - | - |
| 2階 | 12.71坪 (42.02m²) | 募集終了 | - | - |
| 2階 | 50.92坪 (168.33m²) | 募集終了 | - | - |
| 3階 | 79.2坪 (261.82m²) | 募集終了 | - | - |
| 3階 | 95.24坪 (314.84m²) | 募集終了 | - | - |
| 3階 | 74.92坪 (247.67m²) | 募集終了 | - | - |
| 4階 | 84.24坪 (278.51m²) | 募集終了 | - | - |
| 6階 | 113.75坪 (376.03m²) | 募集終了 | - | - |
| 6階 | 50.71坪 (167.65m²) | 募集終了 | - | - |
| 6階 | 50.5坪 (166.97m²) | 募集終了 | - | - |
| 7階 | 109.51坪 (362.03m²) | 募集終了 | - | - |
| 8階 | 54.86坪 (181.38m²) | 募集終了 | - | - |
読込中...
大田区エリアでYK-15ビルに似た条件の物件
読込中...
| 取扱様態 | 仲介 |
|---|---|
| 取扱会社 | 株式会社 アットオフィス |