ルオーゴ汐留8階の賃貸情報
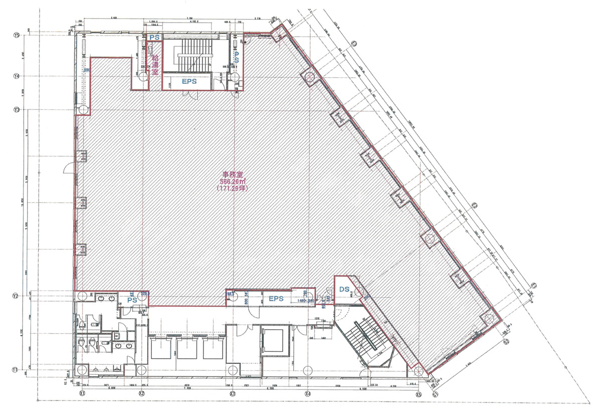
171.7 坪 (567.61m²)
※このサイトに記載がある賃貸条件は、敷金・保証金などの預かり金を除き、別途消費税がかかります。
ルオーゴ汐留の建物概要
設備詳細
| 空調 | 個別空調 |
|---|---|
| トイレ | - |
| 床仕様 | OA対応床(フリーアクセス) |
| エレベータ | 1 基 |
| 駐車場設備 | - |
| その他 | 機械警備 / 大型ビル / 光ファイバー / 新耐震基準 / 24時間利用可 |
ルオーゴ汐留8階の賃貸オフィス・事務所に関するお問い合わせ
ルオーゴ汐留について
**ルオーゴ汐留 - 東京都港区東新橋の象徴的なオフィスビル** 東京都港区東新橋に位置するルオーゴ汐留は、2004年に竣工し、2011年にはリニューアルを経て現在の姿に。このビルは、汐留イタリア街の北端にあり、周辺には浜離宮恩賜庭園のような緑豊かなスポットが点在し、ビジネスと自然の調和が取れた理想的な立地条件を提供します。都営大江戸線「汐留」駅から徒歩5分、JRや東京メトロ銀座線など複数の路線が利用可能な「新橋」駅からも徒歩5分と、都内主要エリアへのアクセスが非常に便利です。 建物は地上10階建てで、地下1階を含む鉄骨造・鉄骨鉄筋コンクリート造。ルオーゴ汐留は、免震構造を採用しており、地震の際の揺れを大幅に軽減することが可能です。これにより、テナント企業にとってビジネスの継続性を高める要素となります。また、外装は花崗岩とアルミウォールを使用し、ルネッサンス建築がモチーフの重厚感あるデザインが特徴。1階のエントランスホールは2層吹き抜けで、待合スペースにソファベンチが配置されており、訪れる人々を優雅に迎え入れます。 基準階のオフィス面積は約149坪から171坪で、柱の少ない台形に近い間取りはレイアウトの自由度が高く、企業のニーズに合わせやすい点が魅力です。各オフィスには個別空調やOAフロア(高さ100mm)、光ファイバー回線など、ビジネスを支える最新の設備が整っており、快適なオフィス環境を提供します。セキュリティ面では、非接触型ICカードによる24時間の入退館が可能で、機械式警備システムを導入し安心してご利用いただけます。 港区東新橋エリアは、ビジネス街としての発展が著しく、多くの企業がオフィスを構える一方で、イタリア街のような洗練された飲食店や商業施設も充実しており、ビジネスとライフスタイルの両方を充実させることができる地域です。ルオーゴ汐留はその中心に位置し、企業が求める立地、設備、安全性を兼ね備えた理想的なオフィスビルです。高い耐震性とアクセスの良さ、そして豊かな周辺環境を活かしたビジネス展開を考えるなら、ルオーゴ汐留は最適な選択肢の一つと言えるでしょう。
自分で探すより問い合わせる方が早いことがあります
WEB非公開物件があるから
オーナー様のご希望により「WEBでは非公開」にしている物件があります。 それらはWEBでいくら検索しても見つかりません。 先ずは条件などお知らせ頂けましたら非公開物件含め ピッタリのオフィスをご提案させて頂きます。 無理なお勧めはしておりませんので、お気軽にお問い合わせください。
対面でのご相談も受け付けております
ご来店も歓迎です
オフィス移転は社内・社外ともに非公開に行われることが殆どです。そのためアットオフィスでは、基本的に訪問によるコンサルティングを行っておりますが、ご来店の相談も歓迎です。お一人おひとりに親身にご対応させて頂きたい為、要予約とさせて頂いております。ご来店の際は先ずは下記よりご予約下さい。
近くのエリアで探してみる
新橋/虎ノ門/神谷町エリアでルオーゴ汐留に似た条件の物件
読込中...
ルオーゴ汐留と同じ最寄駅の物件
読込中...
| 取扱様態 | 仲介 |
|---|---|
| 取扱会社 | 株式会社 アットオフィス |