Aフロント芝二丁目ビル3階の賃貸情報
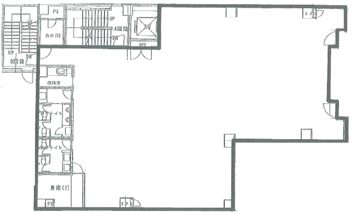
88.15 坪 (291.4m²)
※このサイトに記載がある賃貸条件は、敷金・保証金などの預かり金を除き、別途消費税がかかります。
Aフロント芝二丁目ビルの建物概要
設備詳細
| 空調 | 個別空調 |
|---|---|
| トイレ | - |
| 床仕様 | OA対応床(フリーアクセス) |
| エレベータ | 1 基 |
| 駐車場設備 | - |
| その他 | 機械警備 / 24時間利用可 / 光ファイバー / 新耐震基準 / クリニック / フリーレント |
Aフロント芝二丁目ビル3階の賃貸オフィス・事務所に関するお問い合わせ
Aフロント芝二丁目ビルについて
Aフロント芝二丁目ビルは、東京都港区芝2丁目に位置し、三田駅から徒歩6分、田町駅から徒歩9分というアクセスの良さを誇る賃貸オフィス物件です。2005年にリニューアルされたこのビルは、第一京浜沿いに立地しており、芝四丁目交差点の近くに位置しています。そのため、採光性に優れ、周辺の交通アクセスの利便性も高いです。 デザイン性のあるガラス張りの外観が特徴的で、エントランスも非常に美しい造りになっています。ビルの基準階坪数は約90坪で、オフィス室内は天井高2500mm、OAフロアは高さ60mmとなっており、快適なオフィス環境を提供します。また、個別空調はワンフロア3系統で温度調整可能、セキュリティは機械警備やエレベーターの不停止機能を導入しており、安全性も高いです。1階には銀行がテナントとして入居しており、その他にもローソン、郵便局、飲食店などが周辺に揃っています。 このビルの魅力は、デザイン性の高い外観と、三田駅や田町駅といった複数の駅からのアクセスの良さにあります。ビジネスにおける利点としては、高い視認性と利便性が挙げられます。また、リニューアルにより最新の設備が整っており、快適なオフィス環境で仕事に集中できる点も大きな特徴です。 周辺環境も充実しており、ビジネスだけでなく、日常の利便性も高い立地です。このビルは、港区でオフィスを構える企業や、新しいオフィスを探している企業にとって、非常に魅力的な選択肢と言えるでしょう。
自分で探すより問い合わせる方が早いことがあります
WEB非公開物件があるから
オーナー様のご希望により「WEBでは非公開」にしている物件があります。 それらはWEBでいくら検索しても見つかりません。 先ずは条件などお知らせ頂けましたら非公開物件含め ピッタリのオフィスをご提案させて頂きます。 無理なお勧めはしておりませんので、お気軽にお問い合わせください。
対面でのご相談も受け付けております
ご来店も歓迎です
オフィス移転は社内・社外ともに非公開に行われることが殆どです。そのためアットオフィスでは、基本的に訪問によるコンサルティングを行っておりますが、ご来店の相談も歓迎です。お一人おひとりに親身にご対応させて頂きたい為、要予約とさせて頂いております。ご来店の際は先ずは下記よりご予約下さい。
近くのエリアで探してみる
浜松町/田町/芝公園エリアでAフロント芝二丁目ビルに似た条件の物件
読込中...
Aフロント芝二丁目ビルと同じ最寄駅の物件
読込中...
| 取扱様態 | 仲介 |
|---|---|
| 取扱会社 | 株式会社 アットオフィス |