せんりゅうどうビル2階の賃貸情報
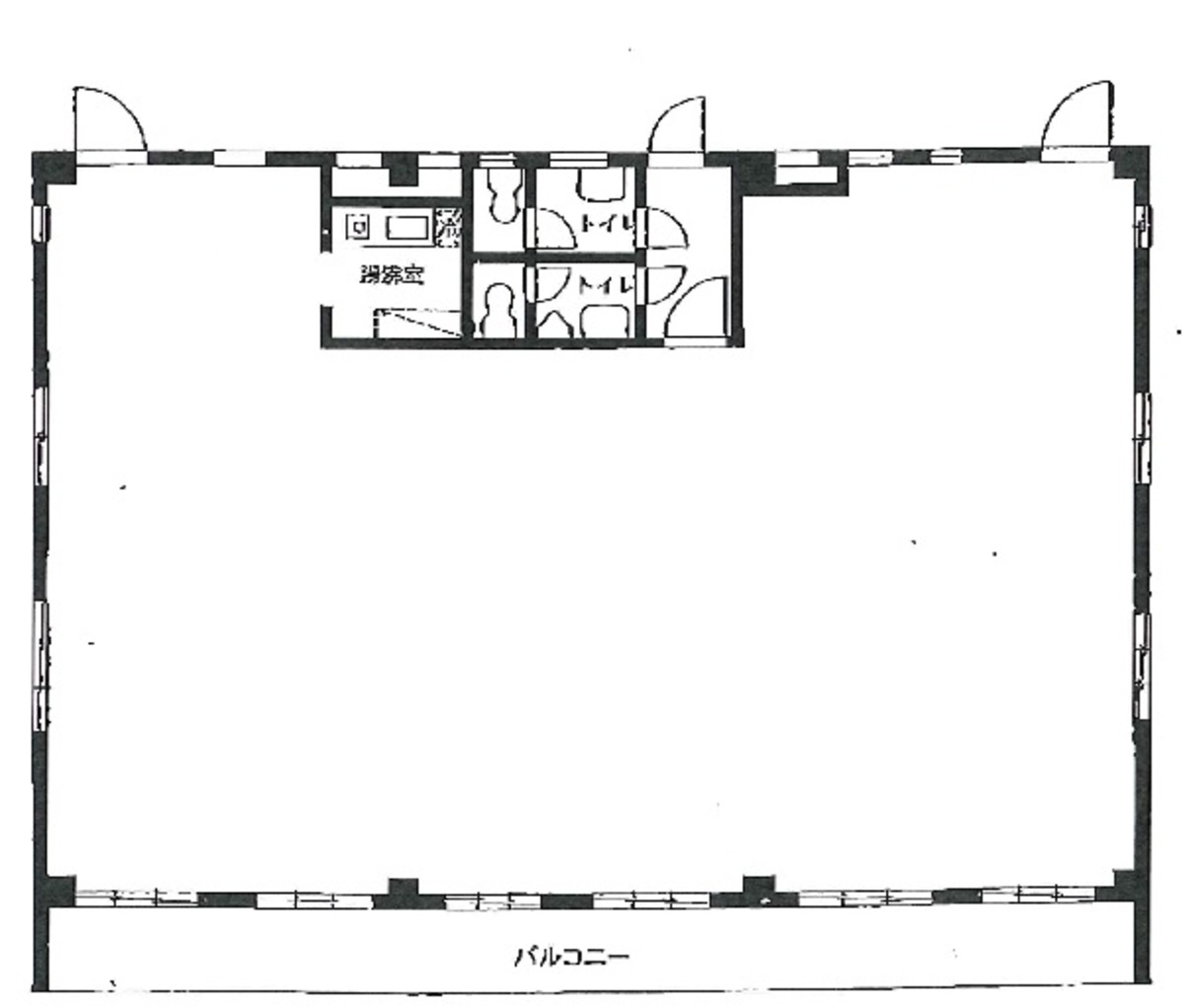
49.23 坪 (162.75m²)
※このサイトに記載がある賃貸条件は、敷金・保証金などの預かり金を除き、別途消費税がかかります。
せんりゅうどうビルの建物概要
設備詳細
| 空調 | - |
|---|---|
| トイレ | - |
| 床仕様 | OA対応床(フリーアクセス) |
| エレベータ | - |
| 駐車場設備 | - |
| その他 | 新耐震基準 |
せんりゅうどうビル2階の賃貸オフィス・事務所に関するお問い合わせ
せんりゅうどうビルについて
【千代田区隼町・せんりゅうどうビルの紹介】 今日は千代田区隼町に立地する、1995年竣工の耐震性に優れたオフィスビル「せんりゅうどうビル」のご紹介をさせていただきます。ビジネスの舞台として最適な環境をお探しのぜひともご注目ください。 【立地の特長】 せんりゅうどうビルは、東京の政治・文化の中心地に位置します。国立劇場と最高裁判所が隣接する、まさにプレミアムな立地です。半蔵門駅からは徒歩わずか2分、さらに永田町駅と麹町駅も徒歩圏内にあり、東京メトロ半蔵門線・有楽町線・南北線の3路線が利用可能。アクセスの良さは、ビジネスのチャンスを広げる大きな強みになります。 【ビルの特長】 竣工は1995年となっており、耐震性に優れた構造で、万一の地震にも安心の仕様です。地上2階建てとコンパクトながら、入口が2ヶ所あり、ビル内に月極駐車場も完備。24時間利用可能で、ビジネスのニーズに応じた柔軟な運用が可能です。また、2階区画はOAフロアで、最新のオフィス環境を整えることができます。 【周辺環境】 ビルの周辺は、国立劇場をはじめ、文化施設が点在する閑静な住宅街です。徒歩圏内にコンビニや郵便局、お弁当屋さんなどもあり、日常の利便性も高いです。ビジネスだけでなく、日々の生活にも充実感を提供します。 【ビジネスにおける利点】 せんりゅうどうビルの最大の魅力は、その立地と機能性にあります。国立劇場、最高裁判所といった国の象徴的施設に隣接し、首都東京の中心に位置することで、ビジネスの格を上げることができます。また、3駅3路線のアクセスと、24時間利用可能な環境は、国内外のクライアントを迎えるビジネスシーンにおいて、大きなアドバンテージとなるでしょう。 皆様のビジネスの成功に寄与する、そんな場所がせんりゅうどうビルです。この機会に、ぜひ一度、ご覧いただき、あなたのビジネスの新たな拠点としてご検討ください。立地、機能性、そして環境、すべてにおいて最高のオフィスを提供いたします。
せんりゅうどうビルのこだわり
自分で探すより問い合わせる方が早いことがあります
WEB非公開物件があるから
オーナー様のご希望により「WEBでは非公開」にしている物件があります。 それらはWEBでいくら検索しても見つかりません。 先ずは条件などお知らせ頂けましたら非公開物件含め ピッタリのオフィスをご提案させて頂きます。 無理なお勧めはしておりませんので、お気軽にお問い合わせください。
対面でのご相談も受け付けております
ご来店も歓迎です
オフィス移転は社内・社外ともに非公開に行われることが殆どです。そのためアットオフィスでは、基本的に訪問によるコンサルティングを行っておりますが、ご来店の相談も歓迎です。お一人おひとりに親身にご対応させて頂きたい為、要予約とさせて頂いております。ご来店の際は先ずは下記よりご予約下さい。
番町/麹町/平河町エリアでせんりゅうどうビルに似た条件の物件
読込中...
せんりゅうどうビルと同じ最寄駅の物件
読込中...
| 取扱様態 | 仲介 |
|---|---|
| 取扱会社 | 株式会社 アットオフィス |