東信東池袋ビルの賃料条件
| 階数 | 坪数 | 賃料 + 共益費 | 敷金/礼金敷金 礼金 | 検討 |
|---|---|---|---|---|
| 5階 | 76.14坪 (251.71m²) | 1,142,100円 (坪:15,000 円) | 12ヶ月 無12ヶ月/無 |
※このサイトに記載がある賃貸条件は、敷金・保証金などの預かり金を除き、別途消費税がかかります。
物件情報
設備詳細
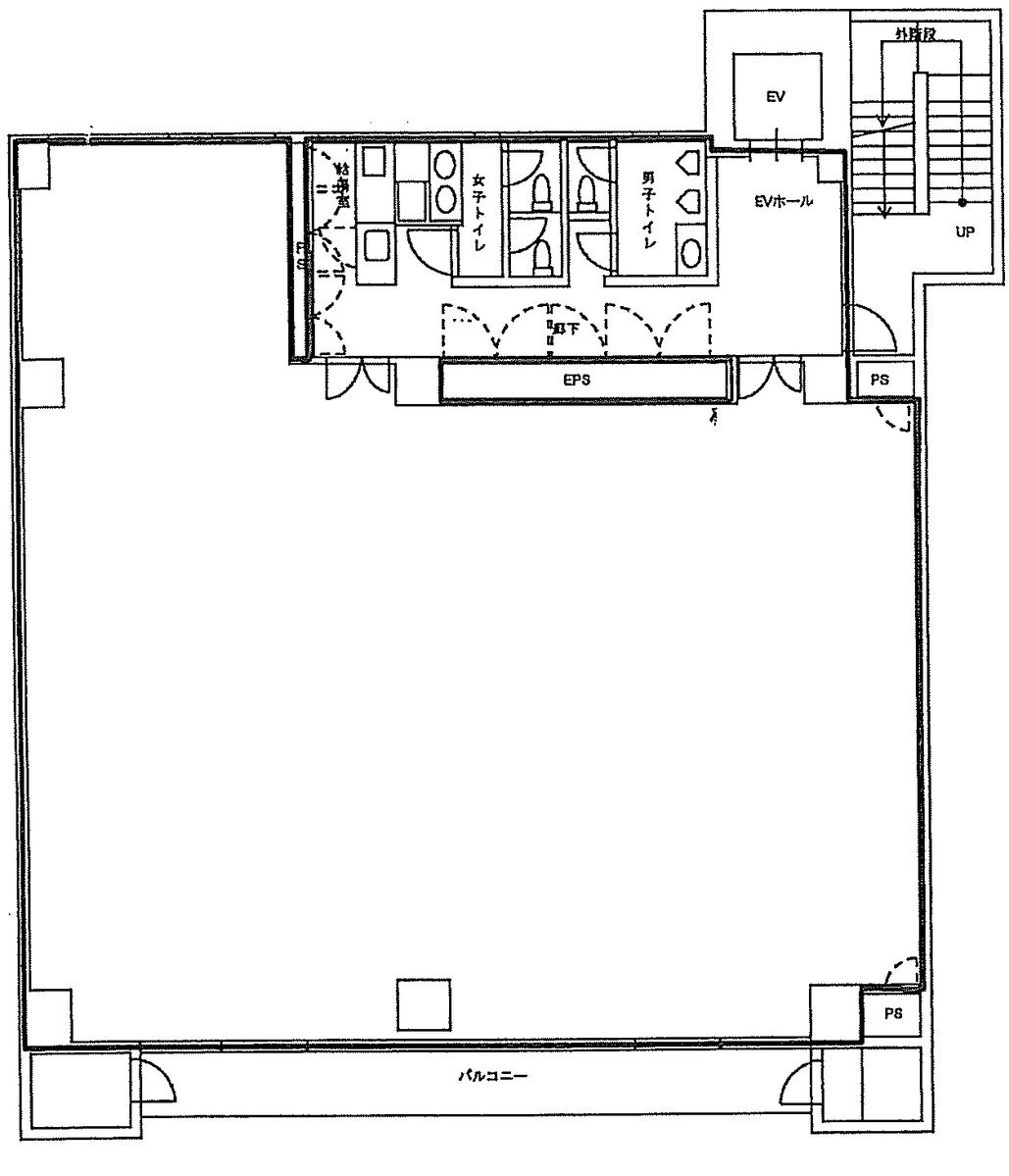
| 空調 | 個別空調 |
|---|---|
| トイレ | 男女別トイレ室外 |
| 床仕様 | OA対応床(フリーアクセス) |
| エレベータ | 1 基 |
| 駐車場設備 | 空無 / 機械式駐車場 |
| その他 | 光ファイバー / 24時間利用可 / 機械警備 / 新耐震基準 |
東信東池袋ビルの賃貸オフィス・事務所に関するお問い合わせ
東信東池袋ビルについて
東信東池袋ビルは、東京都豊島区東池袋に位置する、賃貸オフィスビルです。1989年に新耐震基準に基づいて建設されたこのビルは、7階建てで、基準階は約76坪の広々としたオフィススペースを提供しています。グレーの御影石を使用した外観は、存在感と品格を感じさせ、ビジネスシーンにふさわしい重厚感を演出しています。 立地において、東信東池袋ビルは春日通りに面しており、アクセスが非常に便利です。最寄り駅の向原駅から徒歩圏内で、他に新大塚駅や大塚駅、大塚駅前駅も利用可能です。この立地は、東京の主要エリアへの移動が容易であり、ビジネスの機会を最大限に広げることができます。また、周囲にはオフィスビルと集合住宅が混在し、裏手には住宅街が広がることから、周辺環境が落ち着いており、働くための快適な環境が整っています。 設備面では、ビル内に1基のエレベーターが設置されており、スムーズな移動をサポートします。また、機械警備システムが導入されているため、セキュリティ面でも安心して業務を行うことができます。駐車場はビル内に機械式で設けられており、常に利用の便を考慮した設計がされています。 ビルのエントランスは、大きな階段が設置されており、開放感あふれる迎え入れが特徴です。これにより、ビジターやビジネスパートナーを迎える際の印象も良く、企業イメージの向上にも寄与します。 東信東池袋ビルは、その耐震性、アクセスの良さ、快適なオフィス環境、そして高いセキュリティという点で、多くの企業にとって魅力的な選択肢となるでしょう。ビジネスの拠点として、または新しいオフィスをお探しの方に、ぜひお勧めしたい物件です。
自分で探すより問い合わせる方が早いことがあります
WEB非公開物件があるから
オーナー様のご希望により「WEBでは非公開」にしている物件があります。 それらはWEBでいくら検索しても見つかりません。 先ずは条件などお知らせ頂けましたら非公開物件含め ピッタリのオフィスをご提案させて頂きます。 無理なお勧めはしておりませんので、お気軽にお問い合わせください。
対面でのご相談も受け付けております
ご来店も歓迎です
オフィス移転は社内・社外ともに非公開に行われることが殆どです。そのためアットオフィスでは、基本的に訪問によるコンサルティングを行っておりますが、ご来店の相談も歓迎です。お一人おひとりに親身にご対応させて頂きたい為、要予約とさせて頂いております。ご来店の際は先ずは下記よりご予約下さい。
募集終了のテナント区画
| 階数 | 坪数 | 賃料 + 共益費 | 敷金/礼金敷金 礼金 | 検討 |
|---|---|---|---|---|
| 1階 | 40.83坪 (134.98m²) | 募集終了 | - | - |
| 2階 | 76.14坪 (251.7m²) | 募集終了 | - | - |
| 3階 | 76.14坪 (251.7m²) | 募集終了 | - | - |
| 4階 | 76.14坪 (251.7m²) | 募集終了 | - | - |
| 6階 | 76.14坪 (251.7m²) | 募集終了 | - | - |
| 7階 | 76.14坪 (251.7m²) | 募集終了 | - | - |
読込中...
池袋/大塚/目白エリアで東信東池袋ビルに似た条件の物件
読込中...
| 取扱様態 | 仲介 |
|---|---|
| 取扱会社 | 株式会社 アットオフィス |