家本ビル4階の賃貸情報
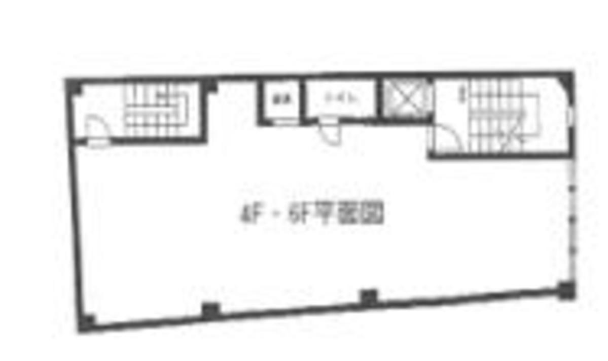
34 坪 (112.4m²)
※このサイトに記載がある賃貸条件は、敷金・保証金などの預かり金を除き、別途消費税がかかります。
設備詳細
| 空調 | 個別空調 |
|---|---|
| トイレ | - |
| 床仕様 | - |
| エレベータ | - |
| 駐車場設備 | - |
| その他 | 神奈川賃料が10000円以下 |
家本ビル4階の賃貸オフィス・事務所に関するお問い合わせ
家本ビルについて
家本は、大和東2丁目にあるオフィスビルです。大和駅から徒歩4分の駅近物件です。1980年に竣工しました。鉄筋コンクリートにより耐震性に優れています。エレベーターが1基あります。個別空調付きです。男女共用トイレがあります。駐車場があります。店舗として利用できます。周辺には飲食店や専門店、美容サロンがあります。近隣にはオフィスビルやマンションが立ち並んでいます。広い通りに面しているため、見通しの良い場所です。専門店やバス停が充実しているため、利用しやすいエリアです。
家本ビルのこだわり
自分で探すより問い合わせる方が早いことがあります
WEB非公開物件があるから
オーナー様のご希望により「WEBでは非公開」にしている物件があります。 それらはWEBでいくら検索しても見つかりません。 先ずは条件などお知らせ頂けましたら非公開物件含め ピッタリのオフィスをご提案させて頂きます。 無理なお勧めはしておりませんので、お気軽にお問い合わせください。
対面でのご相談も受け付けております
ご来店も歓迎です
オフィス移転は社内・社外ともに非公開に行われることが殆どです。そのためアットオフィスでは、基本的に訪問によるコンサルティングを行っておりますが、ご来店の相談も歓迎です。お一人おひとりに親身にご対応させて頂きたい為、要予約とさせて頂いております。ご来店の際は先ずは下記よりご予約下さい。
大和市エリアで家本ビルに似た条件の物件
読込中...
家本ビルと同じ最寄駅の物件
読込中...
| 取扱様態 | 仲介 |
|---|---|
| 取扱会社 | 株式会社 アットオフィス |