※このサイトに記載がある賃貸条件は、敷金・保証金などの預かり金を除き、別途消費税がかかります。
物件情報
設備詳細
| 空調 | - |
|---|---|
| トイレ | 男女別トイレ室外 |
| 床仕様 | - |
| エレベータ | 1 基 |
| 駐車場設備 | - |
| その他 | 東京賃料が坪11000円以下 / 保証金・敷金+礼金が3か月以下 / スケルトン / 店舗可(飲食可) |
巣鴨第一ビルの賃貸オフィス・事務所に関するお問い合わせ
巣鴨第一ビルについて
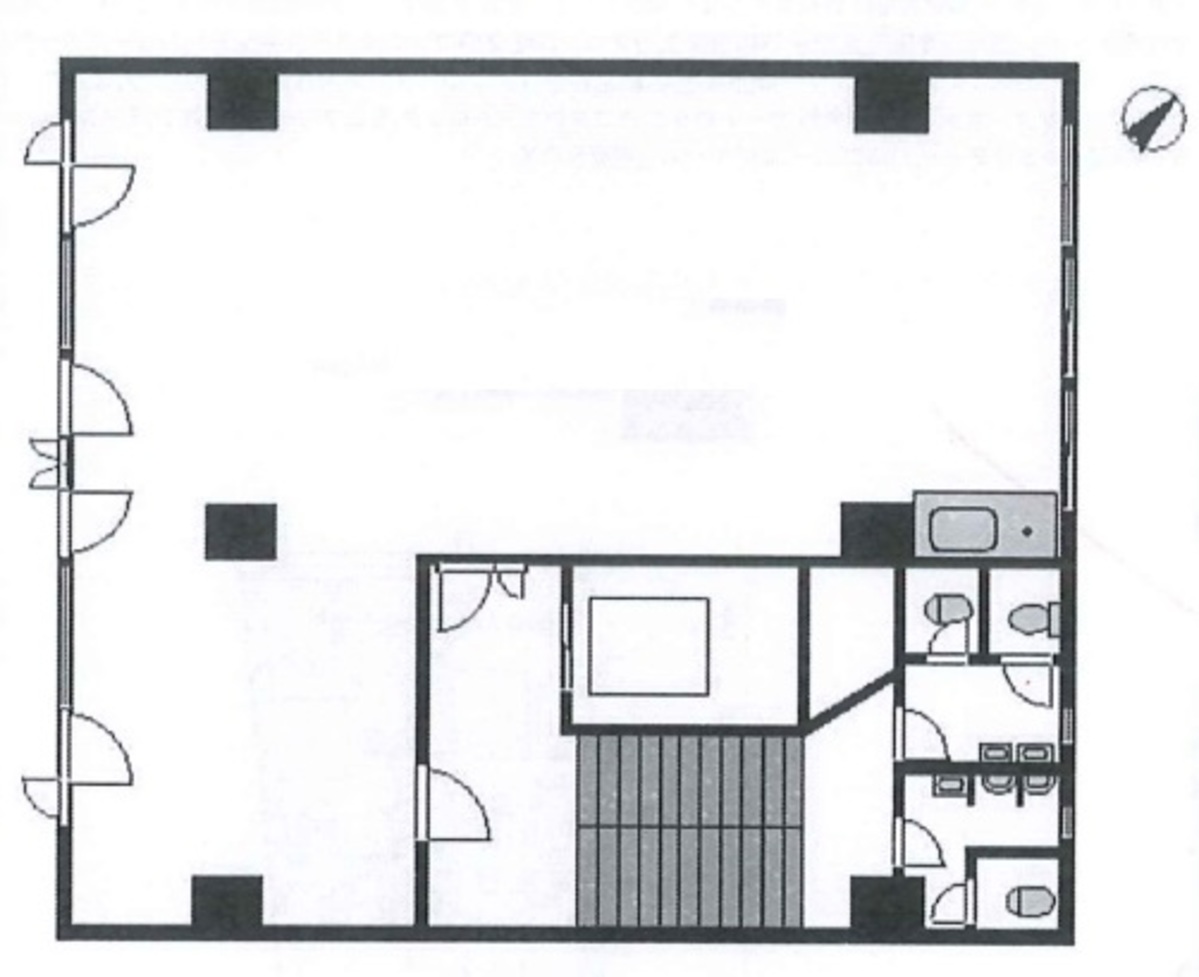
巣鴨第1ビルは、東京都豊島区巣鴨2丁目に位置する魅力的なオフィス賃貸物件です。その立地条件と設備の充実度から、多くのビジネスに適した空間を提供しています。以下に、その特性や魅力について詳しくご紹介します。 ### 立地 巣鴨第1ビルは、JR山手線と都営三田線が利用できる「巣鴨駅」から徒歩4分と、非常に便利な場所に位置しています。また、「新庚申塚駅」も利用可能で、どちらの駅からもアクセスが良好です。周辺には飲食店やコンビニエンスストアが多く、ビジネスの合間に食事や買い物を手軽に済ませることができます。さらに、白山通り沿いに立地しており、視認性も高く、多くの人々から注目を浴びる場所です。 ### 建物概要 巣鴨第1ビルは1973年に竣工した地上8階建ての賃貸オフィスビルです。ビル全体の雰囲気はガラス張りの外観が特徴で、モダンで洗練された印象を与えます。ビルの1階にはセブンイレブンが入居しており、入居者にとって非常に便利です。エントランスホールも広々としており、来客を迎えるのにふさわしい空間が広がっています。エレベーターは1基設置されており、各階への移動もスムーズです。 ### フロアとオフィス空間 巣鴨第1ビルの基準階の面積は約32坪で、L字型の間取りとなっています。室内には一部柱があるため、詳細なレイアウトは内見時にご確認いただくことをお勧めします。オフィス内部は個別空調が設置されており、入居者の快適な環境を提供します。また、水回りはオフィス外に設置されているため、オフィス内のレイアウトがしやすい構造となっています。トイレは男女別に設置されており、清潔で使いやすい環境が整っています。 ### 周辺環境 巣鴨第1ビルは住宅とオフィスが混在するエリアに位置しています。徒歩1分で巣鴨地蔵通り商店街に行けるため、仕事の合間にリフレッシュしたり、必要なものを手軽に購入することができます。郵便局や西友巣鴨店も徒歩圏内にあり、ビジネスに必要なサービスがすぐに利用できるのも大きな魅力です。 ### まとめ 巣鴨第1ビルは、その立地の良さ、充実した設備、そして便利な周辺環境が揃ったオフィス賃貸物件です。特に、駅からのアクセスの良さや周辺の豊富な飲食店・コンビニエンスストアの存在は、ビジネスを円滑に運営するための大きな利点となります。また、ガラス張りの外観や広々としたエントランスホールなど、来客にも好印象を与える要素が多いことから、多くの企業にとって理想的なオフィス空間を提供します。 巣鴨第1ビルでのビジネス展開をぜひご検討ください。詳細な情報や内見のご予約は、お気軽にお問い合わせください。
巣鴨第一ビルのこだわり
自分で探すより問い合わせる方が早いことがあります
WEB非公開物件があるから
オーナー様のご希望により「WEBでは非公開」にしている物件があります。 それらはWEBでいくら検索しても見つかりません。 先ずは条件などお知らせ頂けましたら非公開物件含め ピッタリのオフィスをご提案させて頂きます。 無理なお勧めはしておりませんので、お気軽にお問い合わせください。
対面でのご相談も受け付けております
ご来店も歓迎です
オフィス移転は社内・社外ともに非公開に行われることが殆どです。そのためアットオフィスでは、基本的に訪問によるコンサルティングを行っておりますが、ご来店の相談も歓迎です。お一人おひとりに親身にご対応させて頂きたい為、要予約とさせて頂いております。ご来店の際は先ずは下記よりご予約下さい。
募集終了のテナント区画
| 階数 | 坪数 | 賃料 + 共益費 | 敷金/礼金敷金 礼金 | 検討 |
|---|---|---|---|---|
| 1-2階 | 64.64坪 (213.7m²) | 募集終了 | - | - |
| 1階 | 29.67坪 (98.1m²) | 募集終了 | - | - |
| 2階 | 31.1坪 (102.8m²) | 募集終了 | - | - |
| 2階 | 34.96坪 (115.6m²) | 募集終了 | - | - |
| 5階 | 32.98坪 (109.01m²) | 募集終了 | - | - |
| 7階 | 32.98坪 (109.01m²) | 募集終了 | - | - |
| 8階 | 32.98坪 (109.01m²) | 募集終了 | - | - |
読込中...
駒込/巣鴨/大塚エリアで巣鴨第一ビルに似た条件の物件
読込中...
| 取扱様態 | 仲介 |
|---|---|
| 取扱会社 | 株式会社 アットオフィス |