※このサイトに記載がある賃貸条件は、敷金・保証金などの預かり金を除き、別途消費税がかかります。
お電話でもお気軽にお問い合わせください
物件情報
設備詳細
| 空調 | - |
|---|---|
| トイレ | - |
| 床仕様 | - |
| エレベータ | 1 基 |
| 駐車場設備 | 空有 |
| その他 | SOHO/マンション |
アクセスマップ
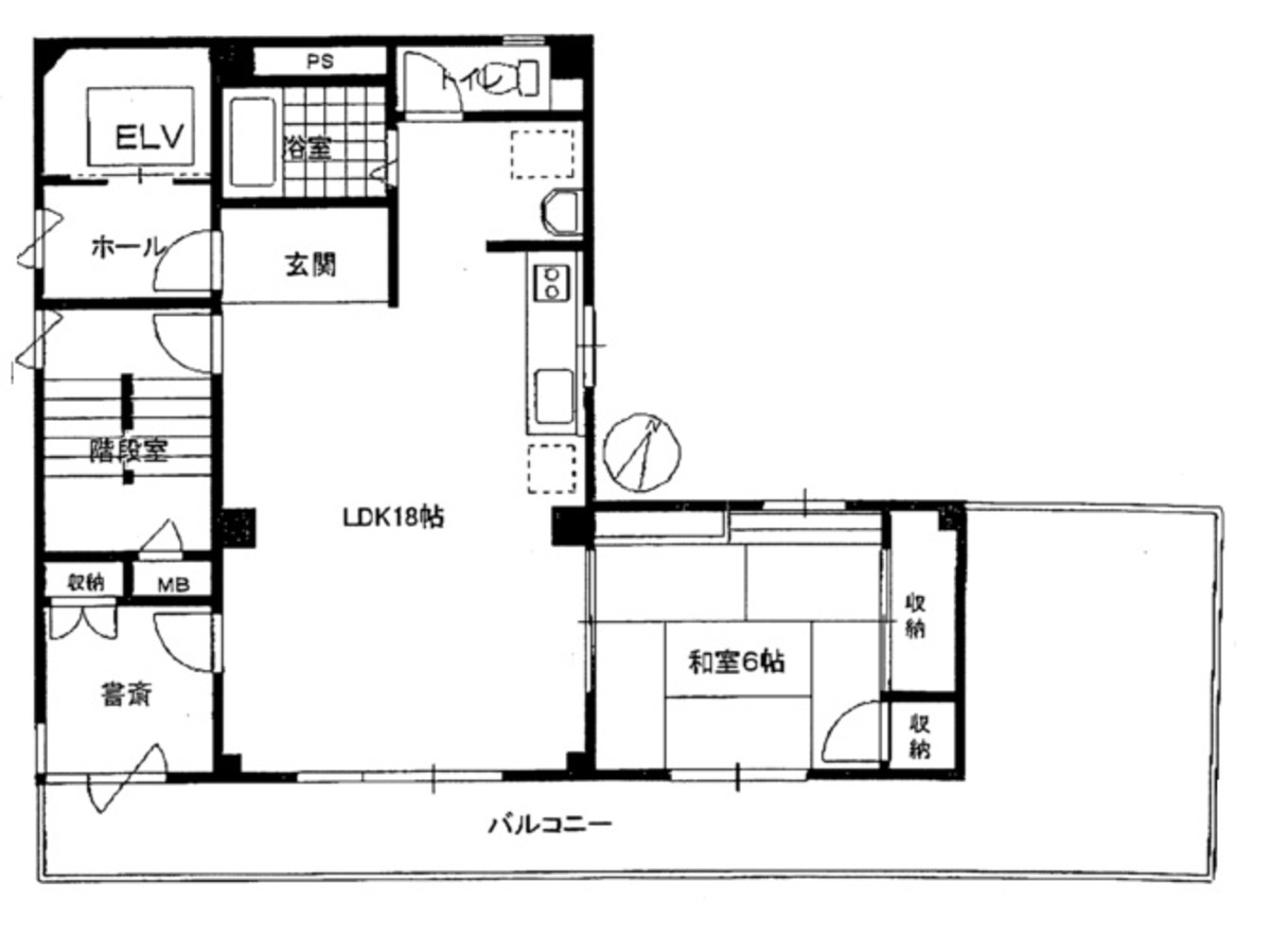
シントミ東日本橋ビルは、東京都中央区東日本橋1丁目に位置する、ビジネスの拠点として理想的なオフィスビルです。この物件は、1985年に新耐震基準に基づき建てられた地上5階建ての建物で、現代のビジネスニーズに合わせた設備と快適なオフィス空間を提供しています。 まず、立地においてこのビルは非常に恵まれています。東日本橋駅から徒歩わずか3分という駅近物件でありながら、大通りから一歩中に入った静かな環境に立地している点が特筆されます。このため、ビジネスの中心地でありながらも、落ち着いた環境で仕事に集中したいと考える企業にとって魅力的な場所であるといえるでしょう。さらに、馬喰横山駅や浜町駅も徒歩圏内にあるため、複数の交通機関を利用しやすいという利点があります。 ビルの内部に関しては、基準階の貸事務所が38坪と広々としており、L字型の間取りが特徴的です。このような間取りは、オフィスの配置を柔軟に行えるため、企業の個性や働き方に合わせたオフィス環境を実現できます。また、内装も個性的で、明るい窓面と柱の配置が、効率的かつ魅力的なワークスペースを作り出しています。 ビル内にはエレベーターが1機設置されており、移動の利便性を高めています。また、月極駐車場がビル内に設けられているため、車での通勤やビジネス用途での使用も容易です。このような設備は、ビジネスの様々なシーンでの利便性を高めることに貢献しています。 周辺環境もビジネスにとって有利な点が多く、小さなコンビニやお弁当屋、郵便局といった日常の利用に便利な施設が徒歩圏内に揃っています。また、1階には中華料理店が入居しており、ランチタイムやビジネスでの接待にも便利です。 シントミ東日本橋ビルは、その立地、設備、周辺環境ともに、ビジネスの成長と発展を支える理想的なオフィス環境を提供しています。駅近でありながら静かな環境、広々としたオフィススペース、そして日常の利便性を兼ね備えたこの物件は、様々な業種の企業にとって魅力的な選択肢となるでしょう。
募集終了のテナント区画
| 階数 | 坪数 | 賃料 + 共益費 | 敷金/礼金敷金 礼金 | 検討 |
|---|---|---|---|---|
| 2階 | 38坪 (125.62m²) | 募集終了 | - | - |
WEB非公開物件がございます
オーナー様ご希望によるWEB非公開の物件もございます。先ずは条件などお知らせ頂けましたら、非公開物件含めピッタリのオフィスをご提案させて頂きます。具体的な物件がお決まりでない場合でも問題ございません。無理なお勧めはしておりませんので、お気軽にお問い合わせください。
ご来店も歓迎です
オフィス移転は社内・社外ともに非公開に行われることが殆どです。そのためアットオフィスでは、基本的に訪問によるコンサルティングを行っておりますが、ご来店の相談も歓迎です。
※お一人おひとりに親身にご対応させて頂きたい為、要予約とさせて頂いております。ご来店の際は先ずは上記よりご予約下さい。
読込中...
近くのエリアで探してみる
人形町/馬喰町/浜町エリアでシントミ東日本橋ビルに似た条件の物件
読込中...