※このサイトに記載がある賃貸条件は、敷金・保証金などの預かり金を除き、別途消費税がかかります。
物件情報
設備詳細
| 空調 | - |
|---|---|
| トイレ | - |
| 床仕様 | OA対応床(フリーアクセス) |
| エレベータ | 6 基 |
| 駐車場設備 | 空有 |
| その他 | 大型ビル / 機械警備 / 新耐震基準 |
富士フイルム名古屋ビルの賃貸オフィス・事務所に関するお問い合わせ
富士フイルム名古屋ビルについて
富士フイルム名古屋ビルは、名古屋市のビジネスの中心地である栄1丁目に位置する、2013年竣工の高品質なオフィスビルです。ガラスウォールを用いたモダンで洗練された外観が目を引き、先進的かつシャープな印象を与えます。このビルは新耐震基準を満たしており、地上14階・地下1階の規模を持つ鉄骨鉄筋コンクリート造の構造です。 伏見駅から徒歩わずか4分、大須観音駅からも徒歩7分という好立地にあり、名古屋市鶴舞線と東山線の2路線が利用可能です。この利便性の高さは、社員の通勤やビジネスパートナーの訪問にも非常に便利です。さらに、周辺にはレストランやカフェ、銀行、コンビニエンスストアなど、ビジネスに必要な施設が充実しており、働く人々の生活をサポートします。 ビルの内部には、最新のビルディングスペックが備わっています。グリッド天井と自動調光制御システムが採用されており、OAフロアと合わせて自由度の高いオフィスレイアウトが可能です。また、個別空調システムが導入されているため、各テナントは快適な環境を維持しながらエネルギー効率を最適化することができます。 セキュリティ面でも機械警備が導入されており、24時間の使用が可能です。駐車場は34台分を確保しており、車を利用する社員や来客にも対応しています。さらに、非常用自家発電機の設置場所も確保されており、BCP(事業継続計画)対策にも優れた選択です。 バリアフリーにも対応しており、全フロアにハンディキャップトイレが設置されています。これにより、多様な人々が快適に利用できる環境が整っています。ビルの周囲には緑豊かな植栽が施され、日々の業務においてもリフレッシュできる空間が提供されています。 富士フイルム名古屋ビルは、企業の開業やオフィスの移転を検討している方にとって、立地の良さ、設備の充実、そして環境配慮型の設計が魅力的な選択肢となるでしょう。名古屋の中心地でビジネスを展開するための理想的な拠点として、このビルは貴社の成長を力強くサポートします。
自分で探すより問い合わせる方が早いことがあります
WEB非公開物件があるから
オーナー様のご希望により「WEBでは非公開」にしている物件があります。 それらはWEBでいくら検索しても見つかりません。 先ずは条件などお知らせ頂けましたら非公開物件含め ピッタリのオフィスをご提案させて頂きます。 無理なお勧めはしておりませんので、お気軽にお問い合わせください。
対面でのご相談も受け付けております
ご来店も歓迎です
オフィス移転は社内・社外ともに非公開に行われることが殆どです。そのためアットオフィスでは、基本的に訪問によるコンサルティングを行っておりますが、ご来店の相談も歓迎です。お一人おひとりに親身にご対応させて頂きたい為、要予約とさせて頂いております。ご来店の際は先ずは下記よりご予約下さい。
募集終了のテナント区画
| 階数 | 坪数 | 賃料 + 共益費 | 敷金/礼金敷金 礼金 | 検討 |
|---|---|---|---|---|
| 1階 | 91坪 (300.83m²) | 募集終了 | - | - |
| 2階 | 255坪 (842.98m²) | 募集終了 | - | - |
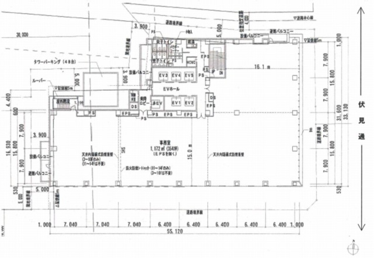
| 3階 | 354.53坪 (1172m²) | 募集終了 | - | - |
| 4階 | 354.53坪 (1172m²) | 募集終了 | - | - |
| 5階 | 354.53坪 (1172m²) | 募集終了 | - | - |
| 6階 | 354.53坪 (1172m²) | 募集終了 | - | - |
| 7階 | 354.53坪 (1172m²) | 募集終了 | - | - |
| 8階 | 354.53坪 (1172m²) | 募集終了 | - | - |
| 9階 | 354.51坪 (1171.96m²) | 募集終了 | - | - |
| 9階 | 88.37坪 (292.14m²) | 募集終了 | - | - |
| 10階 | 354.51坪 (1171.93m²) | 募集終了 | - | - |
| 10階 | 125.24坪 (414.04m²) | 募集終了 | - | - |
| 10階 | 88.37坪 (292.14m²) | 募集終了 | - | - |
| 11階 | 39.52坪 (130.64m²) | 募集終了 | - | - |
| 11階 | 29.23坪 (96.63m²) | 募集終了 | - | - |
| 11階 | 98.61坪 (325.98m²) | 募集終了 | - | - |
| 11階 | 29.23坪 (96.63m²) | 募集終了 | - | - |
| 11階 | 26.58坪 (87.87m²) | 募集終了 | - | - |
| 11階 | 26.58坪 (87.87m²) | 募集終了 | - | - |
| 11階 | 88.3坪 (291.9m²) | 募集終了 | - | - |
| 12階 | 354.36坪 (1171.44m²) | 募集終了 | - | - |
| 13階 | 354.36坪 (1171.44m²) | 募集終了 | - | - |
| 14階 | 354.53坪 (1172m²) | 募集終了 | - | - |
読込中...
中区エリアで富士フイルム名古屋ビルに似た条件の物件
読込中...
| 取扱様態 | 仲介 |
|---|---|
| 取扱会社 | 株式会社 アットオフィス |