LaKRSビル2階の賃貸情報
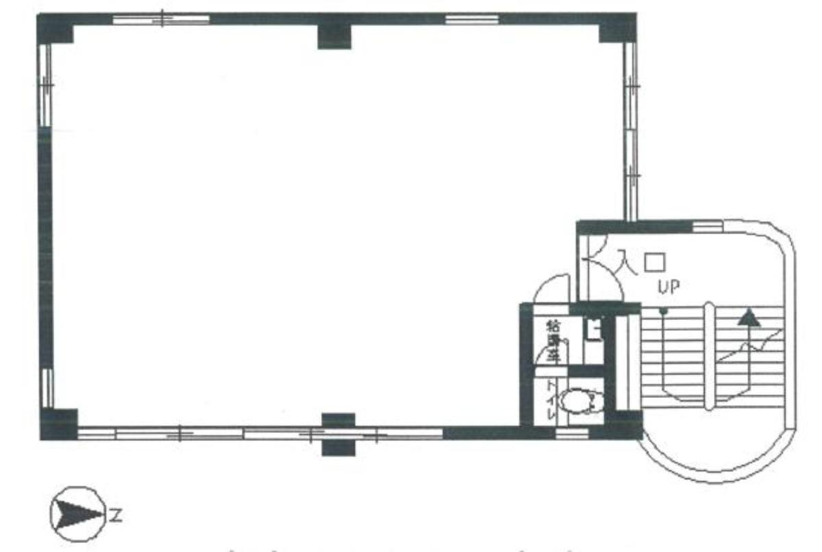
21.6 坪 (71.4m²)
※このサイトに記載がある賃貸条件は、敷金・保証金などの預かり金を除き、別途消費税がかかります。
LaKRSビルの建物概要
設備詳細
| 空調 | 個別空調 |
|---|---|
| トイレ | 男女共用トイレ・室内 |
| 床仕様 | OA対応床(フリーアクセス) |
| エレベータ | - |
| 駐車場設備 | - |
| その他 | 新耐震基準 / フリーレント |
LaKRSビル2階の賃貸オフィス・事務所に関するお問い合わせ
LaKRSビルについて
LaKRSビルは、新宿区愛住町に位置しています。周辺には、丸ノ内線「四谷三丁目駅」から徒歩4分、都営新宿線「曙橋駅」から徒歩6分、丸ノ内線「新宿御苑前駅」から徒歩8分と、複数の路線・駅が利用可能な立地となっています。これにより、建物へのアクセス手段が選択できる点が特徴です。 本ビルは、新耐震基準に適合しており、事業用物件としての基本的な要件を備えています。周辺は住宅やオフィスが混在するエリアであり、落ち着いた環境のなかで事業活動を行うことができます。新宿や四谷といった各エリアとの行き来にも配慮された立地で、駅から物件までの道のりも比較的平坦です。 事務所利用を想定した建物となっており、交通アクセスや環境面を重視したい法人や団体にも対応可能です。詳細はお問い合わせください。
自分で探すより問い合わせる方が早いことがあります
WEB非公開物件があるから
オーナー様のご希望により「WEBでは非公開」にしている物件があります。 それらはWEBでいくら検索しても見つかりません。 先ずは条件などお知らせ頂けましたら非公開物件含め ピッタリのオフィスをご提案させて頂きます。 無理なお勧めはしておりませんので、お気軽にお問い合わせください。
対面でのご相談も受け付けております
ご来店も歓迎です
オフィス移転は社内・社外ともに非公開に行われることが殆どです。そのためアットオフィスでは、基本的に訪問によるコンサルティングを行っておりますが、ご来店の相談も歓迎です。お一人おひとりに親身にご対応させて頂きたい為、要予約とさせて頂いております。ご来店の際は先ずは下記よりご予約下さい。
四ツ谷/信濃町エリアでLaKRSビルに似た条件の物件
読込中...
LaKRSビルと同じ最寄駅の物件
読込中...
| 取扱様態 | 仲介 |
|---|---|
| 取扱会社 | 株式会社 アットオフィス |