アソルティ日本橋小伝馬町の賃料条件
| 階数 | 坪数 | 賃料 + 共益費 | 敷金/礼金敷金 礼金 | 検討 |
|---|---|---|---|---|
| 2階 | 19.51坪 (64.5m²) | 292,650円 (坪:15,000 円) | 12ヶ月 無12ヶ月/無 | |
| 5階 | 19.51坪 (64.5m²) | 390,200円 (坪:20,000 円) | 無 無無/無 |
※このサイトに記載がある賃貸条件は、敷金・保証金などの預かり金を除き、別途消費税がかかります。
物件情報
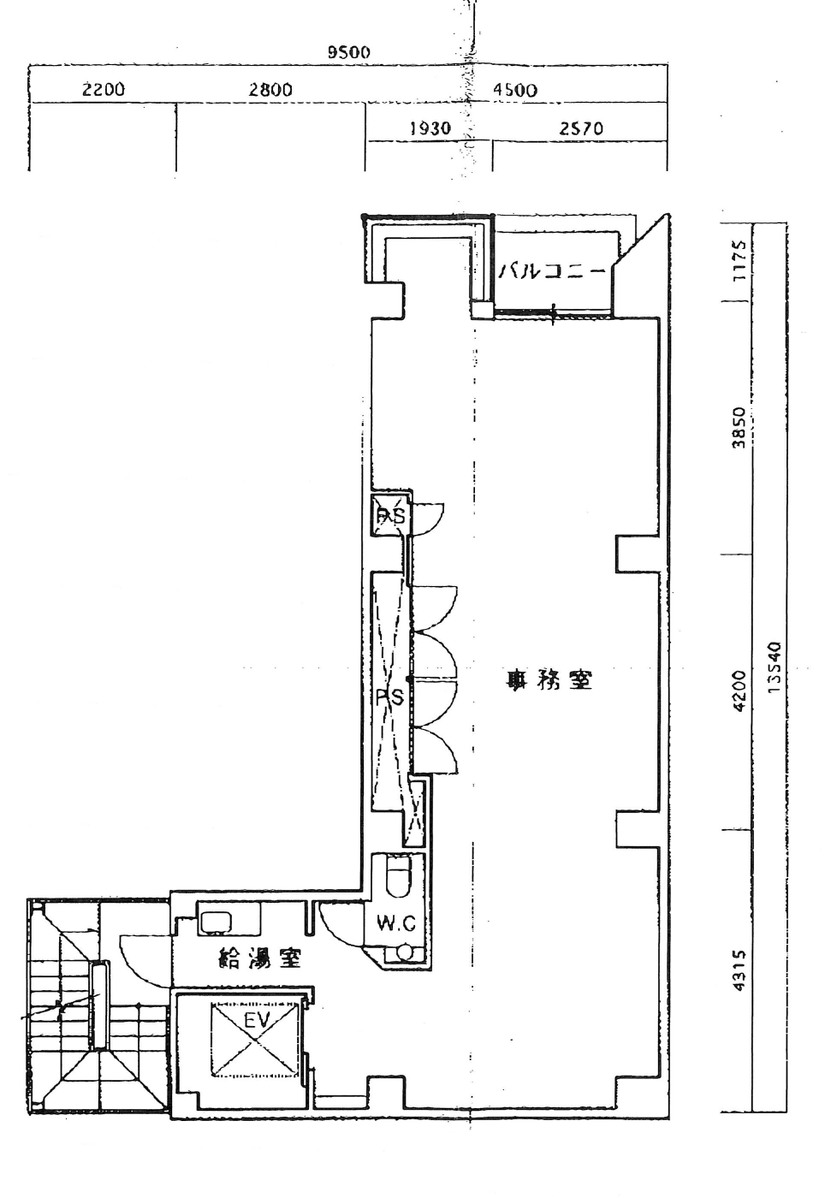
設備詳細
| 空調 | 個別空調 |
|---|---|
| トイレ | 男女共用トイレ・室内 |
| 床仕様 | - |
| エレベータ | 1 基 |
| 駐車場設備 | - |
| その他 | 機械警備 / 光ファイバー / 新耐震基準 / 保証金・敷金+礼金が3か月以下 / セットアップ |
アソルティ日本橋小伝馬町の賃貸オフィス・事務所に関するお問い合わせ
アソルティ日本橋小伝馬町について
アソルティ日本橋小伝馬町ビルは、東京都中央区の経済と文化が交錯する地域に位置する、ビジネスに最適なオフィスビルです。このビルは、小伝馬町駅からわずか徒歩1分という、交通アクセスの良さが際立ちます。ビジネスマンにとって、クライアントや顧客とのアクセスのしやすさは、日々の業務の効率化に不可欠です。アソルティ日本橋小伝馬町ビルは、その点で大きな利点を提供します。 ビルの外観は、石造りで高級感あふれるデザインが特徴的で、訪れる人々に良い印象を与えます。特に、1階に入居している花屋さんは、ビルの魅力をさらに引き立て、ビル全体のイメージを高めています。ビルに足を踏み入れた瞬間から、ビジネスの場としての格調高さと心地よさを感じ取ることができるでしょう。 ビル内部は、最新の設備が整っており、効率的に業務を進めるための環境が整っています。オフィススペースは、明るく開放的で、働く人々の創造性と生産性を高める設計になっています。エレベーターは1機設置されており、スムーズな移動をサポートします。 立地条件として、江戸橋通り沿いに位置していることも見逃せません。この地域は、多くの企業が集まるビジネスの中心地でありながら、歴史的な建造物や文化施設も多く、ビジネスと文化が調和した独特の雰囲気を持っています。ランチタイムや仕事終わりには、周辺を散策し、日本の歴史や文化を感じることができるでしょう。 アソルティ日本橋小伝馬町ビルは、立地、デザイン、設備、環境のすべてにおいて、ビジネスを成功させるための要素を兼ね備えています。ビジネスの拠点として最適なこのビルで、あなたのビジネスをさらに発展させましょう。この素晴らしいビルの詳細については、お気軽にお問い合わせください。ビジネスの成功と繁栄のための第一歩を、アソルティ日本橋小伝馬町ビルで踏み出しましょう。
アソルティ日本橋小伝馬町のこだわり
自分で探すより問い合わせる方が早いことがあります
WEB非公開物件があるから
オーナー様のご希望により「WEBでは非公開」にしている物件があります。 それらはWEBでいくら検索しても見つかりません。 先ずは条件などお知らせ頂けましたら非公開物件含め ピッタリのオフィスをご提案させて頂きます。 無理なお勧めはしておりませんので、お気軽にお問い合わせください。
対面でのご相談も受け付けております
ご来店も歓迎です
オフィス移転は社内・社外ともに非公開に行われることが殆どです。そのためアットオフィスでは、基本的に訪問によるコンサルティングを行っておりますが、ご来店の相談も歓迎です。お一人おひとりに親身にご対応させて頂きたい為、要予約とさせて頂いております。ご来店の際は先ずは下記よりご予約下さい。
募集終了のテナント区画
| 階数 | 坪数 | 賃料 + 共益費 | 敷金/礼金敷金 礼金 | 検討 |
|---|---|---|---|---|
| 1階 | 5坪 (16.52m²) | 募集終了 | - | - |
| 3階 | 19.51坪 (64.5m²) | 募集終了 | - | - |
| 4階 | 20.55坪 (67.93m²) | 募集終了 | - | - |
| 5階 | 20.55坪 (67.93m²) | 募集終了 | - | - |
| 6階 | 28.92坪 (95.61m²) | 募集終了 | - | - |
| 7階 | 19.51坪 (64.5m²) | 募集終了 | - | - |
| 8階 | 19.51坪 (64.5m²) | 募集終了 | - | - |
| 9階 | 19.51坪 (64.5m²) | 募集終了 | - | - |
| 10階 | 19.51坪 (64.49m²) | 募集終了 | - | - |
| 12階 | 28.92坪 (95.61m²) | 募集終了 | - | - |
読込中...
近くのエリアで探してみる
人形町/馬喰町/浜町エリアでアソルティ日本橋小伝馬町に似た条件の物件
読込中...
| 取扱様態 | 仲介 |
|---|---|
| 取扱会社 | 株式会社 アットオフィス |