※このサイトに記載がある賃貸条件は、敷金・保証金などの預かり金を除き、別途消費税がかかります。
物件情報
設備詳細
| 空調 | 個別空調 |
|---|---|
| トイレ | 男女別トイレ室外 |
| 床仕様 | - |
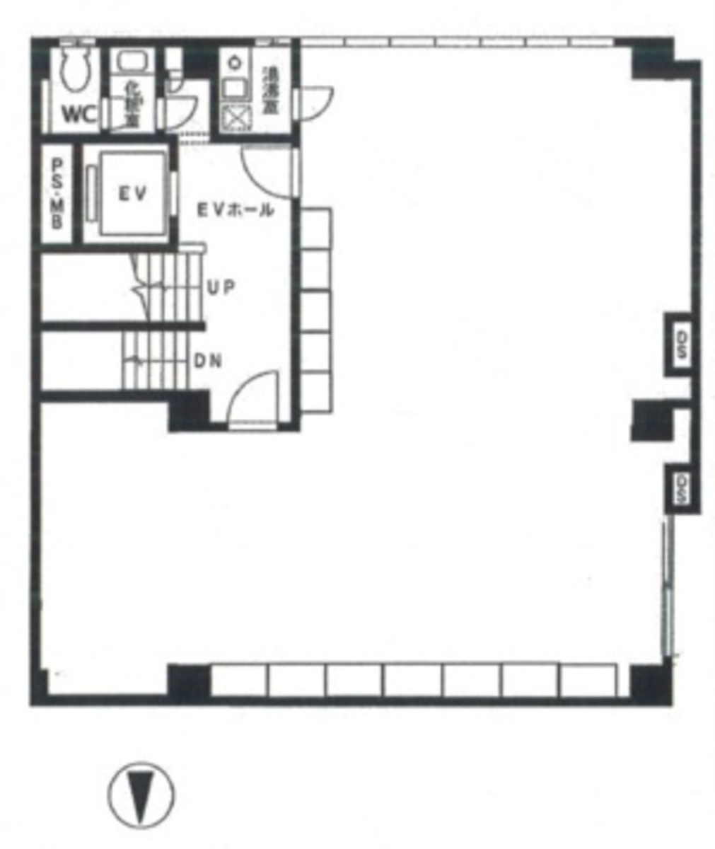
| エレベータ | 1 基 |
| 駐車場設備 | - |
| その他 | 店舗可(飲食不可) / 1階の物件 |
LAビルの賃貸オフィス・事務所に関するお問い合わせ
LAビルについて
渋谷区上原にある「LAビル」は、ビジネスの中心地としての立地と、日々の業務をスムーズに進めるための充実した設備を備え、多くの企業にとって魅力的な選択肢となっています。このビルは、1976年に竣工し、地上4階建ての賃貸事務所物件として、その歴史の中で多くの企業の成長を支えてきました。基準階は約30坪と、中小企業やスタートアップにとっては十分な広さを提供し、エレベーター1基を備えているため、来訪者の移動もスムーズです。 LAビルの最大の魅力は、その立地にあります。代々木上原駅の東口から徒歩約1分という好立地に位置しており、小田急線と千代田線の2路線が利用可能です。これにより、新宿や表参道、赤坂、霞ケ関、大手町といった東京の主要なビジネスエリアへのアクセスが非常に便利です。ビジネスチャンスを広げたい企業にとって、LAビルは理想の選択肢と言えるでしょう。 また、ビルの周辺環境もビジネスにおいて非常に魅力的です。住宅街に位置しながらも、スーパーマーケットや郵便局などの生活に必要な施設が徒歩圏内にあり、日々の業務に必要なサポートも充実しています。また、比較的静かな住宅街にあるため、落ち着いた環境で仕事に集中できるという利点もあります。 オフィス内の設備も充実しており、トイレや給湯施設、エアコンが完備されています。これにより、企業は初期の設備投資を抑えつつ、すぐに業務を開始することが可能です。また、基準階が約30坪という広さは、チームの規模に応じて柔軟に対応できるため、成長期の企業にとっても最適な環境を提供します。 総じて、LAビルは、優れた立地、充実した設備、そして快適な周辺環境を備えた賃貸事務所物件として、多くのビジネスオーナーにとって魅力的な選択肢となるでしょう。企業の成長を支え、ビジネスチャンスを広げるための理想的な拠点と言えるでしょう。
LAビルのこだわり
自分で探すより問い合わせる方が早いことがあります
WEB非公開物件があるから
オーナー様のご希望により「WEBでは非公開」にしている物件があります。 それらはWEBでいくら検索しても見つかりません。 先ずは条件などお知らせ頂けましたら非公開物件含め ピッタリのオフィスをご提案させて頂きます。 無理なお勧めはしておりませんので、お気軽にお問い合わせください。
対面でのご相談も受け付けております
ご来店も歓迎です
オフィス移転は社内・社外ともに非公開に行われることが殆どです。そのためアットオフィスでは、基本的に訪問によるコンサルティングを行っておりますが、ご来店の相談も歓迎です。お一人おひとりに親身にご対応させて頂きたい為、要予約とさせて頂いております。ご来店の際は先ずは下記よりご予約下さい。
読込中...
近くのエリアで探してみる
代々木/初台/幡ヶ谷エリアでLAビルに似た条件の物件
読込中...
| 取扱様態 | 仲介 |
|---|---|
| 取扱会社 | 株式会社 アットオフィス |