※このサイトに記載がある賃貸条件は、敷金・保証金などの預かり金を除き、別途消費税がかかります。
物件情報
設備詳細
| 空調 | 個別空調 |
|---|---|
| トイレ | 男女別トイレ室外 |
| 床仕様 | OA対応床(フリーアクセス) |
| エレベータ | 2 基 |
| 駐車場設備 | 平置き駐車場 |
| その他 | 機械警備 / 24時間利用可 / 新耐震基準 / オートロック / セットアップ |
Jプロ東日本橋ビルの賃貸オフィス・事務所に関するお問い合わせ
Jプロ東日本橋ビルについて
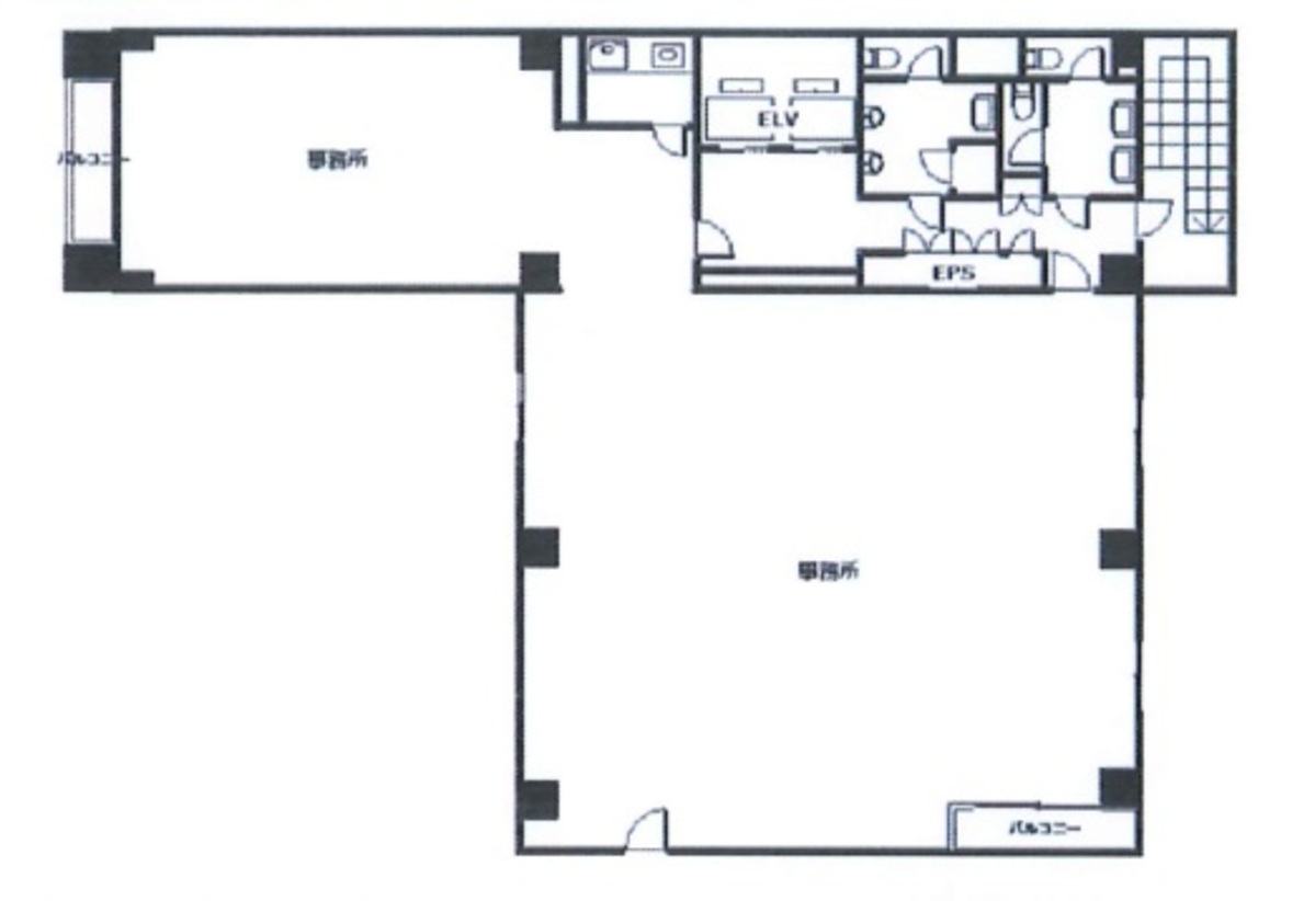
Jプロ東日本橋ビルは、1988年に新耐震基準で建築された物件で、地上9階建ての構造をしております。ビルのワンフロアは約65坪の広さがあり、L字型の間取りは、トイレや給湯スペースを含めた効率的なオフィスレイアウトを可能にします。また、エレベーターは2基設置されており、セキュリティ面では機械警備システムが導入されております。最寄りの東日本橋駅からは、徒歩で簡単にアクセスが可能であり、他にも馬喰町駅・浅草橋駅・浜町駅が徒歩圏内にあり、非常に便利な立地条件を備えています。 立地の良さ、設備の充実、耐震性能の高さなど、ビジネスを進める上で求められる条件を満たしています。企業の成長や拡大に伴うオフィス移転や新設をお考えの際には、これらのビルが提供する快適で機能的なオフィス環境が、貴社のビジネスの成功をさらに加速させることでしょう。
自分で探すより問い合わせる方が早いことがあります
WEB非公開物件があるから
オーナー様のご希望により「WEBでは非公開」にしている物件があります。 それらはWEBでいくら検索しても見つかりません。 先ずは条件などお知らせ頂けましたら非公開物件含め ピッタリのオフィスをご提案させて頂きます。 無理なお勧めはしておりませんので、お気軽にお問い合わせください。
対面でのご相談も受け付けております
ご来店も歓迎です
オフィス移転は社内・社外ともに非公開に行われることが殆どです。そのためアットオフィスでは、基本的に訪問によるコンサルティングを行っておりますが、ご来店の相談も歓迎です。お一人おひとりに親身にご対応させて頂きたい為、要予約とさせて頂いております。ご来店の際は先ずは下記よりご予約下さい。
募集終了のテナント区画
| 階数 | 坪数 | 賃料 + 共益費 | 敷金/礼金敷金 礼金 | 検討 |
|---|---|---|---|---|
| 2階 | 49.53坪 (163.75m²) | 募集終了 | - | - |
| 2階 | 24.02坪 (79.4m²) | 募集終了 | - | - |
| 2階 | 40.56坪 (134.08m²) | 募集終了 | - | - |
| 3階 | 66.46坪 (219.69m²) | 募集終了 | - | - |
| 4階 | 53.73坪 (177.61m²) | 募集終了 | - | - |
| 5階 | 62.24坪 (205.75m²) | 募集終了 | - | - |
| 5階 | 12.32坪 (40.74m²) | 募集終了 | - | - |
| 6階 | 53.73坪 (177.61m²) | 募集終了 | - | - |
| 7階 | 53.73坪 (177.61m²) | 募集終了 | - | - |
| 8階 | 62.24坪 (205.75m²) | 募集終了 | - | - |
| 9階 | 53.73坪 (177.61m²) | 募集終了 | - | - |
読込中...
近くのエリアで探してみる
人形町/馬喰町/浜町エリアでJプロ東日本橋ビルに似た条件の物件
読込中...
| 取扱様態 | 仲介 |
|---|---|
| 取扱会社 | 株式会社 アットオフィス |