内幸町企画ビル7階の賃貸情報
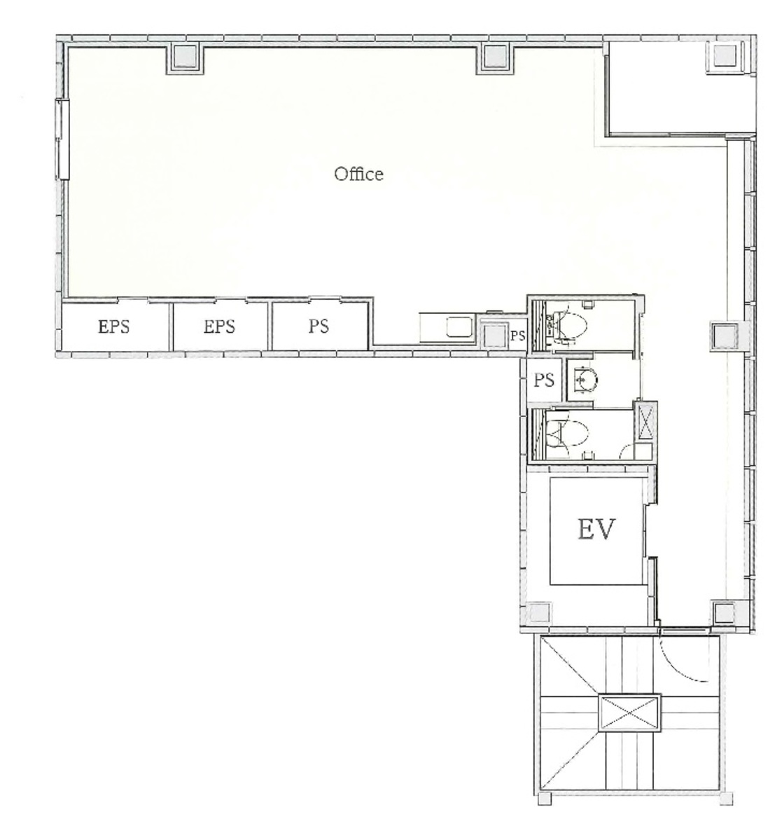
16.56 坪 (54.74m²)
364,320円 (坪:22,000 円)
※このサイトに記載がある賃貸条件は、敷金・保証金などの預かり金を除き、別途消費税がかかります。
内幸町企画ビルの建物概要
設備詳細
| 空調 | 個別空調 |
|---|---|
| トイレ | - |
| 床仕様 | - |
| エレベータ | 1 基 |
| 駐車場設備 | - |
| その他 | 機械警備 / 24時間利用可 / 新耐震基準 / クリニック |
内幸町企画ビル7階の賃貸オフィス・事務所に関するお問い合わせ
内幸町企画ビルについて
内幸町企画ビルは、2011年に竣工された港区西新橋に位置する賃貸オフィスビルです。この地域はビジネスの中心地として知られ、多数の企業が集まる活気あるエリアであります。内幸町企画ビルは、そのような環境の中でも際立つ存在感を放っています。特に、その美しいカーテンウォールの外観は、通りを行く人々の目を引くことでしょう。 ビルの立地は非常に便利であり、都営三田線「内幸町駅」から徒歩わずか1〜2分の距離にあります。また、JR山手線の「新橋駅」や東京メトロ銀座線「虎ノ門駅」も徒歩10分圏内と、複数の交通網へのアクセスが容易な点は、ビジネスにおいて大きな利点です。日比谷通り沿いに位置するため、ビル内からの眺望も良好で、オフィス内での作業環境は非常に快適です。 設備面では、内幸町企画ビルは24時間利用が可能で、セキュリティもしっかりしています。エレベーターは1基設置されており、貸室は長方形でレイアウトしやすいという特徴を持っています。このような設備は、テナントのニーズに応えるためのものであり、ビジネス運営の効率化に寄与するでしょう。 周辺環境もまた、このビルの魅力の一つです。カフェやコンビニ、飲食店などが近隣に豊富に存在し、ビジネスパーソンにとって日々の業務やランチタイムに便利です。また、銀行などの金融機関も充実しており、ビジネスの場としての利便性が高いことが伺えます。 港区西新橋エリアのオフィスビルの中でも、内幸町企画ビルはその立地、設備、周辺環境の全てにおいてバランスが取れていると言えます。これらの点を踏まえると、内幸町企画ビルは様々な業種の企業にとって、非常に魅力的なオフィススペースの選択肢となるでしょう。このエリアの相場観に照らし合わせても、内幸町企画ビルはビジネスの拠点として最適な条件を備えていることがわかります。ビジネス拡大や新規開設を考えている企業には、ぜひ一度、内幸町企画ビルをご検討いただきたいと思います。
自分で探すより問い合わせる方が早いことがあります
WEB非公開物件があるから
オーナー様のご希望により「WEBでは非公開」にしている物件があります。 それらはWEBでいくら検索しても見つかりません。 先ずは条件などお知らせ頂けましたら非公開物件含め ピッタリのオフィスをご提案させて頂きます。 無理なお勧めはしておりませんので、お気軽にお問い合わせください。
対面でのご相談も受け付けております
ご来店も歓迎です
オフィス移転は社内・社外ともに非公開に行われることが殆どです。そのためアットオフィスでは、基本的に訪問によるコンサルティングを行っておりますが、ご来店の相談も歓迎です。お一人おひとりに親身にご対応させて頂きたい為、要予約とさせて頂いております。ご来店の際は先ずは下記よりご予約下さい。
近くのエリアで探してみる
新橋/虎ノ門/神谷町エリアで内幸町企画ビルに似た条件の物件
読込中...
内幸町企画ビルと同じ最寄駅の物件
読込中...
| 取扱様態 | 仲介 |
|---|---|
| 取扱会社 | 株式会社 アットオフィス |