中秋ビル2階の賃貸情報
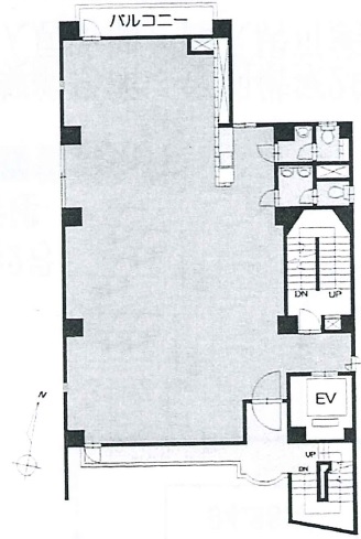
42.6 坪 (141.14m²)
※このサイトに記載がある賃貸条件は、敷金・保証金などの預かり金を除き、別途消費税がかかります。
設備詳細
| 空調 | 個別空調 |
|---|---|
| トイレ | 男女別トイレ室内 |
| 床仕様 | - |
| エレベータ | - |
| 駐車場設備 | - |
| その他 | 神奈川賃料が10000円以下 / 店舗可(飲食不可) |
中秋ビル2階の賃貸オフィス・事務所に関するお問い合わせ
中秋ビルについて
中秋は、紅谷町にあるオフィスビルです。平塚駅から徒歩1分の駅近物件です。1979年に竣工しました。鉄筋コンクリート造により耐震性に優れています。個別空調付きです。男女別トイレがあります。設備や家具の付いた居抜き物件です。店舗として利用できます。内装のないスケルトン物件です。周辺には飲食店やコンビニ、みずほ銀行があります。近隣には店舗ビルが立ち並んでいます。歩道の広い商店街に位置するため、利便性の良い場所です。専門店やバス停のある駅前付近に位置するため、買い物客や自転車が利用しやすいエリアです。
自分で探すより問い合わせる方が早いことがあります
WEB非公開物件があるから
オーナー様のご希望により「WEBでは非公開」にしている物件があります。 それらはWEBでいくら検索しても見つかりません。 先ずは条件などお知らせ頂けましたら非公開物件含め ピッタリのオフィスをご提案させて頂きます。 無理なお勧めはしておりませんので、お気軽にお問い合わせください。
対面でのご相談も受け付けております
ご来店も歓迎です
オフィス移転は社内・社外ともに非公開に行われることが殆どです。そのためアットオフィスでは、基本的に訪問によるコンサルティングを行っておりますが、ご来店の相談も歓迎です。お一人おひとりに親身にご対応させて頂きたい為、要予約とさせて頂いております。ご来店の際は先ずは下記よりご予約下さい。
平塚市エリアで中秋ビルに似た条件の物件
読込中...
中秋ビルと同じ最寄駅の物件
読込中...
| 取扱様態 | 仲介 |
|---|---|
| 取扱会社 | 株式会社 アットオフィス |