吉祥寺南口ビル3階の賃貸情報
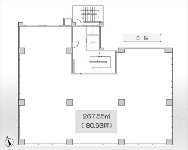
80.93 坪 (267.55m²)
※このサイトに記載がある賃貸条件は、敷金・保証金などの預かり金を除き、別途消費税がかかります。
吉祥寺南口ビルの建物概要
設備詳細
| 空調 | - |
|---|---|
| トイレ | - |
| 床仕様 | - |
| エレベータ | - |
| 駐車場設備 | - |
| その他 | SOHO/マンション / スケルトン / 店舗可(飲食可) |
吉祥寺南口ビル3階の賃貸オフィス・事務所に関するお問い合わせ
吉祥寺南口ビルについて
吉祥寺南口は、吉祥寺南町1丁目にあるマンションビルです。吉祥寺駅から徒歩1分の駅近物件です。1965年に竣工しました。鉄筋コンクリート造により耐震性に優れています。内装のないスケルトン物件です。設備や家具が付いた居抜き物件です。店舗や飲食店として利用できます。周辺には飲食店やショッピングモール、フィットネス施設があります。近隣にはオフィスビルや店舗ビルがあります。専門店やバス停のあるにぎやかな大通りに位置しています。駅前の商業地のため、歩行者も利用しやすいエリアです。
吉祥寺南口ビルのこだわり
自分で探すより問い合わせる方が早いことがあります
WEB非公開物件があるから
オーナー様のご希望により「WEBでは非公開」にしている物件があります。 それらはWEBでいくら検索しても見つかりません。 先ずは条件などお知らせ頂けましたら非公開物件含め ピッタリのオフィスをご提案させて頂きます。 無理なお勧めはしておりませんので、お気軽にお問い合わせください。
対面でのご相談も受け付けております
ご来店も歓迎です
オフィス移転は社内・社外ともに非公開に行われることが殆どです。そのためアットオフィスでは、基本的に訪問によるコンサルティングを行っておりますが、ご来店の相談も歓迎です。お一人おひとりに親身にご対応させて頂きたい為、要予約とさせて頂いております。ご来店の際は先ずは下記よりご予約下さい。
近くのエリアで探してみる
エリアで吉祥寺南口ビルに似た条件の物件
読込中...
吉祥寺南口ビルと同じ最寄駅の物件
読込中...
| 取扱様態 | 仲介 |
|---|---|
| 取扱会社 | 株式会社 アットオフィス |