シュロス北海ビル1階の賃貸情報
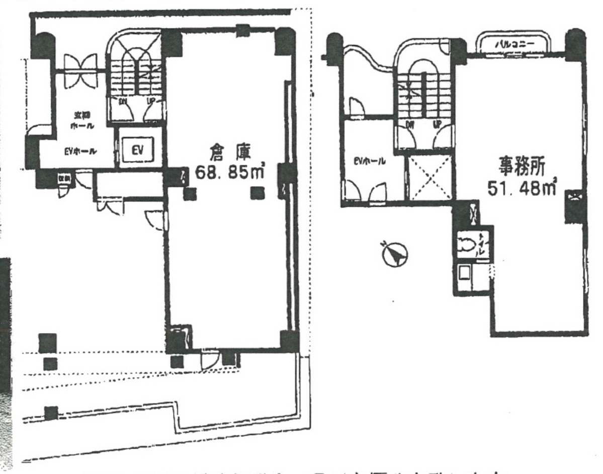
36.39 坪 (120.3m²)
※このサイトに記載がある賃貸条件は、敷金・保証金などの預かり金を除き、別途消費税がかかります。
シュロス北海ビルの建物概要
設備詳細
| 空調 | - |
|---|---|
| トイレ | - |
| 床仕様 | - |
| エレベータ | - |
| 駐車場設備 | 空有 |
| その他 | 新耐震基準 / 東京賃料が坪11000円以下 / 1階の物件 |
シュロス北海ビル1階の賃貸オフィス・事務所に関するお問い合わせ
シュロス北海ビルについて
シュロス北海ビルは、渋谷区西原1丁目に位置する、1988年に竣工された新耐震基準に準拠したオフィスビルです。渋谷という東京の中心地に近く、アクセスの良さと機能性を兼ね備えたこの物件は、ビジネスの拠点として理想的な環境を提供します。 このビルの最大の魅力の一つは、ビル内に設置されている駐車場です。渋谷区という利便性の高いエリアでは、車でのアクセスも重要なポイントとなります。ビル内駐車場があることで、来客の方や従業員がストレスなくオフィスにアクセスできます。空き状況についてはお問い合わせいただければ、最新の情報を提供いたします。 立地に関しては、渋谷区西原という位置は、渋谷の喧騒からは少し離れた落ち着いた環境ですが、渋谷駅や表参道駅へのアクセスも良好で、都心への移動が容易です。この地域は、新しいオフィスビルや商業施設が増加している一方で、住宅地としての静かな面も保持しており、ワークライフバランスを重視する企業にとって魅力的な立地条件を提供します。 設備面では、新耐震基準に準拠しているため、安全性に非常に優れています。また、ビルのメンテナンスもしっかりと行われており、快適なオフィス環境が保たれています。オフィス空間においては、柔軟なレイアウト変更が可能で、様々な業種の企業が自社のニーズに合わせたオフィス環境を作り出すことができます。 渋谷区のオフィス市場は、常に高い需要がありますが、シュロス北海ビルは、その中でも特に立地、設備、アクセスの良さを兼ね備えた物件として、ビジネスの成功に貢献する環境を提供します。あなたのビジネスの新たな拠点として、是非シュロス北海ビルをご検討ください。
自分で探すより問い合わせる方が早いことがあります
WEB非公開物件があるから
オーナー様のご希望により「WEBでは非公開」にしている物件があります。 それらはWEBでいくら検索しても見つかりません。 先ずは条件などお知らせ頂けましたら非公開物件含め ピッタリのオフィスをご提案させて頂きます。 無理なお勧めはしておりませんので、お気軽にお問い合わせください。
対面でのご相談も受け付けております
ご来店も歓迎です
オフィス移転は社内・社外ともに非公開に行われることが殆どです。そのためアットオフィスでは、基本的に訪問によるコンサルティングを行っておりますが、ご来店の相談も歓迎です。お一人おひとりに親身にご対応させて頂きたい為、要予約とさせて頂いております。ご来店の際は先ずは下記よりご予約下さい。
近くのエリアで探してみる
代々木/初台/幡ヶ谷エリアでシュロス北海ビルに似た条件の物件
読込中...
シュロス北海ビルと同じ最寄駅の物件
読込中...
| 取扱様態 | 仲介 |
|---|---|
| 取扱会社 | 株式会社 アットオフィス |