グランスイート虎ノ門ビル11階の賃貸情報
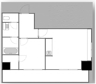
14.03 坪 (46.38m²)
※このサイトに記載がある賃貸条件は、敷金・保証金などの預かり金を除き、別途消費税がかかります。
グランスイート虎ノ門ビルの建物概要
設備詳細
| 空調 | 個別空調 |
|---|---|
| トイレ | - |
| 床仕様 | - |
| エレベータ | 1 基 |
| 駐車場設備 | 空有 |
| その他 | 大型ビル / 光ファイバー / 高層ビル / 新耐震基準 / SOHO/マンション / クリニック / SOHO可 |
部屋の雰囲気
グランスイート虎ノ門ビル11階の賃貸オフィス・事務所に関するお問い合わせ
グランスイート虎ノ門ビルについて
グランスイート虎ノ門ビルのご紹介をさせていただきます。このビルは、2007年に竣工された新耐震基準を満たす、21階建ての大型オフィスビルです。立地は、東京都港区虎ノ門1丁目に位置しており、最寄り駅である虎ノ門駅や虎ノ門ヒルズ駅からのアクセスが非常に便利です。この地域は、国内外の様々な企業が集まるビジネスの中心地であり、周辺には飲食店も多く、ビジネスパーソンにとって非常に魅力的な環境を提供しています。 グランスイート虎ノ門ビルは、SOHOや事務所利用が可能なマンションタイプのビルで、各区画ごとに広さや間取りが異なり、多様なビジネスニーズに対応できるフレキシブルな空間を提供しています。ビル内には駐車場も完備されており、車での通勤や来客にも便利です。さらに、エレベーターが1機設置されており、ビル内の移動もスムーズに行えます。 虎ノ門エリアは、東京の中心部に位置しており、ビジネスだけでなく文化や歴史も深く関わる地域です。周辺の相場観としては、新耐震基準に対応したビルが多く、安心して事業を行える環境が整っています。また、虎ノ門ヒルズなどの再開発プロジェクトにより、このエリアはさらなる発展を遂げています。このような背景から、グランスイート虎ノ門ビルは、将来性のある立地としても非常に注目されています。 グランスイート虎ノ門ビルの特徴は、新耐震基準に適合した安全性、便利な立地、そして多様なビジネスニーズに対応可能な柔軟な空間利用が可能である点です。これらの特徴は、ビジネスの拠点として利用するにあたり、大きな利点となります。また、ビル周辺の環境もビジネスチャンスを広げるための重要な要素です。 このグランスイート虎ノ門ビルは、ビジネスの拠点としてはもちろん、将来性を見据えた投資としても非常に魅力的です。この地域で事業を展開したい企業様、または新たなビジネスチャンスを求める皆様に、ぜひお勧めしたい物件です。ご興味のある方は、お気軽にお問い合わせください。
グランスイート虎ノ門ビルのこだわり
自分で探すより問い合わせる方が早いことがあります
WEB非公開物件があるから
オーナー様のご希望により「WEBでは非公開」にしている物件があります。 それらはWEBでいくら検索しても見つかりません。 先ずは条件などお知らせ頂けましたら非公開物件含め ピッタリのオフィスをご提案させて頂きます。 無理なお勧めはしておりませんので、お気軽にお問い合わせください。
対面でのご相談も受け付けております
ご来店も歓迎です
オフィス移転は社内・社外ともに非公開に行われることが殆どです。そのためアットオフィスでは、基本的に訪問によるコンサルティングを行っておりますが、ご来店の相談も歓迎です。お一人おひとりに親身にご対応させて頂きたい為、要予約とさせて頂いております。ご来店の際は先ずは下記よりご予約下さい。
近くのエリアで探してみる
新橋/虎ノ門/神谷町エリアでグランスイート虎ノ門ビルに似た条件の物件
読込中...
グランスイート虎ノ門ビルと同じ最寄駅の物件
読込中...
| 取扱様態 | 仲介 |
|---|---|
| 取扱会社 | 株式会社 アットオフィス |