虎ノ門ビル3階の賃貸情報
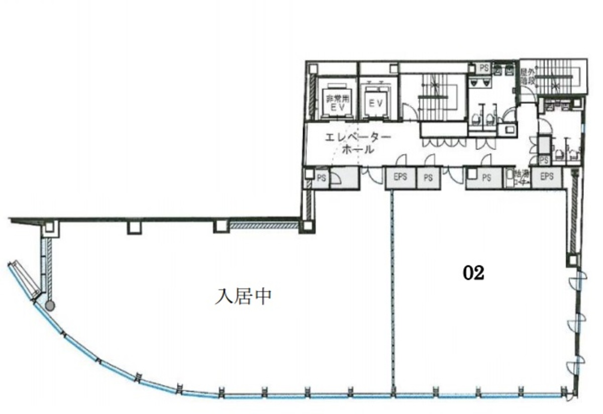
41.95 坪 (138.68m²)
※このサイトに記載がある賃貸条件は、敷金・保証金などの預かり金を除き、別途消費税がかかります。
虎ノ門ビルの建物概要
設備詳細
| 空調 | 個別空調 |
|---|---|
| トイレ | - |
| 床仕様 | OA対応床(フリーアクセス) |
| エレベータ | 2 基 |
| 駐車場設備 | 空有 / 機械式駐車場 |
| その他 | 機械警備 / 光ファイバー / 新耐震基準 / クリニック |
虎ノ門ビルについて
虎ノ門ビルは、2013年に竣工された港区虎ノ門に位置するハイグレードな賃貸事務所ビルです。この物件は、東京メトロ銀座線の虎ノ門駅から徒歩1分、東京メトロ丸ノ内線・日比谷線・千代田線の霞ヶ関駅から徒歩3分、都営三田線の内幸町駅から徒歩4分という、複数の駅が利用可能な優れたアクセスを誇ります。地上10階(地下1階)建てのこのビルは、新耐震基準を満たし、制震構造によって安全性が高められています。 外観はガラス張りで、視認性が高く、モダンな印象を与えます。基準階面積は約108.32坪で、柱のない設計によりレイアウトの自由度が高く、効率的なオフィス環境を実現しています。天井高は2,800mmと広々としており、大きな窓からは自然光がたっぷりと入るため、開放的で快適な職場を提供します。 設備面では、機械警備や個別空調、OAフロアなどの最新設備を完備。男女別のトイレや給湯室は室外に配置されており、動線の分離も工夫されています。さらに、機械式の駐車場も14台分完備されており、来客時の便利さも考慮されています。 立地についても、外堀通りと愛宕下通りに面しているため、ビジネスの拠点として非常に魅力的です。周辺には飲食店や金融機関、郵便局などがあり、ビジネスに必要な環境が整っています。また、新橋駅方面へのアクセスも良好で、ショッピングモールや美術館、浜離宮恩賜庭園などのレジャー施設も充実しているため、仕事だけでなくプライベートの充実にも寄与します。 このように、虎ノ門ビルは最新の設備と優れた立地を兼ね備え、企業にとって理想的なオフィス環境を提供します。新耐震基準に準拠した安全な構造、効率的なレイアウト、そして都心のビジネスエリアにおける利便性の高さが、このビルの大きな魅力です。企業が成長し続けるための最適な場所をお探しの方に、虎ノ門ビルを自信を持ってお勧めいたします。
自分で探すより問い合わせる方が早いことがあります
WEB非公開物件があるから
オーナー様のご希望により「WEBでは非公開」にしている物件があります。 それらはWEBでいくら検索しても見つかりません。 先ずは条件などお知らせ頂けましたら非公開物件含め ピッタリのオフィスをご提案させて頂きます。 無理なお勧めはしておりませんので、お気軽にお問い合わせください。
対面でのご相談も受け付けております
ご来店も歓迎です
オフィス移転は社内・社外ともに非公開に行われることが殆どです。そのためアットオフィスでは、基本的に訪問によるコンサルティングを行っておりますが、ご来店の相談も歓迎です。お一人おひとりに親身にご対応させて頂きたい為、要予約とさせて頂いております。ご来店の際は先ずは下記よりご予約下さい。
近くのエリアで探してみる
新橋/虎ノ門/神谷町エリアで虎ノ門ビルに似た条件の物件
読込中...
虎ノ門ビルと同じ最寄駅の物件
読込中...
| 取扱様態 | 仲介 |
|---|---|
| 取扱会社 | 株式会社 アットオフィス |