ヴェクサ表参道ビルB1階の賃貸情報
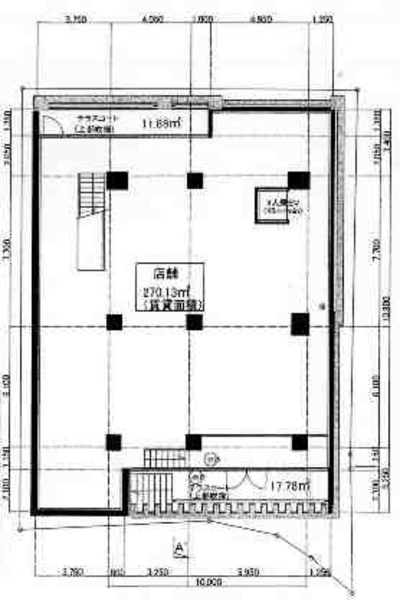
81.71 坪 (270.12m²)
※このサイトに記載がある賃貸条件は、敷金・保証金などの預かり金を除き、別途消費税がかかります。
ヴェクサ表参道ビルの建物概要
設備詳細
| 空調 | - |
|---|---|
| トイレ | - |
| 床仕様 | - |
| エレベータ | - |
| 駐車場設備 | - |
| その他 | 新耐震基準 |
ヴェクサ表参道ビルB1階の賃貸オフィス・事務所に関するお問い合わせ
ヴェクサ表参道ビルについて
ヴェクサ表参道ビルの魅了を紹介させていただきます。このビルは東京都渋谷区神宮前5丁目、表参道の洗練されたエリアに位置しています。表参道は、その高いブランド力と文化的背景から、多くの企業やクリエイティブ産業にとって非常に魅力的な地域とされています。ヴェクサ表参道ビルは、この地域の特性を活かし、デザインと機能性を兼ね備えたオフィススペースを提供しています。 まず、立地についてですが、ビルは表参道駅から徒歩数分の場所に位置し、アクセスの良さはビジネスにとって大きなメリットとなります。表参道駅は複数の路線が乗り入れており、都内各地への移動が容易です。また、表参道エリアはファッション、アート、グルメなど、さまざまな文化が融合する地域であり、ビジネスのほか、クライアントとのミーティングや社員の福利厚生面でも大きな利点をもたらします。 次に、ビルの設備についてですが、ヴェクサ表参道ビルは最新の設備を取り揃え、入居企業のニーズに応える柔軟性と快適性を提供します。高速インターネット接続、セキュリティシステム、快適な空調システムなど、企業運営に必要な設備が整っており、スムーズなビジネス運営をサポートします。また、ビルのデザインは、モダンでスタイリッシュな外観となっており、企業イメージの向上にも寄与します。 さらに、ヴェクサ表参道ビルは、周辺環境も魅力の一つです。表参道エリアは、高級ブランドショップ、アートギャラリー、おしゃれなカフェやレストランが立ち並ぶことで知られており、ビジネスのみならず、生活の質を高める環境が整っています。このような環境は、社員のモチベーション向上やクリエイティブなアイデアを生み出すのに最適な場所と言えるでしょう。 ヴェクサ表参道ビルは、優れた立地、最先端の設備、そして豊かな周辺環境を兼ね備え、ビジネスの成功をサポートする最適なオフィススペースを提供しています。このビルが、皆さまの企業活動をさらに発展させるキーとなることを確信しています。
ヴェクサ表参道ビルのこだわり
自分で探すより問い合わせる方が早いことがあります
WEB非公開物件があるから
オーナー様のご希望により「WEBでは非公開」にしている物件があります。 それらはWEBでいくら検索しても見つかりません。 先ずは条件などお知らせ頂けましたら非公開物件含め ピッタリのオフィスをご提案させて頂きます。 無理なお勧めはしておりませんので、お気軽にお問い合わせください。
対面でのご相談も受け付けております
ご来店も歓迎です
オフィス移転は社内・社外ともに非公開に行われることが殆どです。そのためアットオフィスでは、基本的に訪問によるコンサルティングを行っておりますが、ご来店の相談も歓迎です。お一人おひとりに親身にご対応させて頂きたい為、要予約とさせて頂いております。ご来店の際は先ずは下記よりご予約下さい。
表参道/外苑前エリアでヴェクサ表参道ビルに似た条件の物件
読込中...
ヴェクサ表参道ビルと同じ最寄駅の物件
読込中...
| 取扱様態 | 仲介 |
|---|---|
| 取扱会社 | 株式会社 アットオフィス |