デュープレックス銀座タワー5/1313階の賃貸情報
62.56 坪 (206.81m²)
※このサイトに記載がある賃貸条件は、敷金・保証金などの預かり金を除き、別途消費税がかかります。
デュープレックス銀座タワー5/13の建物概要
設備詳細
| 空調 | - |
|---|---|
| トイレ | - |
| 床仕様 | - |
| エレベータ | 2 基 |
| 駐車場設備 | 近隣有 |
| その他 | SOHO/マンション / 新耐震基準 / スケルトン / 保証金・敷金+礼金が3か月以下 |
デュープレックス銀座タワー5/1313階の賃貸オフィス・事務所に関するお問い合わせ
デュープレックス銀座タワー5/13について
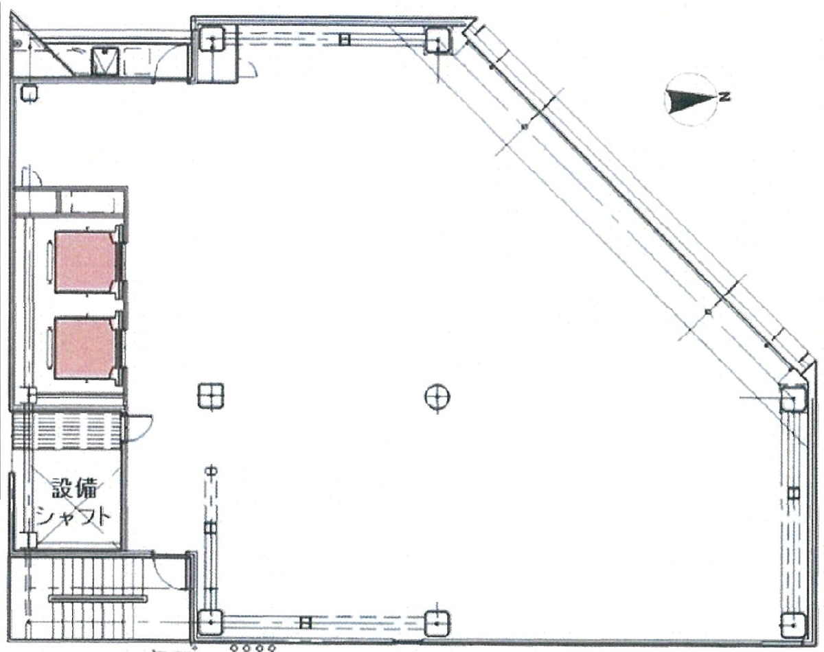
デュープレックス銀座タワー5/13は、ビジネスの中心地である銀座5丁目に位置する、最先端の設備とデザイン性を兼ね備えた貸事務所ビルです。このビルは2007年に新耐震基準に基づいて建設され、安全性にも非常に優れています。立地、設備、デザインの三拍子が揃ったこの物件は、ビジネスの成功に必要不可欠な要素を全て提供しています。 まず、立地に関してですが、デュープレックス銀座タワー5/13は東銀座駅から徒歩1分という驚異的なアクセスの良さを誇ります。さらに、3駅以上の利用が可能であり、ビジネスの拠点として多方面へのアクセスが求められる方々にとって最適な環境を提供しています。銀座という立地は、国内外からの観光客も多く、ビジネスの機会を広げるのに絶好の場所です。 ビルの設備に関しても特筆すべき点が数多くあります。ビル内に設置された2機のエレベーターは、スムーズな移動を保証し、ビジネスの効率性を高めます。また、ビル内に月極駐車場を完備しており、車を利用されるテナントにとって大きなメリットとなります。男女別のトイレ設備は、快適なオフィス環境を提供し、働く皆様の日々のストレスを軽減します。 ビルのデザインにおいても、ガラス張りの正面と黒い外壁が特徴的で、モダンでスタイリッシュな印象を与えます。基準階は約60坪のほぼ台形の間取りで、大きな窓からの採光は作業空間を明るく快適に保ちます。1~2階の一括貸しスペースは約85坪と広く、大規模なオフィスやショールームとしての利用にも最適です。 デュープレックス銀座タワー5/13は、その立地、設備、デザインの全てにおいてビジネスの成功をサポートする理想的な環境を提供しています。このビルでの事業展開は、あなたのビジネスを次のレベルへと引き上げるきっかけとなるでしょう。
デュープレックス銀座タワー5/13のこだわり
自分で探すより問い合わせる方が早いことがあります
WEB非公開物件があるから
オーナー様のご希望により「WEBでは非公開」にしている物件があります。 それらはWEBでいくら検索しても見つかりません。 先ずは条件などお知らせ頂けましたら非公開物件含め ピッタリのオフィスをご提案させて頂きます。 無理なお勧めはしておりませんので、お気軽にお問い合わせください。
対面でのご相談も受け付けております
ご来店も歓迎です
オフィス移転は社内・社外ともに非公開に行われることが殆どです。そのためアットオフィスでは、基本的に訪問によるコンサルティングを行っておりますが、ご来店の相談も歓迎です。お一人おひとりに親身にご対応させて頂きたい為、要予約とさせて頂いております。ご来店の際は先ずは下記よりご予約下さい。
銀座エリアでデュープレックス銀座タワー5/13に似た条件の物件
読込中...
デュープレックス銀座タワー5/13と同じ最寄駅の物件
読込中...
| 取扱様態 | 仲介 |
|---|---|
| 取扱会社 | 株式会社 アットオフィス |