スリーセブン第2ビル5階の賃貸情報
75 坪 (247.3m²)
※このサイトに記載がある賃貸条件は、敷金・保証金などの預かり金を除き、別途消費税がかかります。
スリーセブン第2ビルの建物概要
設備詳細
| 空調 | - |
|---|---|
| トイレ | - |
| 床仕様 | - |
| エレベータ | 2 基 |
| 駐車場設備 | - |
| その他 | 東京賃料が坪11000円以下 |
スリーセブン第2ビル5階の賃貸オフィス・事務所に関するお問い合わせ
スリーセブン第2ビルについて
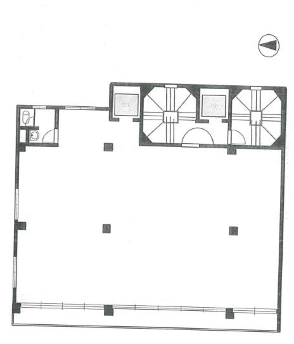
スリーセブン第2ビルは、ビジネスの中心地、千代田区岩本町に位置する、利便性と快適性を兼ね備えたオフィスビルです。このビルは、岩本町駅と秋葉原駅という二つの主要駅から徒歩5分という優れたアクセスを誇ります。ビジネスの中心地にして、靖国通りから一本入った静かな場所に位置するため、働くための最適な環境を提供しています。 ビルの設備には特に注目すべき点が多数あります。最新の空調システムが導入されており、一年中快適なオフィス環境を保つことができます。また、照明はLEDに変更されており、エネルギー効率の良さと明るく働きやすい職場環境を提供します。このビルは、エレベーターが2機設置されており、ビルの利用者の移動の利便性を高めています。 スリーセブン第2ビルの貸室は、白を基調とした清潔感のある造りで、中心に柱が1本あることで、オフィススペースを効率的にレイアウトすることが可能です。採光も十分に考慮されており、西側を向いた窓からは自然光がたっぷりと入ります。これは、働く人々の生産性と気分の向上に貢献する重要な要素です。 さらに、前面に駐車場があり、搬入の多い企業にとっても非常に便利です。また、ビルの近隣には、様々な飲食店や便利な施設があり、ビルの利用者は仕事の合間にリフレッシュすることができます。周辺には喫茶店や神田川沿いの柳橋通りのような情緒あふれる場所もあり、ビジネス以外の時間も楽しむことができます。 スリーセブン第2ビルは、その立地、設備、そして周辺環境において、ビジネスに最適な環境を提供するオフィスビルです。快適なオフィス環境を求める企業様には、ぜひおすすめの物件です。
スリーセブン第2ビルのこだわり
自分で探すより問い合わせる方が早いことがあります
WEB非公開物件があるから
オーナー様のご希望により「WEBでは非公開」にしている物件があります。 それらはWEBでいくら検索しても見つかりません。 先ずは条件などお知らせ頂けましたら非公開物件含め ピッタリのオフィスをご提案させて頂きます。 無理なお勧めはしておりませんので、お気軽にお問い合わせください。
対面でのご相談も受け付けております
ご来店も歓迎です
オフィス移転は社内・社外ともに非公開に行われることが殆どです。そのためアットオフィスでは、基本的に訪問によるコンサルティングを行っておりますが、ご来店の相談も歓迎です。お一人おひとりに親身にご対応させて頂きたい為、要予約とさせて頂いております。ご来店の際は先ずは下記よりご予約下さい。
神田/秋葉原エリアでスリーセブン第2ビルに似た条件の物件
読込中...
スリーセブン第2ビルと同じ最寄駅の物件
読込中...
| 取扱様態 | 仲介 |
|---|---|
| 取扱会社 | 株式会社 アットオフィス |