桜台ツーウッズビル2階の賃貸情報
44.28 坪 (146.38m²)
※このサイトに記載がある賃貸条件は、敷金・保証金などの預かり金を除き、別途消費税がかかります。
桜台ツーウッズビルの建物概要
設備詳細
| 空調 | - |
|---|---|
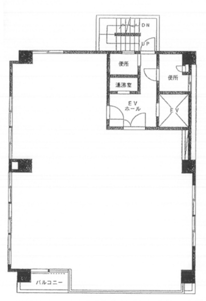
| トイレ | 男女別トイレ室外 |
| 床仕様 | - |
| エレベータ | - |
| 駐車場設備 | 空有 |
| その他 | 新耐震基準 |
桜台ツーウッズビルについて
桜台ツーウッズビルは、練馬区豊玉上2丁目に位置する地上6階建ての建物です。最寄り駅として、西武池袋線「桜台駅」から徒歩4分、西武有楽町線「新桜台駅」から徒歩7分、大江戸線「新江古田駅」から徒歩8分と、複数路線の駅が周辺にあります。この立地により、さまざまな方面からのアクセスが可能です。 建物は、事業用の用途に適した構造となっており、フロアの利用方法についても多様な検討が行えます。6階建てのため、事務所や拠点としての利用を想定した際にも、フロアごとの区分けや動線計画など、利用者の用途に応じた空間設計が可能です。また、周辺は住宅や商業施設も点在しており、周囲の環境と調和した落ち着いた雰囲気を感じられるエリアです。 具体的な施設の仕様や詳細なレイアウトなどについては、現地のご案内や資料提供も可能です。ご検討の際は、詳細はお問い合わせください。
自分で探すより問い合わせる方が早いことがあります
WEB非公開物件があるから
オーナー様のご希望により「WEBでは非公開」にしている物件があります。 それらはWEBでいくら検索しても見つかりません。 先ずは条件などお知らせ頂けましたら非公開物件含め ピッタリのオフィスをご提案させて頂きます。 無理なお勧めはしておりませんので、お気軽にお問い合わせください。
対面でのご相談も受け付けております
ご来店も歓迎です
オフィス移転は社内・社外ともに非公開に行われることが殆どです。そのためアットオフィスでは、基本的に訪問によるコンサルティングを行っておりますが、ご来店の相談も歓迎です。お一人おひとりに親身にご対応させて頂きたい為、要予約とさせて頂いております。ご来店の際は先ずは下記よりご予約下さい。
練馬区エリアで桜台ツーウッズビルに似た条件の物件
読込中...
桜台ツーウッズビルと同じ最寄駅の物件
読込中...
| 取扱様態 | 仲介 |
|---|---|
| 取扱会社 | 株式会社 アットオフィス |