高井ビル3階の賃貸情報
23.25 坪 (76.87m²)
230,000円 (坪:9,892 円)
※このサイトに記載がある賃貸条件は、敷金・保証金などの預かり金を除き、別途消費税がかかります。
高井ビルの建物概要
設備詳細
| 空調 | - |
|---|---|
| トイレ | - |
| 床仕様 | - |
| エレベータ | 1 基 |
| 駐車場設備 | 近隣有 |
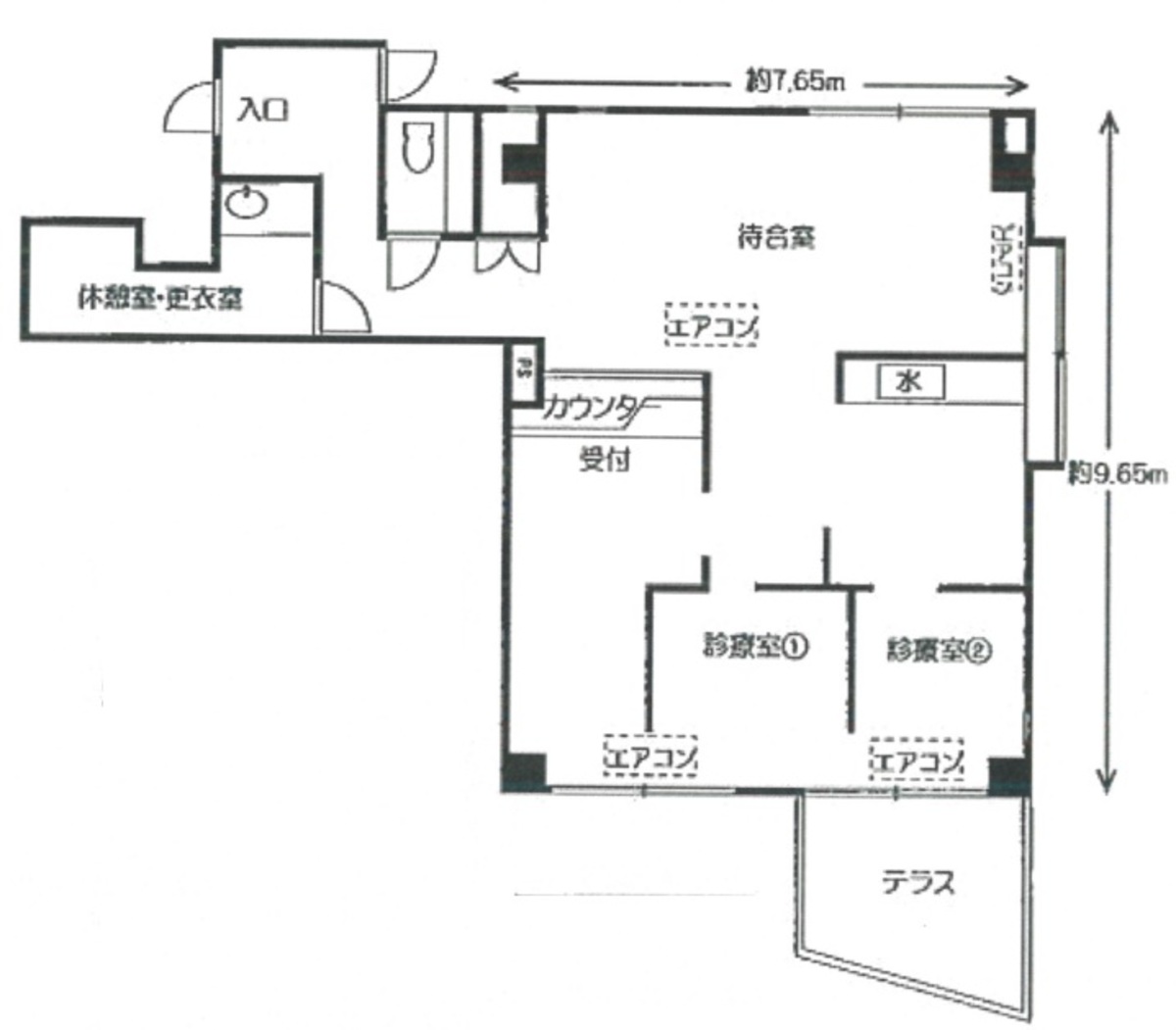
| その他 | クリニックモール / 新耐震基準 / クリニック / 店舗可(飲食不可) / スケルトン / 神奈川賃料が10000円以下 |
高井ビル3階の賃貸オフィス・事務所に関するお問い合わせ
高井ビルについて
高井ビルは、鎌倉市小袋谷1丁目に位置し、複数の鉄道路線へのアクセスが可能な建物です。江の島線「富士見町駅」から徒歩5分、また根岸線および横須賀線「大船駅」からもそれぞれ徒歩9分、10分の距離にあり、公共交通機関の利用を想定した事業活動に適した立地条件となっています。 地上3階建ての本ビルは、クリニックモールとしての施設も備えており、医療関連事業をはじめとした多様な法人用途での利用が想定されます。周辺は住宅や商業施設が点在するエリアで、地域住民の日常動線上に建物が配置されていることから、集客の面でも一定の認知が期待されます。 新耐震基準に適合しているため、建物利用にあたり基準を満たした構造であることが確認されています。複数の鉄道路線を利用できる環境や、クリニックモールとしての特性を踏まえ、様々な事業プランに対応可能なスペックを有しています。詳細はお問い合わせください。
自分で探すより問い合わせる方が早いことがあります
WEB非公開物件があるから
オーナー様のご希望により「WEBでは非公開」にしている物件があります。 それらはWEBでいくら検索しても見つかりません。 先ずは条件などお知らせ頂けましたら非公開物件含め ピッタリのオフィスをご提案させて頂きます。 無理なお勧めはしておりませんので、お気軽にお問い合わせください。
対面でのご相談も受け付けております
ご来店も歓迎です
オフィス移転は社内・社外ともに非公開に行われることが殆どです。そのためアットオフィスでは、基本的に訪問によるコンサルティングを行っておりますが、ご来店の相談も歓迎です。お一人おひとりに親身にご対応させて頂きたい為、要予約とさせて頂いております。ご来店の際は先ずは下記よりご予約下さい。
鎌倉市エリアで高井ビルに似た条件の物件
読込中...
高井ビルと同じ最寄駅の物件
読込中...
| 取扱様態 | 仲介 |
|---|---|
| 取扱会社 | 株式会社 アットオフィス |