フジテラス大森4階の賃貸情報
29.78 坪 (98.45m²)
※このサイトに記載がある賃貸条件は、敷金・保証金などの預かり金を除き、別途消費税がかかります。
フジテラス大森の建物概要
設備詳細
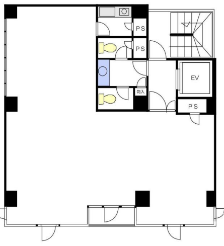
| 空調 | 個別空調 |
|---|---|
| トイレ | 男女別トイレ / 男女共用トイレ・室内 |
| 床仕様 | - |
| エレベータ | 1 基 / エレベーター有 |
| 駐車場設備 | - |
| その他 | 24時間利用可 / オートロック / 機械警備 / 新耐震基準 / 東京賃料が坪11000円以下 |
フジテラス大森4階の賃貸オフィス・事務所に関するお問い合わせ
フジテラス大森について
フジテラス大森は、東京都品川区南大井に位置する、1989年に竣工された賃貸オフィスビルであります。本ビルは、6階建てで、基準階の面積は約31坪となっており、小規模から中規模の企業に適したオフィススペースを提供しています。外観はブルーのタイル張りで、清潔感とプロフェッショナルな雰囲気を醸し出しており、24時間利用可能なオートロックシステムにより、安心して業務を遂行することができます。 立地においては、JR大森駅および京急線大森海岸駅から徒歩圏内に位置し、複数の駅からのアクセスの良さは、従業員や来客の利便性を高めます。特に、大森駅からは徒歩7分、大森海岸駅からは徒歩8分の距離にあり、東京都心へのアクセスも容易であるため、ビジネスの拠点として理想的な環境を提供します。 周辺環境も魅力の一つであり、大森を代表する大型オフィスビル「大森ベルポート」が近くに位置しております。これにより、オフィス街としての賑わいと共に、郵便局やコンビニエンスストアなどの生活利便施設も充実しており、日々の業務に必要なあらゆるサービスを身近に利用できる点は、働く人々にとって大きなメリットとなります。 ビル内の設備についても、室内はL字型のレイアウトで余計な柱がなく、効率的なオフィス環境を実現しております。個別空調システムにより、快適な室内環境を維持でき、男女別のトイレ設備も室外に設置されております。これらの設備は、従業員の働きやすさを追求し、企業の生産性向上に貢献します。 フジテラス大森は、その立地、設備、周辺環境のすべてが、ビジネスの成功をサポートする要素を備えています。小規模から中規模の企業にとって、このビルは、高い機能性と快適な働く環境を提供する、理想的なオフィススペースと言えるでしょう。
自分で探すより問い合わせる方が早いことがあります
WEB非公開物件があるから
オーナー様のご希望により「WEBでは非公開」にしている物件があります。 それらはWEBでいくら検索しても見つかりません。 先ずは条件などお知らせ頂けましたら非公開物件含め ピッタリのオフィスをご提案させて頂きます。 無理なお勧めはしておりませんので、お気軽にお問い合わせください。
対面でのご相談も受け付けております
ご来店も歓迎です
オフィス移転は社内・社外ともに非公開に行われることが殆どです。そのためアットオフィスでは、基本的に訪問によるコンサルティングを行っておりますが、ご来店の相談も歓迎です。お一人おひとりに親身にご対応させて頂きたい為、要予約とさせて頂いております。ご来店の際は先ずは下記よりご予約下さい。
品川/大崎/大井エリアでフジテラス大森に似た条件の物件
読込中...
フジテラス大森と同じ最寄駅の物件
読込中...
| 取扱様態 | 仲介 |
|---|---|
| 取扱会社 | 株式会社 アットオフィス |