※このサイトに記載がある賃貸条件は、敷金・保証金などの預かり金を除き、別途消費税がかかります。
お電話でもお気軽にお問い合わせください
物件情報
設備詳細
| 空調 | - |
|---|---|
| トイレ | - |
| 床仕様 | - |
| エレベータ | - |
| 駐車場設備 | - |
| その他 | 新耐震基準 |
クレッセントビルは、武蔵野市吉祥寺本町1丁目に位置する地上5階・地下1階建ての建物です。吉祥寺駅から徒歩2分から5分の範囲にあり、複数路線の利用が可能です。通勤や訪問の際に駅を利用する法人にとって、道順が分かりやすく、駅からの距離が一定であることが特徴です。建物のフロア構成として、地上階と地下階を合わせた計6層にわたり、フロアを分けて使用する必要がある場合にも対応しやすい造りとなっています。周辺は商業施設やオフィスが集積しており、ビジネスの拠点としての活用が想定されます。住所表記も吉祥寺本町となるため、対外的な案内や郵便物の受取先としても分かりやすい立地です。利用イメージとしては、事務所やサービス拠点としての使用が想定される他、フロアごとに用途を分けることもできます。詳細はお問い合わせください。
募集終了のテナント区画
| 階数 | 坪数 | 賃料 + 共益費 | 敷金/礼金敷金 礼金 | 検討 |
|---|---|---|---|---|
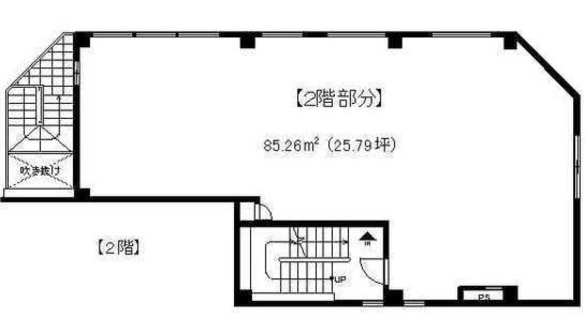
| 2階 | 25.79坪 (85.26m²) | 募集終了 | - | - |
| 3階 | 12.11坪 (40.05m²) | 募集終了 | - | - |
| 4階 | 16.79坪 (55.49m²) | 募集終了 | - | - |
WEB非公開物件がございます
オーナー様ご希望によるWEB非公開の物件もございます。先ずは条件などお知らせ頂けましたら、非公開物件含めピッタリのオフィスをご提案させて頂きます。具体的な物件がお決まりでない場合でも問題ございません。無理なお勧めはしておりませんので、お気軽にお問い合わせください。
ご来店も歓迎です
オフィス移転は社内・社外ともに非公開に行われることが殆どです。そのためアットオフィスでは、基本的に訪問によるコンサルティングを行っておりますが、ご来店の相談も歓迎です。
※お一人おひとりに親身にご対応させて頂きたい為、要予約とさせて頂いております。ご来店の際は先ずは上記よりご予約下さい。
近くのエリアで探してみる
エリア
最寄り駅
エリアでクレッセントビルに似た条件の物件
読込中...