ABC-MART公園通りビル5階の賃貸情報
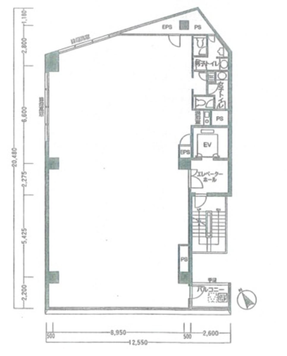
61.16 坪 (202.19m²)
※このサイトに記載がある賃貸条件は、敷金・保証金などの預かり金を除き、別途消費税がかかります。
ABC-MART公園通りビルの建物概要
設備詳細
| 空調 | 個別空調 |
|---|---|
| トイレ | - |
| 床仕様 | OA対応床(フリーアクセス) |
| エレベータ | 1 基 |
| 駐車場設備 | - |
| その他 | 新耐震基準 / 機械警備 / 光ファイバー / クリニック |
ABC-MART公園通りビル5階の賃貸オフィス・事務所に関するお問い合わせ
ABC-MART公園通りビルについて
ABCマート公園通りビルは、まさに現代ビジネスの核心地、渋谷区神南1丁目に位置する、ストラテジックな立地に恵まれたオフィス賃貸ビルです。2002年に竣工したこのビルは、耐震性能に優れ、安全性と快適性を兼ね備えた8階建ての優美な建築物です。その白を基調とした清潔感溢れる外観は、通りを歩く人々の目を引き、ビルの品格を高めています。 本ビルは、渋谷駅から徒歩5分というアクセスの利便性を誇ります。ビジネスの中心地である渋谷において、このように駅近であることは、従業員や訪問客にとって大きな魅力となります。また、公園通りを面する立地は、渋谷という活気ある街のダイナミズムを身近に感じながらも、働く空間としての静かな集中環境を提供します。 ビル内の設備は、最新のビジネスニーズに対応するため細部にわたって配慮されています。1機のエレベーターはスムーズな移動を保証し、24時間利用可能な環境は、多様なワークスタイルにフレキシブルに対応します。さらに、機械警備システムの完備は、テナント企業にとっての安心感を一層深めるものです。 このビルは、シューズショップのABC-MARTが所有することからもわかるように、アパレル系テナントをはじめとしたクリエイティブな業種の企業に最適な環境を提供します。アップルストアが入居するなど、名高いブランドが集まるエリアであることも、ビルのブランド価値を高める要素の一つです。 ABCマート公園通りビルは、耐震性、アクセスの良さ、高度なセキュリティ、そして渋谷という最高のロケーションを兼ね備えることで、テナント企業のビジネスをサポートする最適なオフィス空間を提供します。ビジネスの成功と成長を追求する企業にとって、まさに理想的な選択と言えるでしょう。この魅力的なビルで、新たなビジネスのステージを始めませんか?
自分で探すより問い合わせる方が早いことがあります
WEB非公開物件があるから
オーナー様のご希望により「WEBでは非公開」にしている物件があります。 それらはWEBでいくら検索しても見つかりません。 先ずは条件などお知らせ頂けましたら非公開物件含め ピッタリのオフィスをご提案させて頂きます。 無理なお勧めはしておりませんので、お気軽にお問い合わせください。
対面でのご相談も受け付けております
ご来店も歓迎です
オフィス移転は社内・社外ともに非公開に行われることが殆どです。そのためアットオフィスでは、基本的に訪問によるコンサルティングを行っておりますが、ご来店の相談も歓迎です。お一人おひとりに親身にご対応させて頂きたい為、要予約とさせて頂いております。ご来店の際は先ずは下記よりご予約下さい。
渋谷エリアでABC-MART公園通りビルに似た条件の物件
読込中...
ABC-MART公園通りビルと同じ最寄駅の物件
読込中...
| 取扱様態 | 仲介 |
|---|---|
| 取扱会社 | 株式会社 アットオフィス |