※このサイトに記載がある賃貸条件は、敷金・保証金などの預かり金を除き、別途消費税がかかります。
お電話でもお気軽にお問い合わせください
物件情報
設備詳細
| 空調 | - |
|---|---|
| トイレ | 男女別トイレ室外 |
| 床仕様 | OA対応床(フリーアクセス) |
| エレベータ | 2 基 |
| 駐車場設備 | - |
| その他 | 機械警備 / 大型ビル / 光ファイバー / 新耐震基準 / フリーレント |
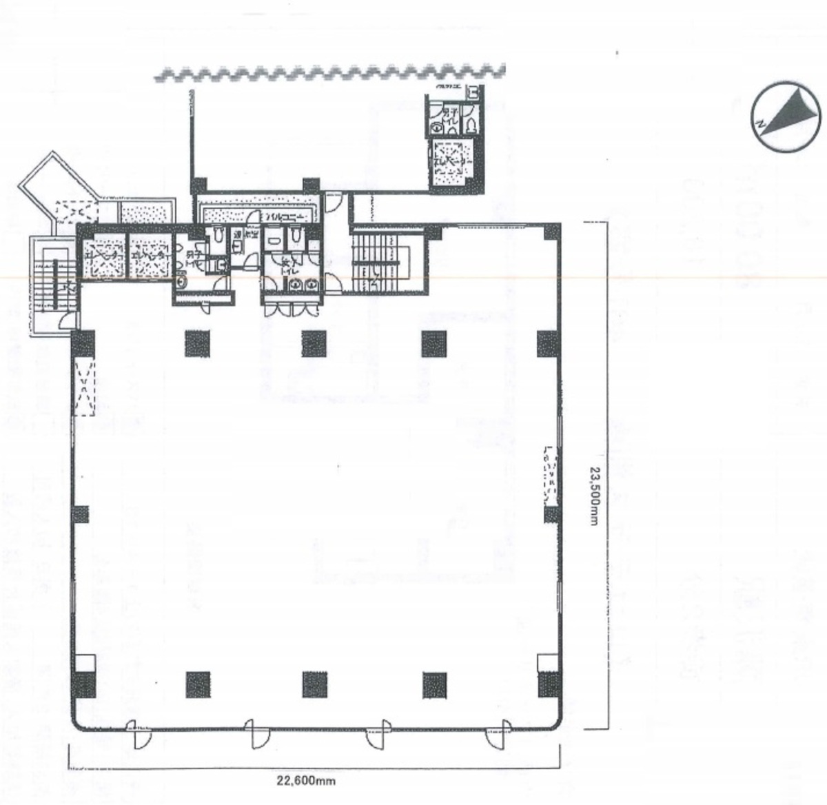
鈴中大森ビルは、東京都品川区南大井6-16-16に位置し、1987年4月に竣工したオフィスビルです。この物件は、JR京浜東北線大森駅から徒歩3分という、非常に利便性の高い立地にあります。また、京急本線大森海岸駅も徒歩圏内にあるため、複数の交通手段を利用することが可能です。これにより、都心部だけでなく横浜方面や羽田空港へのアクセスも容易になります。 鈴中大森ビルは、鉄骨鉄筋コンクリート造りの地上6階建て(地下1階含む)、基準階面積約152坪のオフィスビルです。設計時から耐震性に配慮されており、2006年10月には貸室内部のリニューアル工事が行われました。これにより、内装や設備が最新のものに更新され、快適なオフィス環境が確保されています。 エントランスは平日及び土曜日の8:00~20:00に開放され、ビル内には2基のエレベーターが設置されています。セキュリティ面では、機械警備を導入しているため、安心して業務に専念することができます。また、月極駐車場がビル内にあり、利便性が高く、ビジネス用途に最適です。 オフィス内部は、無柱空間であるため、レイアウトの自由度が高く、効率的なオフィス環境を実現します。個別空調システムやOAフロアが完備しており、一年中快適な室温を保つことができる点も魅力の一つです。また、水回りには男女別トイレを完備し、リニューアルを行っており、清潔感があります。 立地に関しては、大森駅の北口からのアクセスが便利であり、周辺には飲食店や商業施設が充実しています。ランチタイムや仕事終わりの買い物にも困ることがありません。また、近隣に公園があるため、オフィスでの疲れを癒やす場所としても最適です。 総じて、鈴中大森ビルは、アクセスの良さ、快適なオフィス環境、充実した設備、そして周辺環境の利便性を兼ね備えた、企業の新たな拠点として非常に魅力的な物件です。事業拡大や新規事業立ち上げを考えている企業にとって、最適な選択肢の一つであると言えるでしょう。
募集終了のテナント区画
| 階数 | 坪数 | 賃料 + 共益費 | 敷金/礼金敷金 礼金 | 検討 |
|---|---|---|---|---|
| 5階 | 152.03坪 (502.59m²) | 募集終了 | - | - |
| 5階 | 70.84坪 (234.18m²) | 募集終了 | - | - |
WEB非公開物件がございます
オーナー様ご希望によるWEB非公開の物件もございます。先ずは条件などお知らせ頂けましたら、非公開物件含めピッタリのオフィスをご提案させて頂きます。具体的な物件がお決まりでない場合でも問題ございません。無理なお勧めはしておりませんので、お気軽にお問い合わせください。
ご来店も歓迎です
オフィス移転は社内・社外ともに非公開に行われることが殆どです。そのためアットオフィスでは、基本的に訪問によるコンサルティングを行っておりますが、ご来店の相談も歓迎です。
※お一人おひとりに親身にご対応させて頂きたい為、要予約とさせて頂いております。ご来店の際は先ずは上記よりご予約下さい。
読込中...
品川/大崎/大井エリアで鈴中ビル大森に似た条件の物件
読込中...