EM南麻布ビル6階の賃貸情報
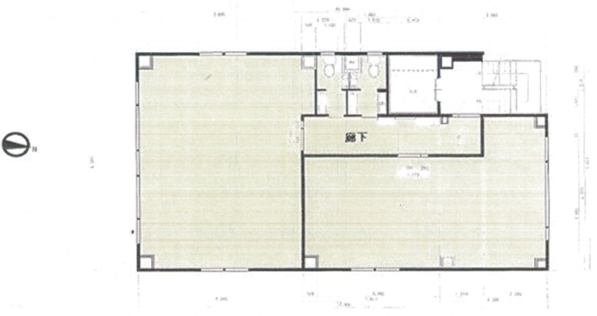
32.32 坪 (106.83m²)
436,319円 (坪:13,499 円)
※このサイトに記載がある賃貸条件は、敷金・保証金などの預かり金を除き、別途消費税がかかります。
EM南麻布ビルの建物概要
設備詳細
| 空調 | 個別空調 |
|---|---|
| トイレ | - |
| 床仕様 | - |
| エレベータ | 1 基 |
| 駐車場設備 | - |
| その他 | 光ファイバー / 新耐震基準 |
EM南麻布ビル6階の賃貸オフィス・事務所に関するお問い合わせ
EM南麻布ビルについて
EM南麻布ビルは、都心の喧噪を離れた港区南麻布2丁目に位置する隠れ家的なオフィスビルです。1998年に竣工されたこの耐震構造のオフィスビルは、白金高輪駅から徒歩7分、麻布十番駅から徒歩10分という恵まれたアクセスの良さを誇ります。また、国道1号線に近接しつつも、静謐な環境を保つ立地は、クリエイティブな業種を営む企業にとって最適な条件を備えています。 EM南麻布ビルの外観は、落ち着きを感じさせる木目調のエントランスが特徴的で、訪れる人々に安心感と信頼感を与えます。室内には柱がなく、自由度の高いレイアウトが可能です。30坪クラスの広々としたオフィススペースは、中小企業からスタートアップ企業まで、多様なビジネスニーズに対応できる設計になっています。また、敷金3か月という条件は、テナントにとって大きな負担軽減となり、新たなビジネスのスタートアップにも最適です。 設備面では、男女別トイレが完備されており、快適なオフィス環境を提供します。さらに、ビル内には1機のエレベーターがあり、スムーズな移動をサポートします。耐震性に優れた建築は、テナント企業にとって、安心して業務を行うことができる大きな魅力の一つです。 EM南麻布ビルは、その立地、設備、スペックの高さから、クリエイティブな業種に従事する企業にとって、理想的なオフィス環境を提供します。静かで落ち着いた環境の中で、創造性を刺激する作業空間は、ビジネスの成功を後押しします。また、周辺には飲食店やコンビニエンスストアも豊富にあり、ビジネスライフをサポートする環境も整っています。EM南麻布ビルは、ビジネスの可能性を広げるための最適な場所です。
EM南麻布ビルのこだわり
自分で探すより問い合わせる方が早いことがあります
WEB非公開物件があるから
オーナー様のご希望により「WEBでは非公開」にしている物件があります。 それらはWEBでいくら検索しても見つかりません。 先ずは条件などお知らせ頂けましたら非公開物件含め ピッタリのオフィスをご提案させて頂きます。 無理なお勧めはしておりませんので、お気軽にお問い合わせください。
対面でのご相談も受け付けております
ご来店も歓迎です
オフィス移転は社内・社外ともに非公開に行われることが殆どです。そのためアットオフィスでは、基本的に訪問によるコンサルティングを行っておりますが、ご来店の相談も歓迎です。お一人おひとりに親身にご対応させて頂きたい為、要予約とさせて頂いております。ご来店の際は先ずは下記よりご予約下さい。
赤坂/六本木/麻布エリアでEM南麻布ビルに似た条件の物件
読込中...
EM南麻布ビルと同じ最寄駅の物件
読込中...
| 取扱様態 | 仲介 |
|---|---|
| 取扱会社 | 株式会社 アットオフィス |