鈴木ビル1階の賃貸情報
11.17 坪 (36.94m²)
※このサイトに記載がある賃貸条件は、敷金・保証金などの預かり金を除き、別途消費税がかかります。
鈴木ビルの建物概要
設備詳細
| 空調 | - |
|---|---|
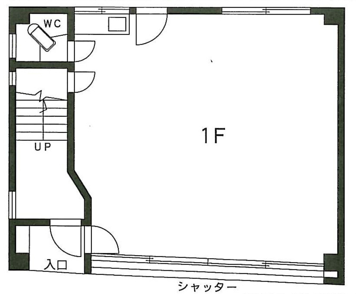
| トイレ | 男女共用トイレ・室内 |
| 床仕様 | - |
| エレベータ | - |
| 駐車場設備 | - |
| その他 | エレベーター無 / 1階の物件 / 保証金・敷金+礼金が3か月以下 / 原状回復義務なし |
鈴木ビル1階の賃貸オフィス・事務所に関するお問い合わせ
鈴木ビルについて
# 都会の静寂と利便性を兼ね備えた「鈴木ビル」 文京区白山1丁目に位置する「鈴木ビル」は、東京都三田線 白山駅から徒歩わずか3分という絶好のロケーションを誇ります。このビルは、ビジネスの拠点として理想的な条件を備えており、都市の喧騒から一歩離れた静かな環境で効率的に仕事に取り組むことができる場所です。 ## 絶好のアクセスと利便性 まず、鈴木ビルの最大の魅力はそのアクセスの良さにあります。白山駅から徒歩3分という距離は、ビジネスパーソンにとって大変ありがたいポイントです。駅から近いことで、通勤時間を大幅に短縮できるだけでなく、打ち合わせや商談の際にお客様を招待する際にも大変便利です。さらに、近隣には多くの商業施設や飲食店が立ち並んでおり、ランチタイムやアフターファイブの時間も充実させることができます。 ## 優れた設備と快適なオフィス環境 鈴木ビルは、最新の設備を備えたオフィス空間を提供しています。エレベーター、セキュリティシステム、空調設備など、ビジネスに必要な機能が充実しており、入居者の安全と快適さを第一に考えた設計となっています。また、広々としたフロアプランは、柔軟なレイアウトが可能で、企業の成長に合わせたオフィスの拡張やレイアウト変更にも対応可能です。 ## 白山エリアの魅力 白山エリアは、文京区の中でも特に静かな環境が広がる地域です。緑豊かな公園が点在し、四季折々の自然を感じながらの散策も楽しめます。文教地区としても知られ、多くの教育機関が集まるエリアとなっており、知的な雰囲気が漂います。このため、クリエイティブな業種や教育関連企業には特に適したロケーションとなっています。 ## 鈴木ビルの独自性とビジネスの利点 鈴木ビルの独自の魅力は、ビジネスにおける柔軟性と高い利便性にあります。周囲の静かな環境は、集中力を高める要因となり、効率的な業務遂行をサポートします。また、駅近という立地は、ビジネスチャンスを広げる大きな要素となります。頻繁に訪れるクライアントやパートナーにとっても訪問しやすく、ビジネスの信頼を築く一助となるでしょう。 ## 結論 「鈴木ビル」は、ビジネスの成功をサポートする理想的なオフィススペースです。快適な環境、優れたアクセス、充実した設備により、ここでの業務は確実に効率的かつスムーズに進められます。都市の利便性と静かな環境を兼ね備えた白山エリアに位置するこのビルは、あなたのビジネスの成長を確実に支えることでしょう。 文京区白山1丁目の「鈴木ビル」で、新たなビジネスの未来を切り拓いてみませんか?
鈴木ビルのこだわり
自分で探すより問い合わせる方が早いことがあります
WEB非公開物件があるから
オーナー様のご希望により「WEBでは非公開」にしている物件があります。 それらはWEBでいくら検索しても見つかりません。 先ずは条件などお知らせ頂けましたら非公開物件含め ピッタリのオフィスをご提案させて頂きます。 無理なお勧めはしておりませんので、お気軽にお問い合わせください。
対面でのご相談も受け付けております
ご来店も歓迎です
オフィス移転は社内・社外ともに非公開に行われることが殆どです。そのためアットオフィスでは、基本的に訪問によるコンサルティングを行っておりますが、ご来店の相談も歓迎です。お一人おひとりに親身にご対応させて頂きたい為、要予約とさせて頂いております。ご来店の際は先ずは下記よりご予約下さい。
白山/千石/根津エリアで鈴木ビルに似た条件の物件
読込中...
鈴木ビルと同じ最寄駅の物件
読込中...
| 取扱様態 | 仲介 |
|---|---|
| 取扱会社 | 株式会社 アットオフィス |