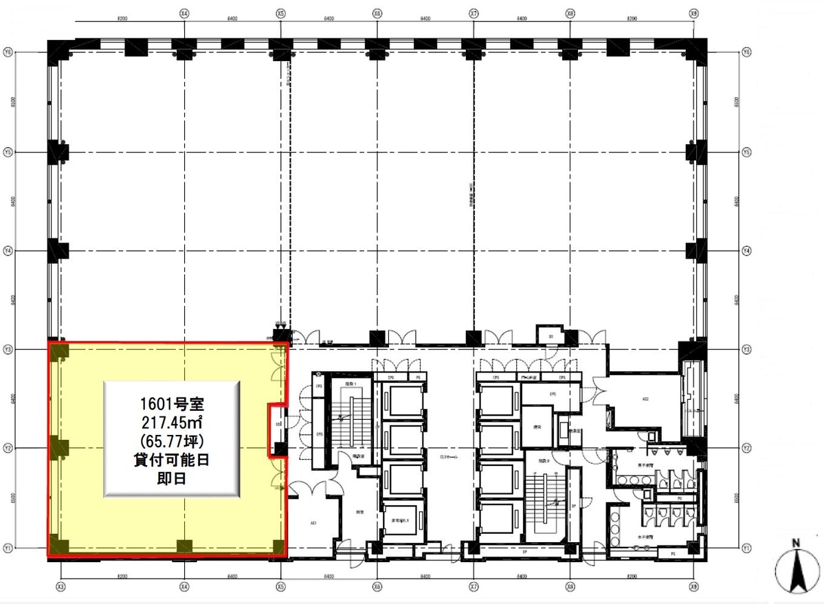
東五反田スクエアビル16階の賃貸情報
65.77 坪 (217.42m²)
※このサイトに記載がある賃貸条件は、敷金・保証金などの預かり金を除き、別途消費税がかかります。
東五反田スクエアビルの建物概要
設備詳細
| 空調 | セントラル空調 |
|---|---|
| トイレ | - |
| 床仕様 | OA対応床(フリーアクセス) |
| エレベータ | 8 基 |
| 駐車場設備 | 空有 |
| その他 | 大型ビル / 新耐震基準 |
東五反田スクエアビル16階の賃貸オフィス・事務所に関するお問い合わせ
東五反田スクエアビルについて
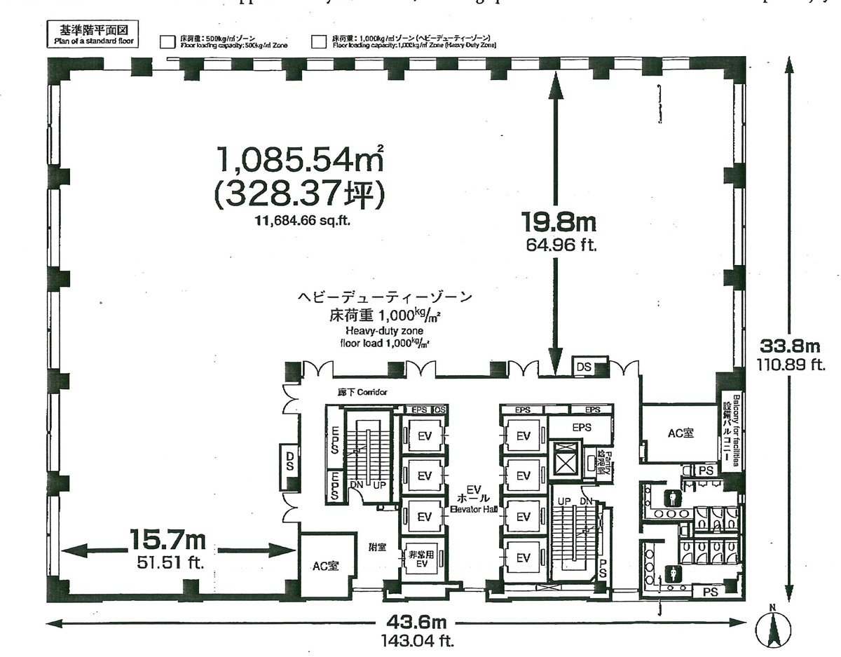
ご紹介するのは、品川区東五反田に位置する「東五反田スクエアビル」、2009年に竣工されたこのビルは、新しい耐震基準に則って造られた、安心と信頼のハイスペックオフィスビルです。ワンフロアの広さは300坪を超える広大な空間で、様々なビジネスニーズに柔軟に対応可能です。ここでは、その魅力的な特徴やビジネス上の利点をご紹介します。 まず、立地の良さについて。JR山手線の五反田駅から徒歩5分、大崎駅からは徒歩6分というアクセスの良さは、ビジネスの機会を広げる上で欠かせない要素です。さらに、品川駅へも近く、新幹線や羽田空港へのアクセスが優れているため、ビジネスの拠点として最適です。都営浅草線を利用すれば、成田空港へのアクセスも良好です。 ビルの特徴に目を向けると、2009年に新耐震基準で建てられたことによる高い安全性が挙げられます。制振装置を採用し、万が一の地震にも強い構造となっています。また、エレベーターは8機設置されており、スムーズな移動が可能です。ビル内には男女別のトイレが完備され、駐車場も利用可能ですので、来客や従業員にとっても快適な環境を提供しています。 外観はガラスウォールを採用したお洒落なデザインで、高級ホテルのような共用廊下や水回りが、オフィス環境に高級感をもたらします。また、近隣には目黒川の桜並木があり、緑豊かな環境もビルの大きな魅力の一つです。 オフィススペースとしては、L字型の柱のない開放的な執務スペースを提供しており、天井高2800mmと広々としています。床仕様は100mmのフリーアクセスフロアで、多様なレイアウトプランに対応可能です。セキュリティは非接触型ICカードキーによるオートロックシステムを採用しており、安全性にも配慮しています。 周辺環境も魅力的で、五反田駅周辺には飲食店やコンビニ、金融機関や商業施設が充実しており、ビジネスに必要なものが揃っています。このように、東五反田スクエアビルは、立地の良さ、安全性、快適なオフィス環境、充実した周辺環境と、ビジネスの成功を支える全てを備えた理想のオフィスビルです。あなたのビジネスの新たな拠点として、ぜひご検討ください。
自分で探すより問い合わせる方が早いことがあります
WEB非公開物件があるから
オーナー様のご希望により「WEBでは非公開」にしている物件があります。 それらはWEBでいくら検索しても見つかりません。 先ずは条件などお知らせ頂けましたら非公開物件含め ピッタリのオフィスをご提案させて頂きます。 無理なお勧めはしておりませんので、お気軽にお問い合わせください。
対面でのご相談も受け付けております
ご来店も歓迎です
オフィス移転は社内・社外ともに非公開に行われることが殆どです。そのためアットオフィスでは、基本的に訪問によるコンサルティングを行っておりますが、ご来店の相談も歓迎です。お一人おひとりに親身にご対応させて頂きたい為、要予約とさせて頂いております。ご来店の際は先ずは下記よりご予約下さい。
五反田エリアで東五反田スクエアビルに似た条件の物件
読込中...
東五反田スクエアビルと同じ最寄駅の物件
読込中...
| 取扱様態 | 仲介 |
|---|---|
| 取扱会社 | 株式会社 アットオフィス |