秋葉原STビル7階の賃貸情報
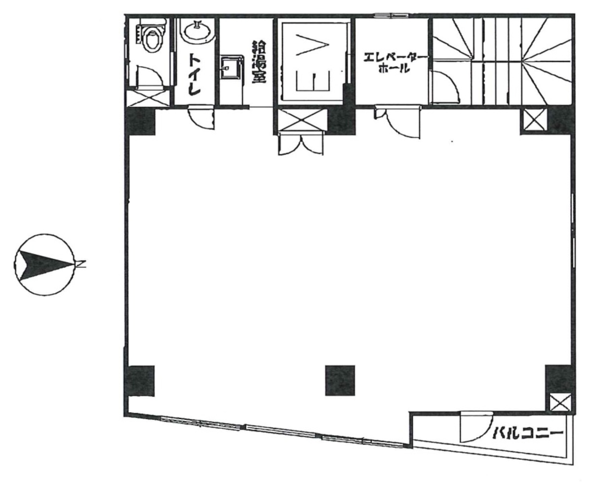
24.46 坪 (80.89m²)
※このサイトに記載がある賃貸条件は、敷金・保証金などの預かり金を除き、別途消費税がかかります。
秋葉原STビルの建物概要
設備詳細
| 空調 | 個別空調 |
|---|---|
| トイレ | - |
| 床仕様 | OA対応床(フリーアクセス) |
| エレベータ | 1 基 |
| 駐車場設備 | - |
| その他 | 光ファイバー / 新耐震基準 / オートロック / クリニック |
秋葉原STビル7階の賃貸オフィス・事務所に関するお問い合わせ
秋葉原STビルについて
秋葉原STビルは、2008年に誕生した現代的な外観を持つオフィスビルであり、東京の心臓部である千代田区外神田4丁目にその位置を確立しています。竣工以来、その質の高い建築と設備で多くの企業に選ばれてきました。このビルの紹介を通し、その特徴、立地、設備などについて詳しくご説明いたします。 特徴の一つとして、秋葉原STビルは築浅であることが挙げられます。2008年の竣工ということは、現代の建築基準に則って建てられたことを意味し、安全性や快適性において高い水準を保っています。また、外観の美しさも多くのテナントから評価されています。 立地に関しては、秋葉原STビルは羨望の地にあります。最寄り駅である末広町駅から徒歩3分、さらには秋葉原駅からも徒歩6分という非常に便利な位置にあります。秋葉原は、電気街として有名で、多くの企業が集まるビジネスの中心地でもあります。3駅以上を利用できる好立地は、ビジネスの機動性を高める上で大きなアドバンテージとなります。 設備面では、秋葉原STビルは1機のエレベーターを備えており、日々の業務の効率を支えます。また、25坪前後の坪数は、中小企業やスタートアップにとって魅力的なオフィスサイズを提供しています。珍しい坪数の提供は、ニーズに合わせた最適なオフィス環境を求めるテナントにとって大きな魅力となっています。 秋葉原STビルは、立地の良さ、築浅の建物、そして使い勝手の良い設備を兼ね備えており、企業が成長し続けるための理想的な空間を提供しています。ビジネスの拠点としてだけでなく、新しい価値を創造し続ける企業にとって、このビルは最適な選択肢の一つです。秋葉原STビルで、あなたのビジネスの新たな章を開いてみませんか?
自分で探すより問い合わせる方が早いことがあります
WEB非公開物件があるから
オーナー様のご希望により「WEBでは非公開」にしている物件があります。 それらはWEBでいくら検索しても見つかりません。 先ずは条件などお知らせ頂けましたら非公開物件含め ピッタリのオフィスをご提案させて頂きます。 無理なお勧めはしておりませんので、お気軽にお問い合わせください。
対面でのご相談も受け付けております
ご来店も歓迎です
オフィス移転は社内・社外ともに非公開に行われることが殆どです。そのためアットオフィスでは、基本的に訪問によるコンサルティングを行っておりますが、ご来店の相談も歓迎です。お一人おひとりに親身にご対応させて頂きたい為、要予約とさせて頂いております。ご来店の際は先ずは下記よりご予約下さい。
神田/秋葉原エリアで秋葉原STビルに似た条件の物件
読込中...
秋葉原STビルと同じ最寄駅の物件
読込中...
| 取扱様態 | 仲介 |
|---|---|
| 取扱会社 | 株式会社 アットオフィス |