※このサイトに記載がある賃貸条件は、敷金・保証金などの預かり金を除き、別途消費税がかかります。
物件情報
設備詳細
| 空調 | 個別空調 |
|---|---|
| トイレ | 男女別トイレ室外 |
| 床仕様 | - |
| エレベータ | 1 基 |
| 駐車場設備 | - |
| その他 | 光ファイバー / 機械警備 / 東京賃料が坪11000円以下 |
大興ビルの賃貸オフィス・事務所に関するお問い合わせ
大興ビルについて
東京都台東区に位置する「大興ビル」は、ビジネスの中心地にふさわしい賃貸オフィス物件です。1962年に竣工し、2008年には全面リニューアルを実施。この改修により、最新のオフィスニーズに応える設備と快適なワークスペースを提供しています。 立地においては、浅草橋駅からわずか徒歩2分というアクセスの良さが際立ちます。この至近距離にあることで、日々の通勤はもちろん、ビジネスパートナーとの打ち合わせや外出時の移動もスムーズに行えます。加えて、馬喰町駅へもアクセスが可能で、交通の利便性は抜群です。 大興ビルは基準階約20坪のオフィススペースを提供。各オフィスは個別空調を完備しており、四季を通じて快適な室温を保つことができます。また、余計な柱がないため、効率的なオフィスレイアウトが実現し、様々なビジネスシーンに対応するフレキシブルな空間設計が魅力です。 ビルの安全性にも配慮が行き届いており、機械警備を完備。24時間体制でビルの安全を守り、入居企業の財産と従業員の安全を確保しています。このようなセキュリティ体制は、ビジネスを行う上で非常に重要な要素です。 1階にはコンビニが入居しており、日々の買い物が非常に便利です。また、ビル周辺には飲食店が豊富にあり、ランチや打ち合わせの場としての選択肢も多岐にわたります。ビジネスに必要な環境が、大興ビル周辺には整っているのです。 最新の設備と卓越した立地、そして快適なオフィス環境を備える大興ビルは、多くのビジネスマンにとって理想的なオフィススペースです。あなたのビジネスをさらに発展させるための最高の選択となるでしょう。
大興ビルのこだわり
自分で探すより問い合わせる方が早いことがあります
WEB非公開物件があるから
オーナー様のご希望により「WEBでは非公開」にしている物件があります。 それらはWEBでいくら検索しても見つかりません。 先ずは条件などお知らせ頂けましたら非公開物件含め ピッタリのオフィスをご提案させて頂きます。 無理なお勧めはしておりませんので、お気軽にお問い合わせください。
対面でのご相談も受け付けております
ご来店も歓迎です
オフィス移転は社内・社外ともに非公開に行われることが殆どです。そのためアットオフィスでは、基本的に訪問によるコンサルティングを行っておりますが、ご来店の相談も歓迎です。お一人おひとりに親身にご対応させて頂きたい為、要予約とさせて頂いております。ご来店の際は先ずは下記よりご予約下さい。
募集終了のテナント区画
| 階数 | 坪数 | 賃料 + 共益費 | 敷金/礼金敷金 礼金 | 検討 |
|---|---|---|---|---|
| B1階 | 39.59坪 (130.9m²) | 募集終了 | - | - |
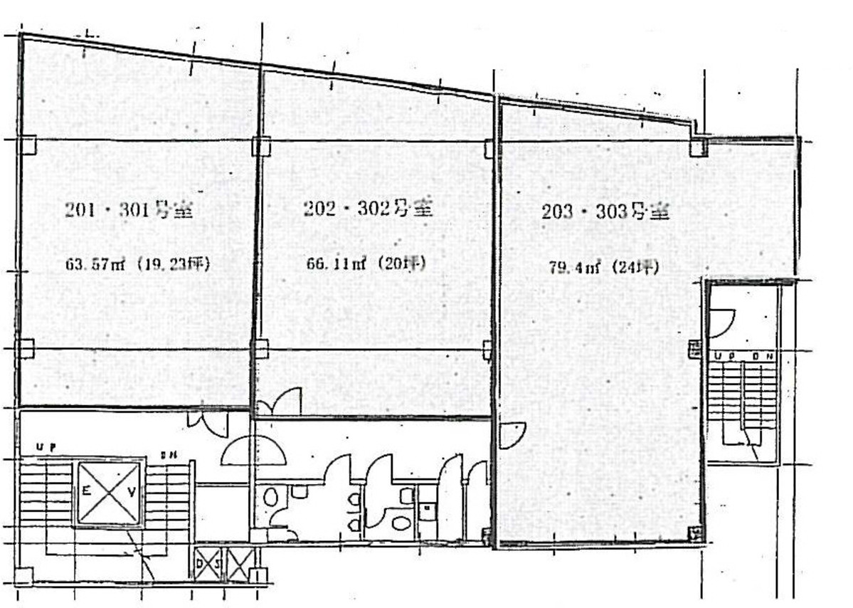
| 2階 | 20坪 (66.12m²) | 募集終了 | - | - |
| 2階 | 20坪 (66.11m²) | 募集終了 | - | - |
| 2階 | 24坪 (79.4m²) | 募集終了 | - | - |
| 3階 | 20坪 (66.12m²) | 募集終了 | - | - |
| 3階 | 20坪 (66.11m²) | 募集終了 | - | - |
| 3階 | 24坪 (79.4m²) | 募集終了 | - | - |
読込中...
浅草橋/蔵前/浅草エリアで大興ビルに似た条件の物件
読込中...
| 取扱様態 | 仲介 |
|---|---|
| 取扱会社 | 株式会社 アットオフィス |