PMO八丁堀の賃料条件
| 階数 | 坪数 | 賃料 + 共益費 | 敷金/礼金敷金 礼金 | 検討 |
|---|---|---|---|---|
| 4階 | 78.47坪 (259.43m²) | お問合せ下さい (坪:-) | 相談 無相談/無 | |
| 7階 | 78.47坪 (259.43m²) | お問合せ下さい (坪:-) | 相談 無相談/無 |
※このサイトに記載がある賃貸条件は、敷金・保証金などの預かり金を除き、別途消費税がかかります。
物件情報
設備詳細
| 空調 | 個別空調 |
|---|---|
| トイレ | - |
| 床仕様 | OA対応床(フリーアクセス) |
| エレベータ | - |
| 駐車場設備 | 空有 |
| その他 | 新耐震基準 |
PMO八丁堀の賃貸オフィス・事務所に関するお問い合わせ
PMO八丁堀について
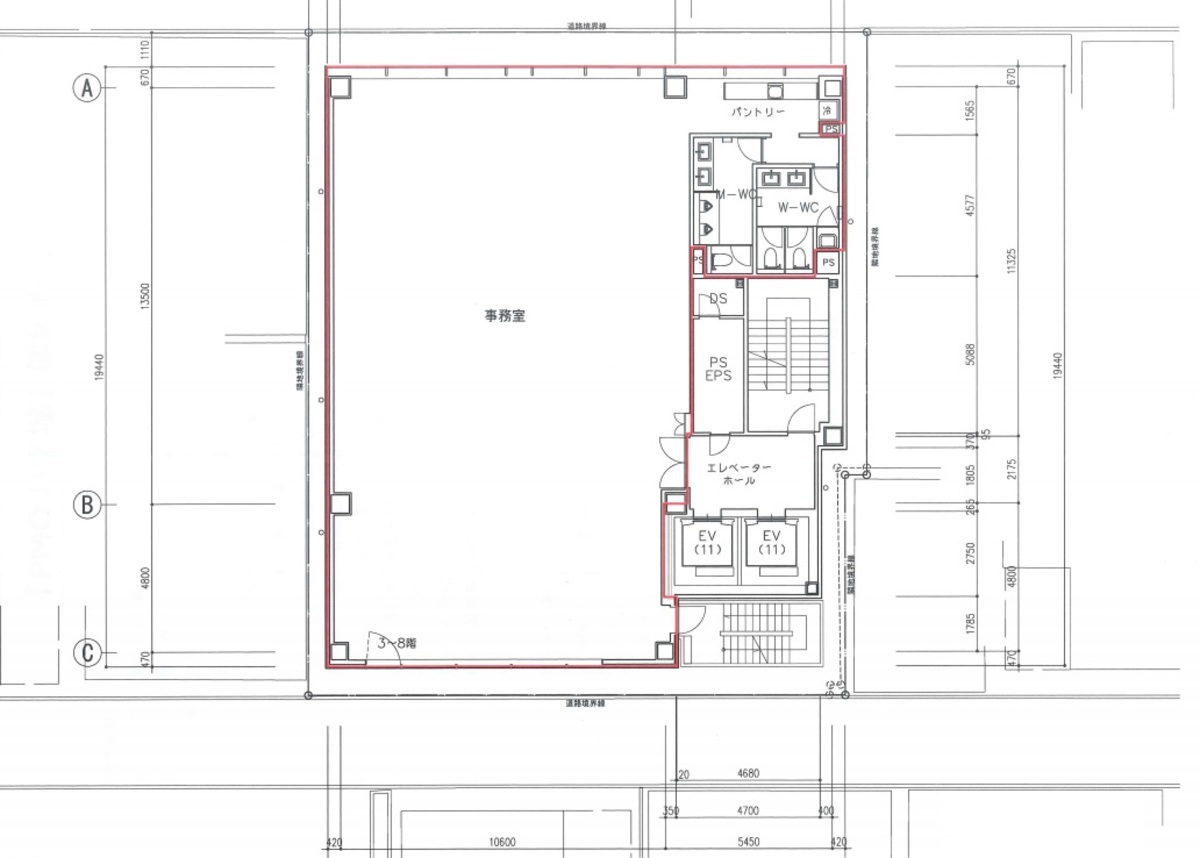
東京都中央区八丁堀に位置するPMO八丁堀ビルは、2009年に竣工された築浅のハイグレードオフィスビルです。このビルは、野村不動産が手掛けるPMOシリーズの一棟として、中規模ながらも大規模ビルと同等の機能性とグレードを誇ります。PMO八丁堀ビルは、基準階約78坪の貸事務所を有し、長方形の無柱空間、天井高2,800mm、グリッド式システム天井、分割可能なワンフロア8ゾーン空調、100mmのOAフロア、床荷重500kg/㎡(ヘビーデューティーゾーンでは980kg/㎡)、電気容量60VA/㎡(最大75VAまで増強可能)など、先進的な設備を備えています。さらに、遮熱性と断熱性に優れたLow-Eペアガラスの窓面を採用し、光熱費の削減にも寄与します。 立地としては、八丁堀駅から徒歩1分という抜群のアクセスを誇り、JR京葉線と日比谷線を利用できます。ビルの周辺にはコンビニや名刺・ハンコのお店、文具店などの生活便利施設が充実しており、ビジネス環境としても最適です。ビル内には8台収容可能な機械式駐車場を併設し、来客や社員の利便性を高めています。 外観は、ガラスカーテンウォールによるスタイリッシュなデザインが特徴で、エントランスホールにはアロマの香りが漂い、高級感と洗練された美しさを提供します。セキュリティ面では、非接触ICカードのセキュリティゲートをエレベーターホールの手前に設置し、テナントの安全を確保しています。 PMO八丁堀ビルは、機能性とグレード、立地の良さを兼ね備えた、中規模ながら大規模ビル顔負けの設備やグレード感を備えるハイグレードオフィスビルです。明るく開放的なオフィス空間を求める企業にとって、ビジネスの発展に最適な環境を提供します。このビルで事業を展開することで、企業イメージの向上や効率的なビジネス運営が期待できるでしょう。
PMO八丁堀のこだわり
自分で探すより問い合わせる方が早いことがあります
WEB非公開物件があるから
オーナー様のご希望により「WEBでは非公開」にしている物件があります。 それらはWEBでいくら検索しても見つかりません。 先ずは条件などお知らせ頂けましたら非公開物件含め ピッタリのオフィスをご提案させて頂きます。 無理なお勧めはしておりませんので、お気軽にお問い合わせください。
対面でのご相談も受け付けております
ご来店も歓迎です
オフィス移転は社内・社外ともに非公開に行われることが殆どです。そのためアットオフィスでは、基本的に訪問によるコンサルティングを行っておりますが、ご来店の相談も歓迎です。お一人おひとりに親身にご対応させて頂きたい為、要予約とさせて頂いております。ご来店の際は先ずは下記よりご予約下さい。
募集終了のテナント区画
| 階数 | 坪数 | 賃料 + 共益費 | 敷金/礼金敷金 礼金 | 検討 |
|---|---|---|---|---|
| 2階 | 78.47坪 (259.43m²) | 募集終了 | - | - |
| 3階 | 78.47坪 (259.43m²) | 募集終了 | - | - |
| 5階 | 78.47坪 (259.43m²) | 募集終了 | - | - |
| 6階 | 78.47坪 (259.43m²) | 募集終了 | - | - |
| 8階 | 78.47坪 (259.43m²) | 募集終了 | - | - |
| 9階 | 78.24坪 (258.65m²) | 募集終了 | - | - |
読込中...
近くのエリアで探してみる
茅場町/新川/八丁堀エリアでPMO八丁堀に似た条件の物件
読込中...
| 取扱様態 | 仲介 |
|---|---|
| 取扱会社 | 株式会社 アットオフィス |