※このサイトに記載がある賃貸条件は、敷金・保証金などの預かり金を除き、別途消費税がかかります。
お電話でもお気軽にお問い合わせください
物件情報
設備詳細
| 空調 | - |
|---|---|
| トイレ | - |
| 床仕様 | - |
| エレベータ | - |
| 駐車場設備 | - |
| その他 | 新耐震基準 |
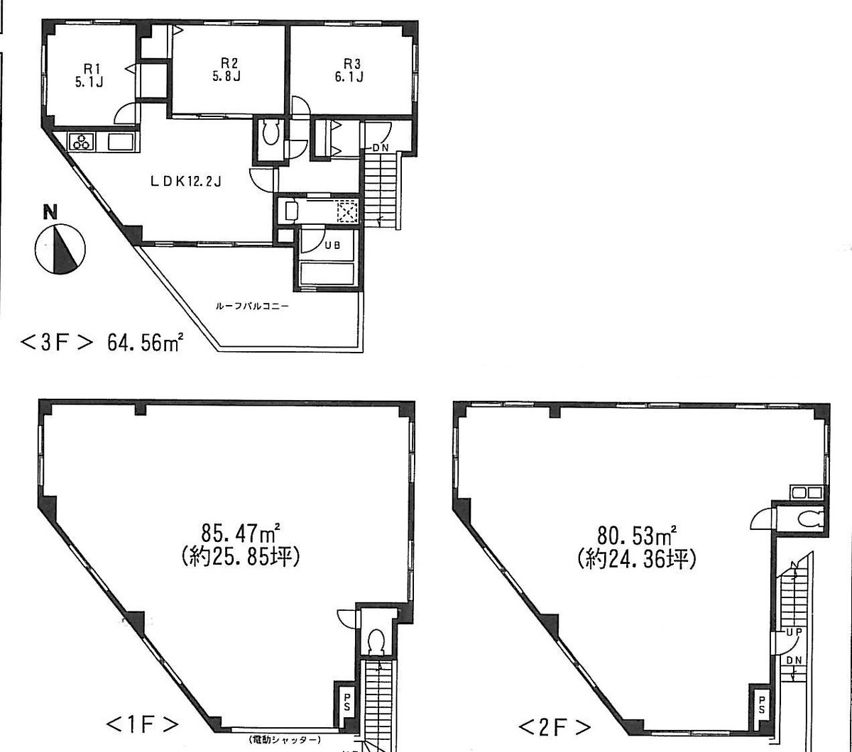
人材開発神楽坂は、新宿区天神町に位置する地上3階建ての事業用賃貸建物です。最寄り駅として東京メトロ東西線「神楽坂駅」から徒歩3分、都営大江戸線「牛込神楽坂駅」および有楽町線「江戸川橋駅」からはいずれも徒歩8分で到着できます。複数路線が利用可能な場所に所在するため、移動手段を選択しやすい環境となっています。 建物は、周辺が閑静な住宅と事業エリアの両面をもつ新宿区天神町に立地しています。オフィス利用や各種事業活動の拠点として、安定した業務運営を想定しやすい環境です。地上3階建ての構成は、企業規模や用途に応じたスペースの使い分けにも適しています。複数フロアを活用した事業所や、部門ごとのフロア分割など、様々なレイアウトの構想が可能です。 また、周辺には飲食店やコンビニエンスストアが点在しており、日常的な業務の合間に利用しやすい立地です。地域の落ち着いた雰囲気と、主要エリアへのアクセス環境を活かして、事務所や研修施設など多様な事業用途をイメージすることができます。 詳細はお問い合わせください。
募集終了のテナント区画
| 階数 | 坪数 | 賃料 + 共益費 | 敷金/礼金敷金 礼金 | 検討 |
|---|---|---|---|---|
| 1階 | 50.21坪 (166m²) | 募集終了 | - | - |
| 2階 | 25.85坪 (85.45m²) | 募集終了 | - | - |
WEB非公開物件がございます
オーナー様ご希望によるWEB非公開の物件もございます。先ずは条件などお知らせ頂けましたら、非公開物件含めピッタリのオフィスをご提案させて頂きます。具体的な物件がお決まりでない場合でも問題ございません。無理なお勧めはしておりませんので、お気軽にお問い合わせください。
ご来店も歓迎です
オフィス移転は社内・社外ともに非公開に行われることが殆どです。そのためアットオフィスでは、基本的に訪問によるコンサルティングを行っておりますが、ご来店の相談も歓迎です。
※お一人おひとりに親身にご対応させて頂きたい為、要予約とさせて頂いております。ご来店の際は先ずは上記よりご予約下さい。
読込中...
近くのエリアで探してみる
市ヶ谷/神楽坂/飯田橋エリアで人材開発神楽坂ビルに似た条件の物件
読込中...