NS麻布十番ビルの賃料条件
| 階数 | 坪数 | 賃料 + 共益費 | 敷金/礼金敷金 礼金 | 検討 |
|---|---|---|---|---|
| 12階 | 35.01坪 (115.75m²) | 875,250円 (坪:25,000 円) | 8ヶ月 無8ヶ月/無 | |
| 13階 | 35.01坪 (115.75m²) | 875,250円 (坪:25,000 円) | 8ヶ月 無8ヶ月/無 |
※このサイトに記載がある賃貸条件は、敷金・保証金などの預かり金を除き、別途消費税がかかります。
物件情報
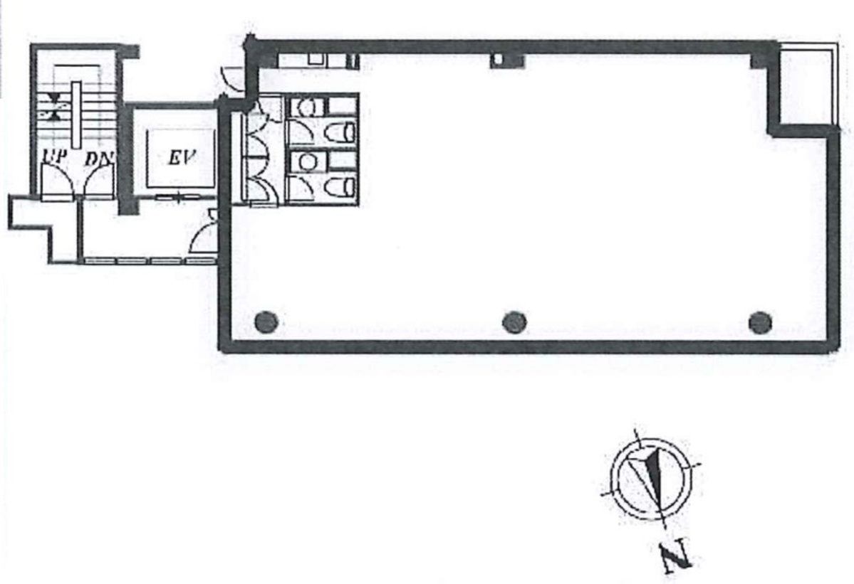
設備詳細
| 空調 | 個別空調 |
|---|---|
| トイレ | 男女別トイレ室内 |
| 床仕様 | OA対応床(フリーアクセス) |
| エレベータ | 1 基 |
| 駐車場設備 | - |
| その他 | 機械警備 / 光ファイバー / 新耐震基準 / クリニック / 天井高3m以上 / スケルトン |
NS麻布十番ビルの賃貸オフィス・事務所に関するお問い合わせ
NS麻布十番ビルについて
東京都港区の麻布十番3丁目に位置するNS麻布十番ビルは、その最新の設備と洗練されたデザインで、ビジネスの世界に新たな風を吹き込んでいます。2008年に竣工し、新耐震基準に適合したこの建築物は、安全性と機能性を兼ね備えた現代のオフィスニーズに応える設計となっています。 ビルの内部には、1機のエレベーターが設置され、スムーズな移動をサポートします。また、駐車場がビル内に備えられているため、来訪者や従業員は都心部での駐車スペースの確保に関する心配から解放されます。空き状況などの詳細については、直接お問い合わせいただくとよいでしょう。 NS麻布十番ビルの最大の魅力は、その立地にあります。麻布十番は、東京都内でも特に人気の高いビジネスエリアの一つであり、数多くの企業が集まる地域です。この地域にオフィスを構えることで、企業は高いブランドイメージを確立し、さらにはビジネスの各種ネットワークを広げる絶好の機会を得ることができます。 周辺には、高級レストランやカフェ、ショッピング施設が豊富にあり、ビジネスの合間にリフレッシュする場所や、接待の場としても最適です。また、公共交通のアクセスも良好で、都内各地への移動が容易なため、ビジネスの拠点としてはまさに理想的な場所に位置しています。 NS麻布十番(高層棟)ビルは、最新の設備と安全性、そして魅力的な立地を兼ね備え、ビジネスを行う上での利便性と快適性を提供します。ビジネスの成功と発展を目指す企業にとって、このビルは間違いなく魅力的な選択肢となるでしょう。
NS麻布十番ビルのこだわり
自分で探すより問い合わせる方が早いことがあります
WEB非公開物件があるから
オーナー様のご希望により「WEBでは非公開」にしている物件があります。 それらはWEBでいくら検索しても見つかりません。 先ずは条件などお知らせ頂けましたら非公開物件含め ピッタリのオフィスをご提案させて頂きます。 無理なお勧めはしておりませんので、お気軽にお問い合わせください。
対面でのご相談も受け付けております
ご来店も歓迎です
オフィス移転は社内・社外ともに非公開に行われることが殆どです。そのためアットオフィスでは、基本的に訪問によるコンサルティングを行っておりますが、ご来店の相談も歓迎です。お一人おひとりに親身にご対応させて頂きたい為、要予約とさせて頂いております。ご来店の際は先ずは下記よりご予約下さい。
募集終了のテナント区画
| 階数 | 坪数 | 賃料 + 共益費 | 敷金/礼金敷金 礼金 | 検討 |
|---|---|---|---|---|
| B1階 | 38.45坪 (127.1m²) | 募集終了 | - | - |
| 1階 | 27.56坪 (91.11m²) | 募集終了 | - | - |
| 2階 | 26.48坪 (87.57m²) | 募集終了 | - | - |
| 3階 | 26.49坪 (87.57m²) | 募集終了 | - | - |
| 4階 | 35.01坪 (115.75m²) | 募集終了 | - | - |
| 5階 | 35.01坪 (115.74m²) | 募集終了 | - | - |
| 6階 | 35.01坪 (115.74m²) | 募集終了 | - | - |
| 7階 | 35.01坪 (115.73m²) | 募集終了 | - | - |
| 8階 | 35.01坪 (115.73m²) | 募集終了 | - | - |
| 9階 | 35.01坪 (115.75m²) | 募集終了 | - | - |
| 10階 | 35.01坪 (115.75m²) | 募集終了 | - | - |
| 11階 | 35.01坪 (115.75m²) | 募集終了 | - | - |
読込中...
赤坂/六本木/麻布エリアでNS麻布十番ビルに似た条件の物件
読込中...
| 取扱様態 | 仲介 |
|---|---|
| 取扱会社 | 株式会社 アットオフィス |