※このサイトに記載がある賃貸条件は、敷金・保証金などの預かり金を除き、別途消費税がかかります。
物件情報
設備詳細
| 空調 | 個別空調 |
|---|---|
| トイレ | 男女共用トイレ・室内 |
| 床仕様 | - |
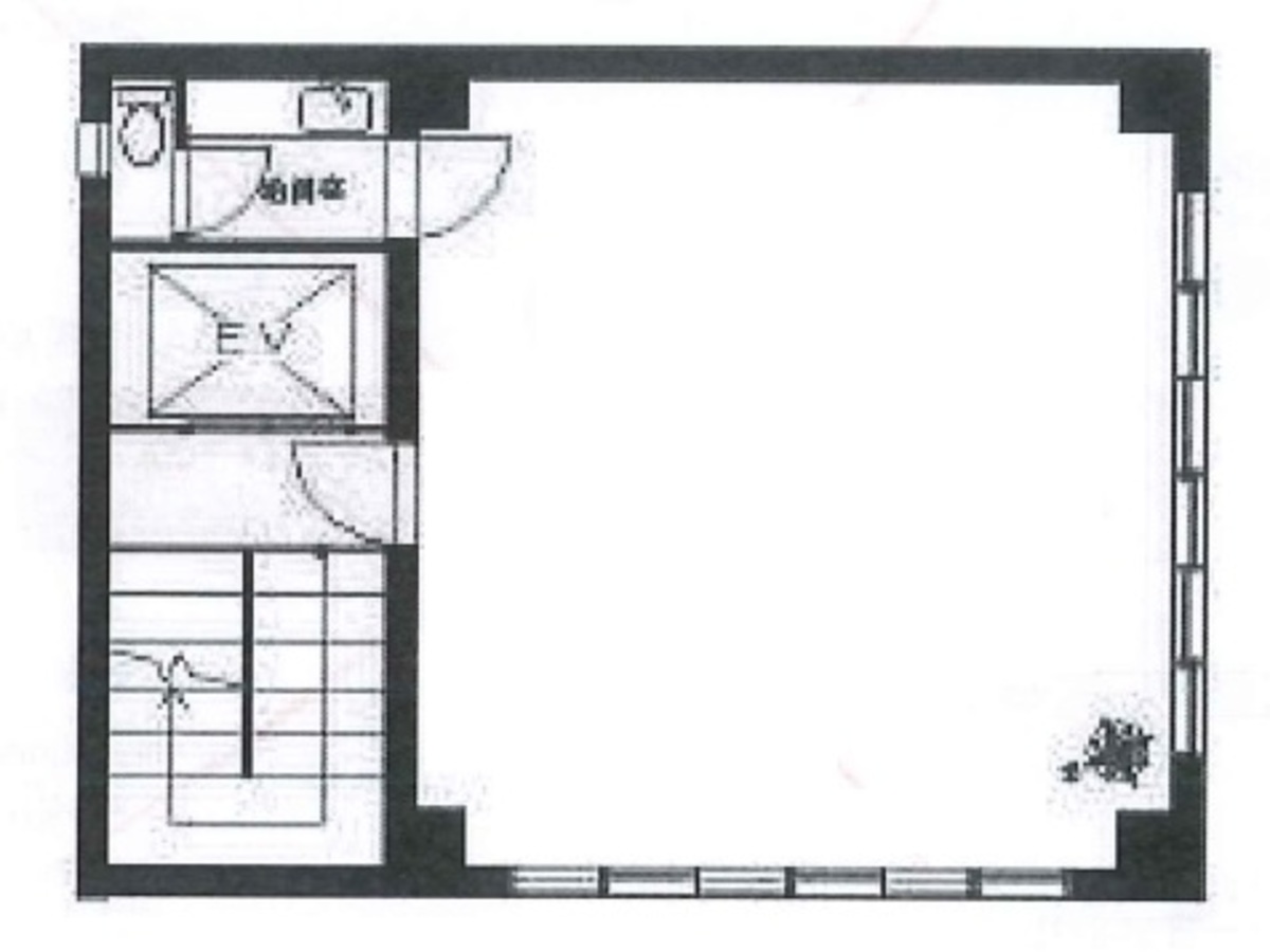
| エレベータ | 1 基 |
| 駐車場設備 | - |
| その他 | 24時間利用可 / 光ファイバー |
京橋プリズムビルの賃貸オフィス・事務所に関するお問い合わせ
京橋プリズムビルについて
京橋プリズムビルは、東京都中央区新富1丁目に佇むオフィスビルであり、その地のビジネスシーンにおいて特異な存在感を放っています。1971年に竣工されたこの7階建てのビルは、ダークグレーの外観と1階にある飲食店の赤いひさしで一際目を引きます。基準階約15坪の賃貸オフィススペースを提供しており、特に小規模から中規模の企業にとって魅力的な選択肢となるでしょう。 京橋プリズムビルの特徴の一つは、その立地にあります。平成通りから一本中に入った場所に位置しており、周辺はオフィスビルが立ち並ぶビジネス街です。最寄り駅である新富町駅は徒歩4分、宝町駅にも徒歩圏内というアクセスの良さがあります。この他に京橋駅、八丁堀駅、築地駅も徒歩10分圏内にあるため、複数の路線を利用することが可能で、ビジネスの拠点として最適な条件を備えています。 ビルの設備面では、1基のエレベーターが設置されており、スムーズな移動をサポートします。オフィススペースは角地に位置しているため、二面採光が可能であり、自然光がたっぷりと入る快適なワークスペースを提供します。また、コンビニが徒歩1分の距離にあるなど、入居者の日々の利便性も充実しています。 2008年には外装のリニューアルが行われ、築年数を感じさせないフレッシュな外観を維持しています。このリニューアルにより、ビルのイメージも大きく向上し、企業のブランドイメージにも良い影響を与えることでしょう。また、正方形の間取りはレイアウトの自由度が高く、企業が自社のニーズに合わせたオフィス環境を創造しやすい構造になっています。 京橋プリズムビルは、立地、設備、アクセスの良さを兼ね備えたオフィスビルとして、多種多様なビジネスのニーズに応えるポテンシャルを持っています。小規模から中規模の企業にとって理想的なオフィス空間を提供し、企業の成長と発展をサポートする環境がここにはあります。
京橋プリズムビルのこだわり
自分で探すより問い合わせる方が早いことがあります
WEB非公開物件があるから
オーナー様のご希望により「WEBでは非公開」にしている物件があります。 それらはWEBでいくら検索しても見つかりません。 先ずは条件などお知らせ頂けましたら非公開物件含め ピッタリのオフィスをご提案させて頂きます。 無理なお勧めはしておりませんので、お気軽にお問い合わせください。
対面でのご相談も受け付けております
ご来店も歓迎です
オフィス移転は社内・社外ともに非公開に行われることが殆どです。そのためアットオフィスでは、基本的に訪問によるコンサルティングを行っておりますが、ご来店の相談も歓迎です。お一人おひとりに親身にご対応させて頂きたい為、要予約とさせて頂いております。ご来店の際は先ずは下記よりご予約下さい。
募集終了のテナント区画
| 階数 | 坪数 | 賃料 + 共益費 | 敷金/礼金敷金 礼金 | 検討 |
|---|---|---|---|---|
| 2階 | 14.5坪 (47.93m²) | 募集終了 | - | - |
| 3階 | 15坪 (49.59m²) | 募集終了 | - | - |
| 5階 | 15坪 (49.59m²) | 募集終了 | - | - |
| 7階 | 15.2坪 (50.25m²) | 募集終了 | - | - |
読込中...
新富/築地エリアで京橋プリズムビルに似た条件の物件
読込中...
| 取扱様態 | 仲介 |
|---|---|
| 取扱会社 | 株式会社 アットオフィス |