ルボワ平喜南池袋3階の賃貸情報
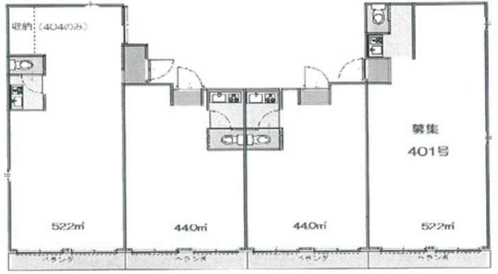
15.79 坪 (52.2m²)
※このサイトに記載がある賃貸条件は、敷金・保証金などの預かり金を除き、別途消費税がかかります。
ルボワ平喜南池袋の建物概要
設備詳細
| 空調 | - |
|---|---|
| トイレ | - |
| 床仕様 | - |
| エレベータ | 1 基 |
| 駐車場設備 | - |
| その他 | 光ファイバー |
ルボワ平喜南池袋3階の賃貸オフィス・事務所に関するお問い合わせ
ルボワ平喜南池袋について
ルボワ平喜南池袋ビルは、東京都豊島区南池袋に位置する8階建ての賃貸オフィスビルです。この物件は1979年に竣工され、基準階面積は約15坪となっています。建物には1基のエレベーターが設置されており、スムーズな移動が可能です。外観やエントランスはデザインに優れ、視認性が高いため、訪れる方々に良い印象を与えることでしょう。 立地においては、最寄り駅である東池袋駅から徒歩圏内にあり、池袋駅、東池袋四丁目駅、都電雑司ヶ谷駅からもアクセスが便利です。ビルの近隣には、郵便局、銀行、コンビニエンスストアといった生活に必要な施設が整っており、日々の業務に必要なサービスを手軽に利用することができます。また、グリーン大通りから一本入った場所にあるため、落ち着いた環境で仕事に集中することが可能です。 このビルの特徴として、デザイナーズビルである点が挙げられます。有名な建築家によって設計されたことで、一般的なオフィスビルとは一線を画す洗練された外観を持っています。そのため、企業イメージの向上にも寄与することが期待されます。 また、ビル内のオフィススペースは清潔に保たれており、快適なワークスペースを提供しています。これは、働く従業員のモチベーション向上や生産性の向上にも繋がる要素です。 ルボワ平喜南池袋ビルは、その立地の利便性、デザイン性の高さ、そして機能的なオフィス環境を備え、多様なビジネスニーズに応えることができる理想的なオフィス賃貸物件です。企業のブランディングや効率的なビジネス運営をサポートする環境が整っているため、さまざまな業種の企業にお勧めの物件と言えるでしょう。興味をお持ちの方は、ぜひ一度現地をご覧になって、その魅力を実感してください。
ルボワ平喜南池袋のこだわり
自分で探すより問い合わせる方が早いことがあります
WEB非公開物件があるから
オーナー様のご希望により「WEBでは非公開」にしている物件があります。 それらはWEBでいくら検索しても見つかりません。 先ずは条件などお知らせ頂けましたら非公開物件含め ピッタリのオフィスをご提案させて頂きます。 無理なお勧めはしておりませんので、お気軽にお問い合わせください。
対面でのご相談も受け付けております
ご来店も歓迎です
オフィス移転は社内・社外ともに非公開に行われることが殆どです。そのためアットオフィスでは、基本的に訪問によるコンサルティングを行っておりますが、ご来店の相談も歓迎です。お一人おひとりに親身にご対応させて頂きたい為、要予約とさせて頂いております。ご来店の際は先ずは下記よりご予約下さい。
池袋/大塚/目白エリアでルボワ平喜南池袋に似た条件の物件
読込中...
ルボワ平喜南池袋と同じ最寄駅の物件
読込中...
| 取扱様態 | 仲介 |
|---|---|
| 取扱会社 | 株式会社 アットオフィス |