※このサイトに記載がある賃貸条件は、敷金・保証金などの預かり金を除き、別途消費税がかかります。
物件情報
設備詳細
| 空調 | 個別空調 |
|---|---|
| トイレ | 男女共用トイレ・室内 |
| 床仕様 | - |
| エレベータ | 1 基 |
| 駐車場設備 | - |
| その他 | 機械警備 / 24時間利用可 / 光ファイバー / 東京賃料が坪11000円以下 |
TATE神田ビルの賃貸オフィス・事務所に関するお問い合わせ
TATE神田ビルについて
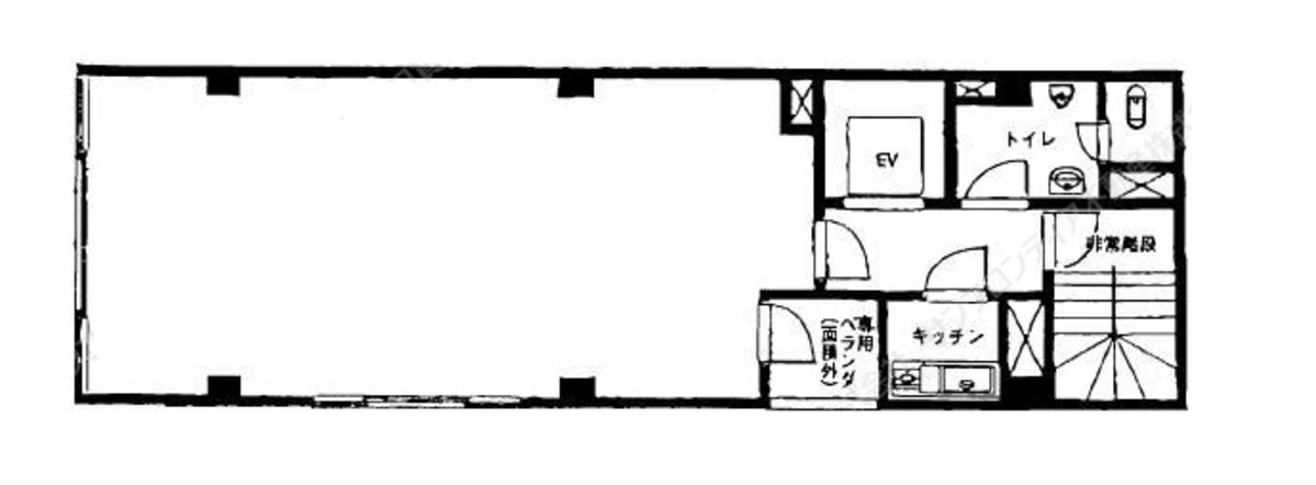
**TATE神田ビルのご紹介** 今日は千代田区神田司町に位置する、アクセス抜群の賃貸オフィス物件「TATE神田ビル」をご紹介します。1980年に竣工したこのビルは、地上6階建てで、基準階約20坪の広さを誇る、使い勝手の良いオフィススペースを提供しています。 **立地の魅力** TATE神田ビルの最大の魅力はその立地です。なんと4路線3駅が徒歩圏内にあり、神田駅、新御茶ノ水駅、そして淡路町駅と、ビジネスに必要なアクセスの良さを兼ね備えています。この立地は、お客様やビジネスパートナーとのアクセスのしやすさを重視する企業には特におすすめです。 **設備とセキュリティ** ビルの設備には細心の注意が払われており、24時間使用可能な個別空調を完備。また、セキュリティ面では機械警備を導入し、テナントの皆様が安心して業務に専念できる環境を実現しています。エレベーターは1基設置されており、快適に各フロアへアクセスいただけます。 **オフィス環境** 貸室は長方形で柱がなく、レイアウトの自由度が高いのが特長です。約20坪のコンパクトながらも、効率的なオフィス環境を実現しています。水回りは共用部に設置されており、トイレは男女別々にありますので、快適にご使用いただけます。 **周辺環境** 周辺はオフィス街で、ビジネスに必要な様々な施設が充実。徒歩2分の場所にはコンビニや郵便局があり、飲食店も豊富に点在しているため、ビジネスの合間のランチやアフター5の利用にも困りません。 TATE神田ビルは、抜群の立地、充実した設備、そして快適なオフィス環境を求める全てのビジネスパーソンに最適な選択肢です。ぜひこの機会に、あなたのビジネスの新たな拠点としてご検討ください。お問い合わせを心よりお待ちしております。
TATE神田ビルのこだわり
自分で探すより問い合わせる方が早いことがあります
WEB非公開物件があるから
オーナー様のご希望により「WEBでは非公開」にしている物件があります。 それらはWEBでいくら検索しても見つかりません。 先ずは条件などお知らせ頂けましたら非公開物件含め ピッタリのオフィスをご提案させて頂きます。 無理なお勧めはしておりませんので、お気軽にお問い合わせください。
対面でのご相談も受け付けております
ご来店も歓迎です
オフィス移転は社内・社外ともに非公開に行われることが殆どです。そのためアットオフィスでは、基本的に訪問によるコンサルティングを行っておりますが、ご来店の相談も歓迎です。お一人おひとりに親身にご対応させて頂きたい為、要予約とさせて頂いております。ご来店の際は先ずは下記よりご予約下さい。
募集終了のテナント区画
| 階数 | 坪数 | 賃料 + 共益費 | 敷金/礼金敷金 礼金 | 検討 |
|---|---|---|---|---|
| 3階 | 23.2坪 (76.69m²) | 募集終了 | - | - |
| 4階 | 23.2坪 (76.69m²) | 募集終了 | - | - |
| 5階 | 23.2坪 (76.69m²) | 募集終了 | - | - |
読込中...
神田/秋葉原エリアでTATE神田ビルに似た条件の物件
読込中...
| 取扱様態 | 仲介 |
|---|---|
| 取扱会社 | 株式会社 アットオフィス |