※このサイトに記載がある賃貸条件は、敷金・保証金などの預かり金を除き、別途消費税がかかります。
物件情報
設備詳細
| 空調 | 個別空調 |
|---|---|
| トイレ | - |
| 床仕様 | OA対応床(フリーアクセス) |
| エレベータ | 2 基 |
| 駐車場設備 | 空無 / 機械式駐車場 |
| その他 | 新耐震基準 |
SD13ビルの賃貸オフィス・事務所に関するお問い合わせ
SD13ビルについて
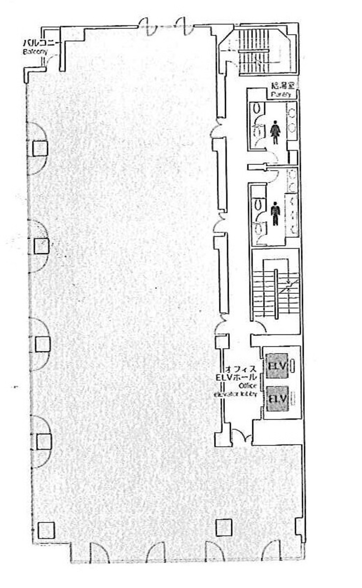
新横浜2丁目のオフィス街中心に立地する高級感のあるオフィスビルです。 駅からのアクセスも非常によく部屋外に男女別トイレも完備。 エントランスの間口も広く、開放感抜群です。 機械警備など設備面も充実しています。 細切れの区画が殆どの為、 全国の営業所ニーズにも対応できるハイスペックオフィスです。
自分で探すより問い合わせる方が早いことがあります
WEB非公開物件があるから
オーナー様のご希望により「WEBでは非公開」にしている物件があります。 それらはWEBでいくら検索しても見つかりません。 先ずは条件などお知らせ頂けましたら非公開物件含め ピッタリのオフィスをご提案させて頂きます。 無理なお勧めはしておりませんので、お気軽にお問い合わせください。
WEBから条件問い合わせをする(無料)
対面でのご相談も受け付けております
ご来店も歓迎です
オフィス移転は社内・社外ともに非公開に行われることが殆どです。そのためアットオフィスでは、基本的に訪問によるコンサルティングを行っておりますが、ご来店の相談も歓迎です。お一人おひとりに親身にご対応させて頂きたい為、要予約とさせて頂いております。ご来店の際は先ずは下記よりご予約下さい。
来店予約をする
募集終了のテナント区画
| 階数 | 坪数 | 賃料 + 共益費 | 敷金/礼金敷金 礼金 | 検討 |
|---|---|---|---|---|
| 3階 | 24.5坪 (80.99m²) | 募集終了 | - | - |
| 3階 | 27.83坪 (92m²) | 募集終了 | - | - |
| 4階 | 40.7坪 (134.54m²) | 募集終了 | - | - |
| 5階 | 24.5坪 (80.99m²) | 募集終了 | - | - |
| 8階 | 24.49坪 (80.96m²) | 募集終了 | - | - |
| 8階 | 20.19坪 (66.74m²) | 募集終了 | - | - |
読込中...
港北区エリアでSD13ビルに似た条件の物件
読込中...
| 取扱様態 | 仲介 |
|---|---|
| 取扱会社 | 株式会社 アットオフィス |