※このサイトに記載がある賃貸条件は、敷金・保証金などの預かり金を除き、別途消費税がかかります。
物件情報
設備詳細
| 空調 | - |
|---|---|
| トイレ | - |
| 床仕様 | - |
| エレベータ | 11 基 |
| 駐車場設備 | 空有 |
| その他 | 大型ビル |
丸の内二丁目ビルの賃貸オフィス・事務所に関するお問い合わせ
丸の内二丁目ビルについて
東京都千代田区丸の内に位置する丸の内2丁目ビルは、東京駅から徒歩わずか3分という、交通の便利さが際立つ賃貸オフィスビルです。二重橋前駅も徒歩2分の距離にあり、大手町駅や有楽町駅、日比谷駅へのアクセスも容易で、ビジネスを行う上での立地条件は理想的といえるでしょう。 このビルは、基準階面積が900坪を超える大型のオフィスビルで、1964年に竣工しました。地下4階地上10階建てで、基準階坪数は914.16坪あります。ビル内には11台のエレベーターが設置されており、そのうち乗用エレベーターが9台、貨物用エレベーターが1台です。ビルの設備としては、OAフロア、光ケーブル、男女別トイレなどが整っており、テナントのニーズに応じた快適なオフィス環境を提供しています。 ビルの立地する丸の内仲通りは、冬の期間にはイルミネーションで彩られ、ビジネスエリアながらも季節を感じることができる点も魅力の一つです。また、隣接する三菱ビルとは1階部分でつながっており、貸会議室「M+」の利用も可能です。これにより、大規模な説明会や研修等も手軽に企画・実施できます。 オフィスの内装は、天井高2675mmとゆとりを感じさせる空間で、長方形の貸室は一部に柱がありますが、内見時にご確認いただければと思います。ビル内には駐車場も設けられておりますが、空き状況についてはお問い合わせいただく必要があります。 飲食店が豊富な東京駅内はもちろん、ビル周辺にも多くの飲食店があり、ランチやアフター5の飲食選択肢も豊富です。さらに、地下には法人会員制の社食機能があり、懇親会などをリーズナブルに利用できる点も大きな利点です。 丸の内2丁目ビルは、その立地、設備、サービスを兼ね備えた賃貸オフィスビルとして、多様なビジネスニーズに応えることができる物件です。立地の良さと充実した設備が、ビジネスの成功を後押しします。
丸の内二丁目ビルのこだわり
自分で探すより問い合わせる方が早いことがあります
WEB非公開物件があるから
オーナー様のご希望により「WEBでは非公開」にしている物件があります。 それらはWEBでいくら検索しても見つかりません。 先ずは条件などお知らせ頂けましたら非公開物件含め ピッタリのオフィスをご提案させて頂きます。 無理なお勧めはしておりませんので、お気軽にお問い合わせください。
対面でのご相談も受け付けております
ご来店も歓迎です
オフィス移転は社内・社外ともに非公開に行われることが殆どです。そのためアットオフィスでは、基本的に訪問によるコンサルティングを行っておりますが、ご来店の相談も歓迎です。お一人おひとりに親身にご対応させて頂きたい為、要予約とさせて頂いております。ご来店の際は先ずは下記よりご予約下さい。
募集終了のテナント区画
| 階数 | 坪数 | 賃料 + 共益費 | 敷金/礼金敷金 礼金 | 検討 |
|---|---|---|---|---|
| B2階 | 16.8坪 (55.54m²) | 募集終了 | - | - |
| B1階 | 354.2坪 (1170.92m²) | 募集終了 | - | - |
| B1階 | 332.06坪 (1097.73m²) | 募集終了 | - | - |
| B1階 | 253.65坪 (838.5m²) | 募集終了 | - | - |
| B1階 | 312.31坪 (1032.43m²) | 募集終了 | - | - |
| 1階 | 51.17坪 (169.16m²) | 募集終了 | - | - |
| 2階 | 260坪 (859.5m²) | 募集終了 | - | - |
| 4階 | 431.16坪 (1425.32m²) | 募集終了 | - | - |
| 4階 | 45.42坪 (150.14m²) | 募集終了 | - | - |
| 4階 | 385.74坪 (1275.18m²) | 募集終了 | - | - |
| 5階 | 226.91坪 (750.12m²) | 募集終了 | - | - |
| 5階 | 263.68坪 (871.67m²) | 募集終了 | - | - |
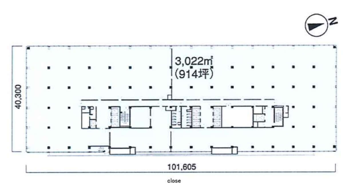
| 6階 | 914.16坪 (3022.02m²) | 募集終了 | - | - |
| 6階 | 660.39坪 (2183.11m²) | 募集終了 | - | - |
| 6階 | 509.25坪 (1683.46m²) | 募集終了 | - | - |
| 6階 | 73.34坪 (242.45m²) | 募集終了 | - | - |
| 6階 | 78.05坪 (258.01m²) | 募集終了 | - | - |
| 6階 | 254.78坪 (842.24m²) | 募集終了 | - | - |
| 6階 | 211.16坪 (698.05m²) | 募集終了 | - | - |
| 6階 | 146.69坪 (484.92m²) | 募集終了 | - | - |
| 6階 | 109.93坪 (363.4m²) | 募集終了 | - | - |
| 7階 | 17.24坪 (57m²) | 募集終了 | - | - |
| 7階 | 14.22坪 (47m²) | 募集終了 | - | - |
| 7階 | 21.18坪 (70m²) | 募集終了 | - | - |
| 7階 | 16.64坪 (55m²) | 募集終了 | - | - |
| 7階 | 17.85坪 (59m²) | 募集終了 | - | - |
| 7階 | 19.06坪 (63m²) | 募集終了 | - | - |
読込中...
近くのエリアで探してみる
大手町/丸の内/有楽町エリアで丸の内二丁目ビルに似た条件の物件
読込中...
| 取扱様態 | 仲介 |
|---|---|
| 取扱会社 | 株式会社 アットオフィス |